← Royal Borough of Windsor and Maidenhead

Status

Awaiting decision House extension
Received
Last month
New homes
0

Full proposal

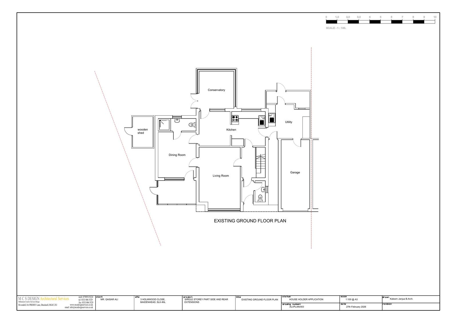
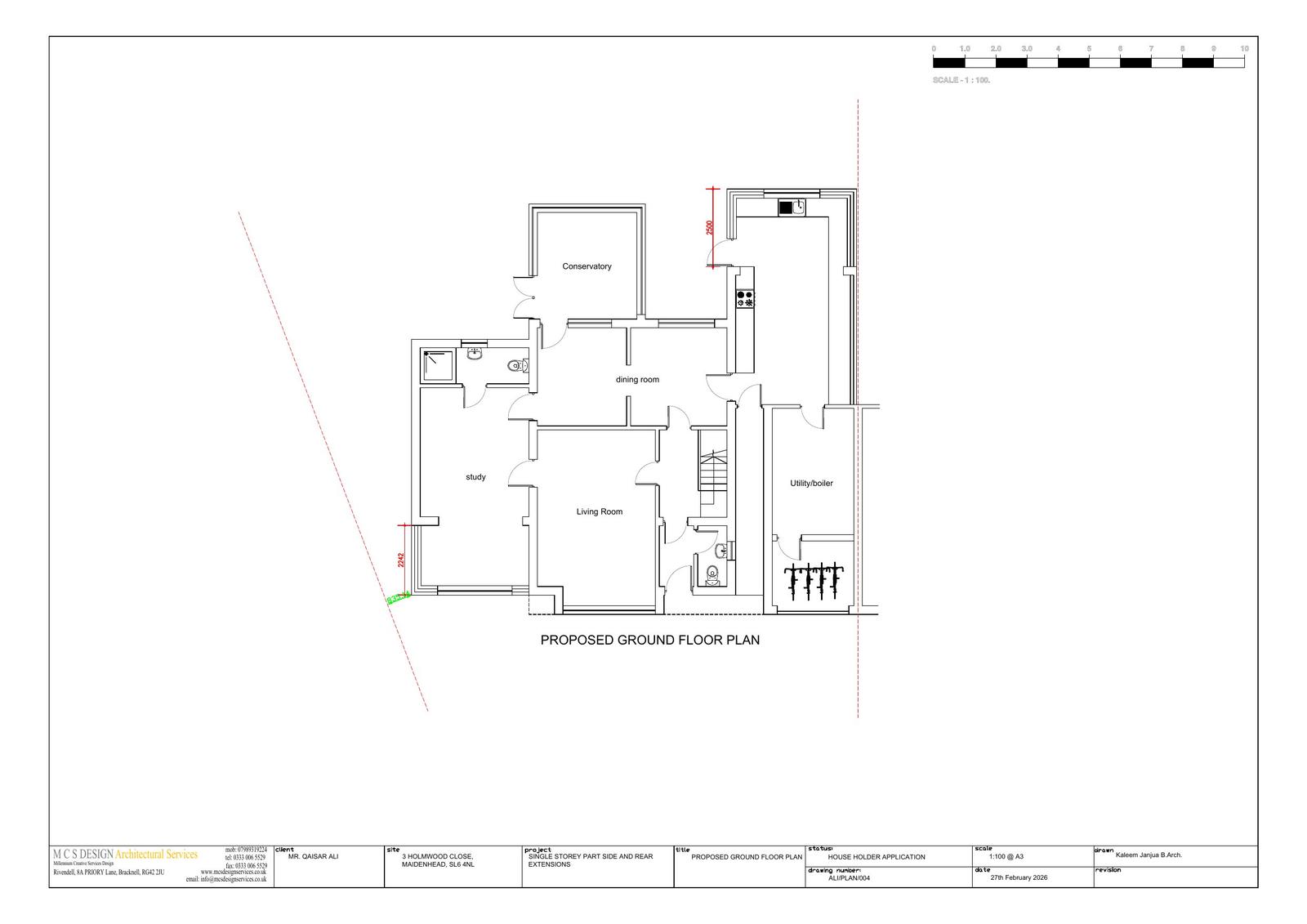
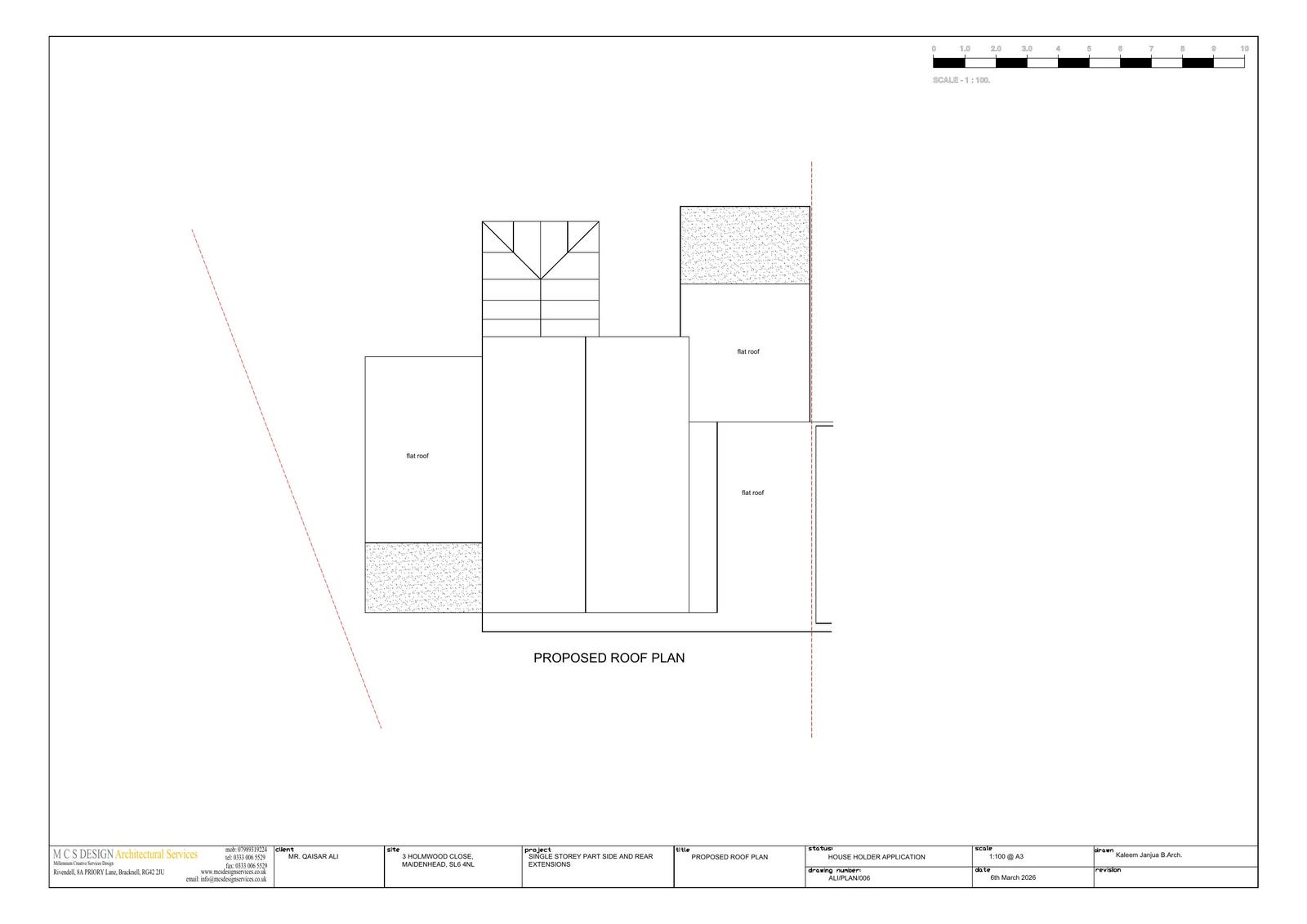
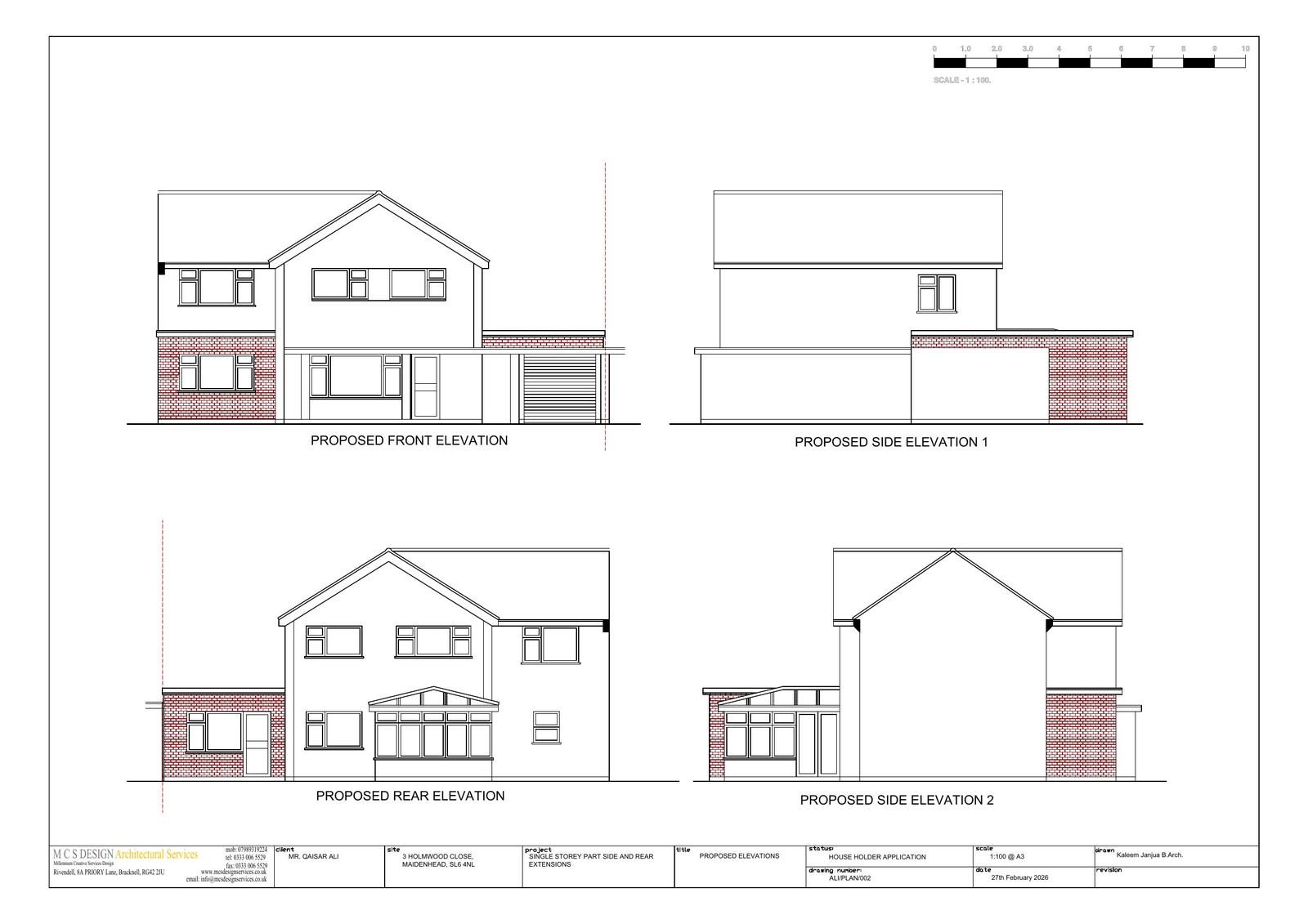
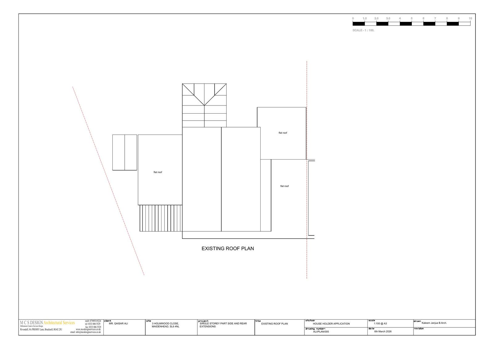
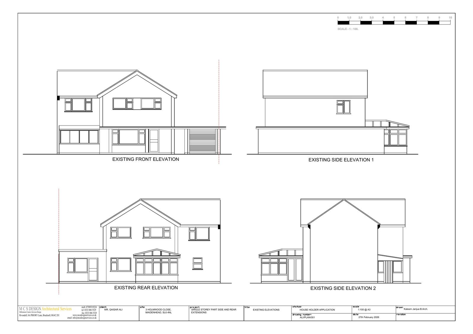
Garage conversion, single storey front/side extension and a single storey rear extension.

Documents

Application Forms
Archived · Original link
Plans
Archived · Original link
CIL Documents
Archived · Original link
Plans
Archived · Original link
Property History
Archived · Original link
Neighbour Notification List
Archived · Original link
Plans
Archived · Original link
Plans
Archived · Original link

Have your say

Your comment matters. Councils must consider every representation that raises material planning considerations.

Write a comment