← Royal Borough of Windsor and Maidenhead
26/00583/FULL
Royal Borough of Windsor and Maidenhead
Status
Awaiting decision
New housing
Received
Last month
New homes
3
Full proposal
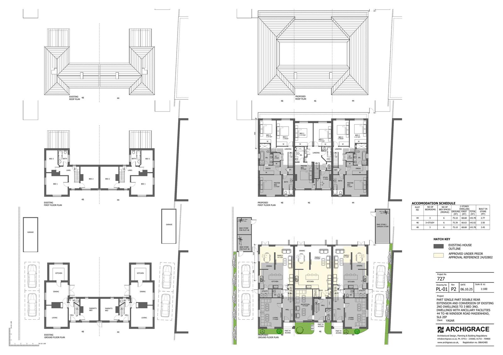
2no. front canopies, 2no. first floor front/side extensions, part single part two storey side/rear extension, raising of the eaves and ridge and alterations to fenestration to convert existing 2 no. dwellings to 3 no. dwellings and 2no. garage conversions to refuse and cycle stores and alterations to hardstanding following the demolition of existing elements.
Documents
Have your say
Your comment matters. Councils must consider every representation that raises material planning considerations.