← Royal Borough of Windsor and Maidenhead
26/00626/FULL
Royal Borough of Windsor and Maidenhead
Status
Awaiting decision
House extension
Received
28 days ago
New homes
0
Full proposal
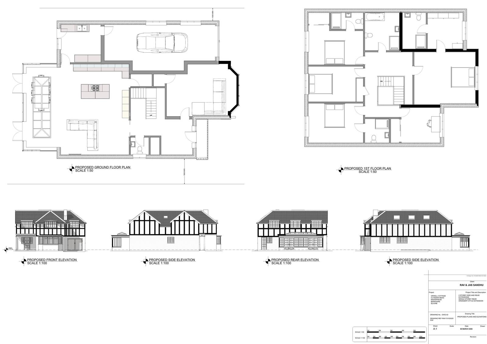
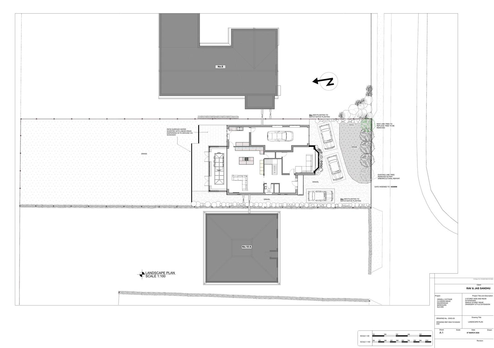
Part single part two storey wraparound extension, relocation of entrance door, front canopy, solar panels and replacement access gate following demolition of existing elements.
Documents
Have your say
Your comment matters. Councils must consider every representation that raises material planning considerations.