APP/25/01906
Wirral Council
Status
Pending
New housing
Received
Not recorded
New homes
1
Full proposal
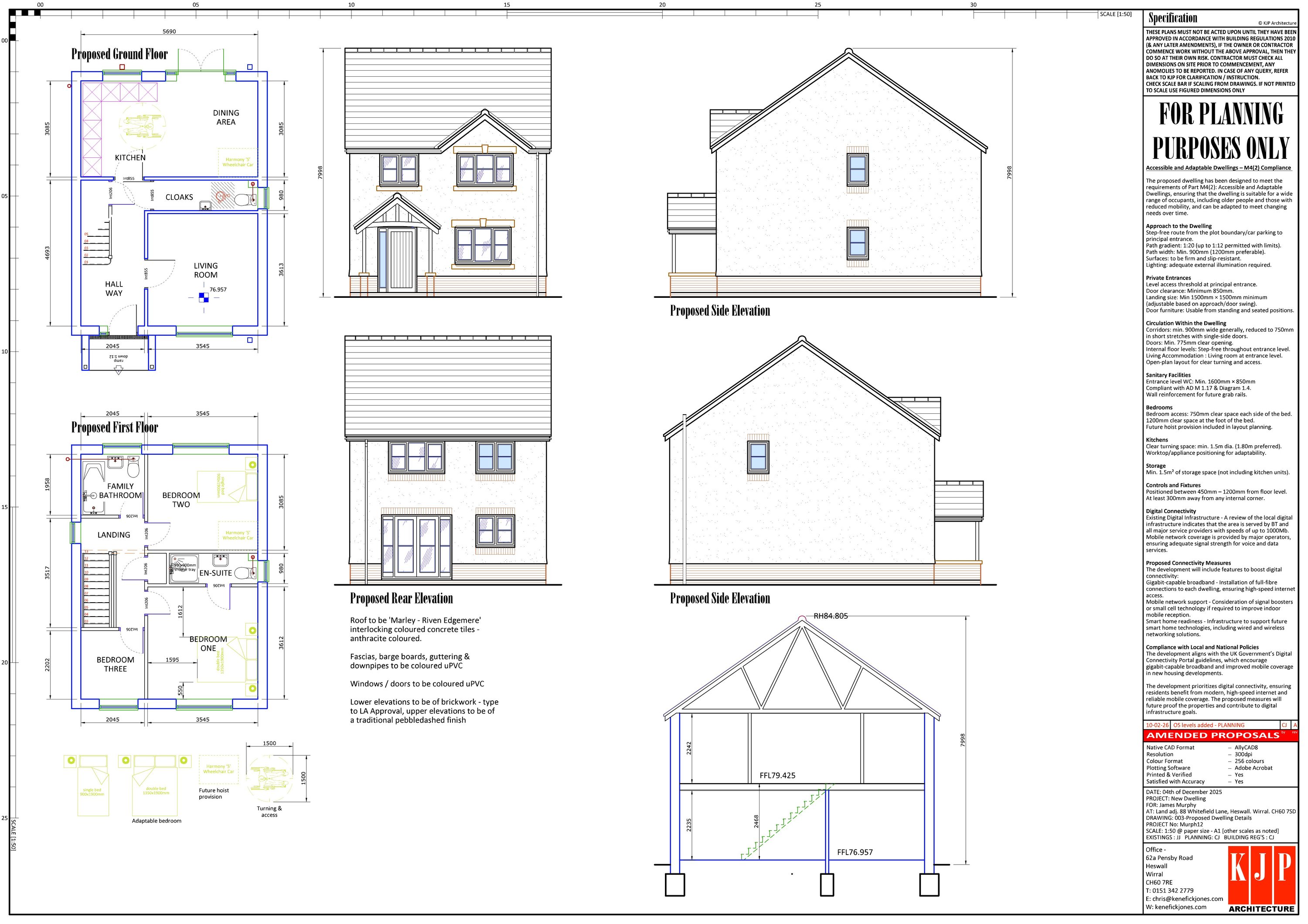
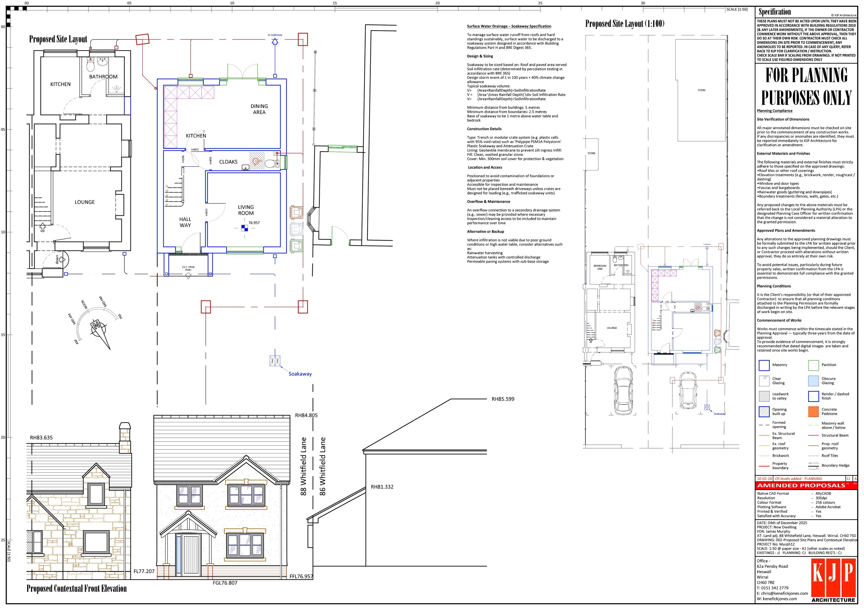
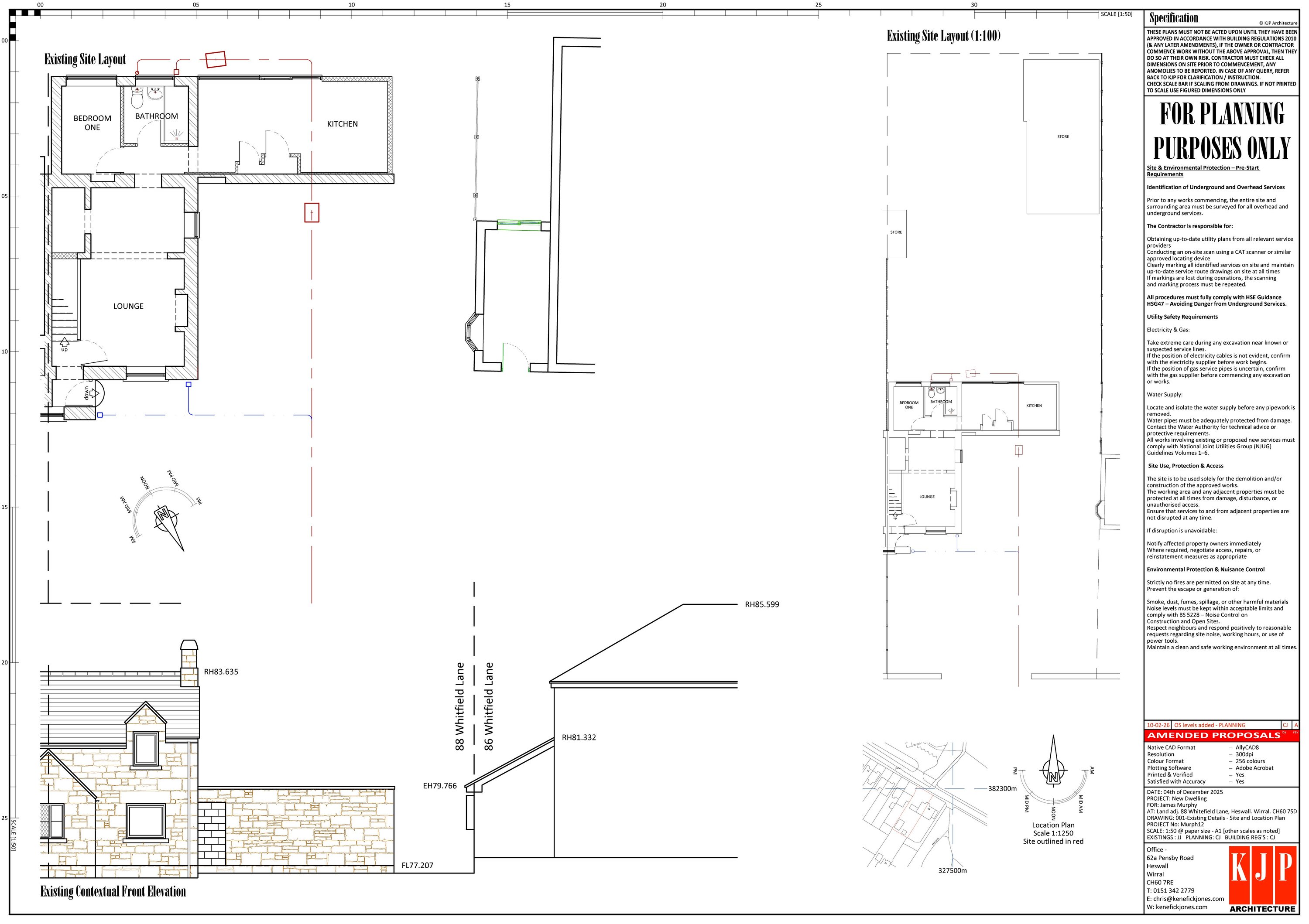
Erection of detached dwellinghouse with new access and amenity space within land adjacent to 88 Whitfield Lane
Documents
OneApp Attachments - Public
Archived
· Original link
OneApp Attachments - Public
Archived
· Original link
OneApp Attachments - Public
Archived
· Original link
OneApp Attachments - Public
Archived
· Original link
OneApp Attachments - Public
Archived
· Original link
Have your say
Your comment matters. Councils must consider every representation that raises material planning considerations.