← Wirral Council

Status

Pending Listed building
Received
Not recorded
New homes
10

Full proposal

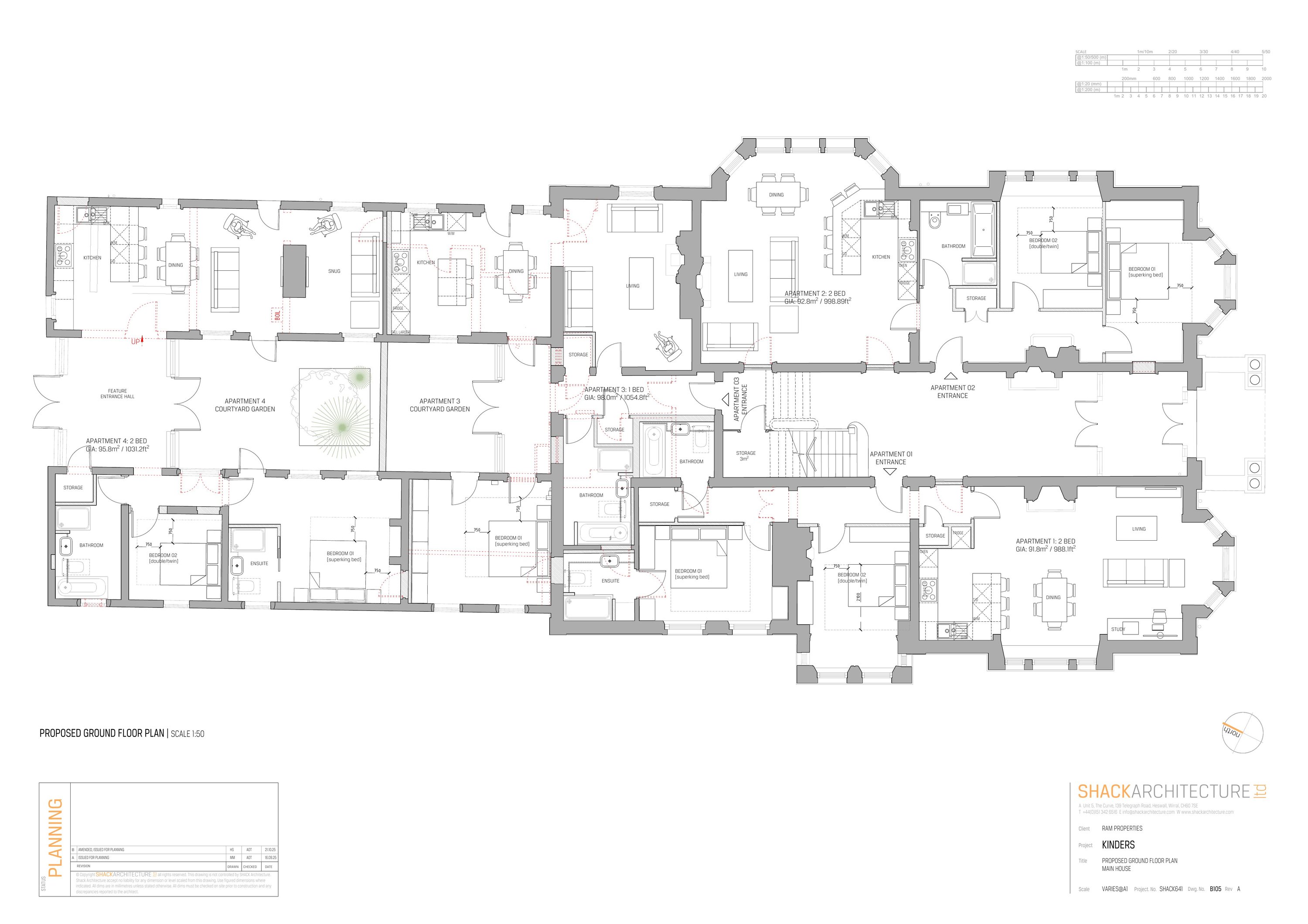
Redevelopment and change of use of existing Grade II listed building into residential use including the following: refurbishment and conversion of building known as Kinders into 10 apartments; refurbishment and conversion of existing stable block...

Documents

-Kinders-Statement-of-Community-Involvement.
Application Submission Details - Public
Not yet archived · Original link
-Statutory-Metric
Application Submission Details - Public
Not yet archived · Original link
21854-CCL-XX-XX-T-C-0001_FRA DS Full Report REV P03.pdf
OneApp Attachments - Public
Not yet archived · Original link
22-0169 Kinders Allport Road Transport Statement P03.pdf
OneApp Attachments - Public
Not yet archived · Original link
3D visualistions of proopsed developmetn
Application Submission Details - Public
Not yet archived · Original link
OneApp Attachments - Public
Archived · Original link
641_B103_B_EXISTING STABLE BLOCK.pdf
OneApp Attachments - Public
Not yet archived · Original link
641_B126_B_BOUNDARY SITE TREATMENT DETAILS.pdf
OneApp Attachments - Public
Not yet archived · Original link
641_B127_B_HOUSE TYPE KEY PLAN .pdf
OneApp Attachments - Public
Not yet archived · Original link
641_Existing Building Elevations.pdf
OneApp Attachments - Public
Not yet archived · Original link
641_Existing Building Floor Plans.pdf
OneApp Attachments - Public
Not yet archived · Original link
OneApp Attachments - Public
Archived · Original link
641_Proposed house types floor plans and elevations.pdf
OneApp Attachments - Public
Not yet archived · Original link
641_Proposed Street Scene elevations.pdf
OneApp Attachments - Public
Not yet archived · Original link
ApplicationFormRedacted.pdf
OneApp Attachments - Public
Not yet archived · Original link
Biodiversity-Metric-Condition-Assessments-Sheets.
Application Submission Details - Public
Not yet archived · Original link
BNG Assessment
Application Submission Details - Public
Not yet archived · Original link
BNG Metric
Application Submission Details - Public
Not yet archived · Original link
Contents-of-Kinders-Package
Application Submission Details - Public
Not yet archived · Original link
Draft Shadow Habitats Regulations Assessment (sHRA)
Application Submission Details - Public
Not yet archived · Original link
Draft-Biodiversity-Gain-Plan
Application Submission Details - Public
Not yet archived · Original link
EXISTING-BUILDING-EXISTING-GF-PLAN
Application Submission Details - Public
Not yet archived · Original link
EXISTING-BUILDING-PROPOSED-ELEVATIONS-
Application Submission Details - Public
Not yet archived · Original link
Habitat Management and Monitoring Plan
Application Submission Details - Public
Not yet archived · Original link
Kinders BS5837 Report- 10.2025.pdf
OneApp Attachments - Public
Not yet archived · Original link
KINDERS DESIGN AND ACCESS STATEMENT.pdf
OneApp Attachments - Public
Not yet archived · Original link
KINDERS LEVEL 3 HISTORIC BUILDING RECORD_small.pdf
OneApp Attachments - Public
Not yet archived · Original link
KINDERS STATEMENT OF HISTORIC SIGNIFICANCE.pdf
OneApp Attachments - Public
Not yet archived · Original link
Kinders-Crime-impact-statement
Application Submission Details - Public
Not yet archived · Original link
Kinders-Digital-Connectivity-Statement
Application Submission Details - Public
Not yet archived · Original link
Kinders-Energy-Statement.
Application Submission Details - Public
Not yet archived · Original link
Kinders-Health-Impact-Assessment
Application Submission Details - Public
Not yet archived · Original link
Kinders-Planning-Statement
Application Submission Details - Public
Not yet archived · Original link
Kinders-Refuse-and-Recycling-Management-Plan
Application Submission Details - Public
Not yet archived · Original link
LocationPlan.pdf
OneApp Attachments - Public
Not yet archived · Original link
PR-25-0207 Kinders - BNG Assessment.pdf
OneApp Attachments - Public
Not yet archived · Original link
PR-25-0207 Kinders - Updated Dusk Survey Results V1.1.pdf
OneApp Attachments - Public
Not yet archived · Original link
Prelim Ecology Appraisal -Kinders Bromborough - PEA (003).pdf
OneApp Attachments - Public
Not yet archived · Original link
PROPOSED-SITE-PLAN
Application Submission Details - Public
Not yet archived · Original link
PROPOSED-STABLE-BLOCK
Application Submission Details - Public
Not yet archived · Original link
Refuse and Recycling Plan
Application Submission Details - Public
Not yet archived · Original link
Social Value Statement
Application Submission Details - Public
Not yet archived · Original link
Soft Landscape Package
Application Submission Details - Public
Not yet archived · Original link
Spatial analysis results (Created from GIS)
Uncategorised
Not yet archived · Original link
Spatial analysis results (Created from GIS)
Uncategorised
Not yet archived · Original link
STREET-SCENE-ELEVATIONS-01
Application Submission Details - Public
Not yet archived · Original link
STREET-SCENE-ELEVATIONS-02
Application Submission Details - Public
Not yet archived · Original link
STREET-SCENE-ELEVATIONS-03
Application Submission Details - Public
Not yet archived · Original link
STREET-SCENE-ELEVATIONS-04
Application Submission Details - Public
Not yet archived · Original link
STREET-SCENE-ELEVATIONS-05
Application Submission Details - Public
Not yet archived · Original link

Have your say

Your comment matters. Councils must consider every representation that raises material planning considerations.

Write a comment