← Wirral Council

Status

Pending Change of use
Received
Not recorded
New homes
0

Full proposal

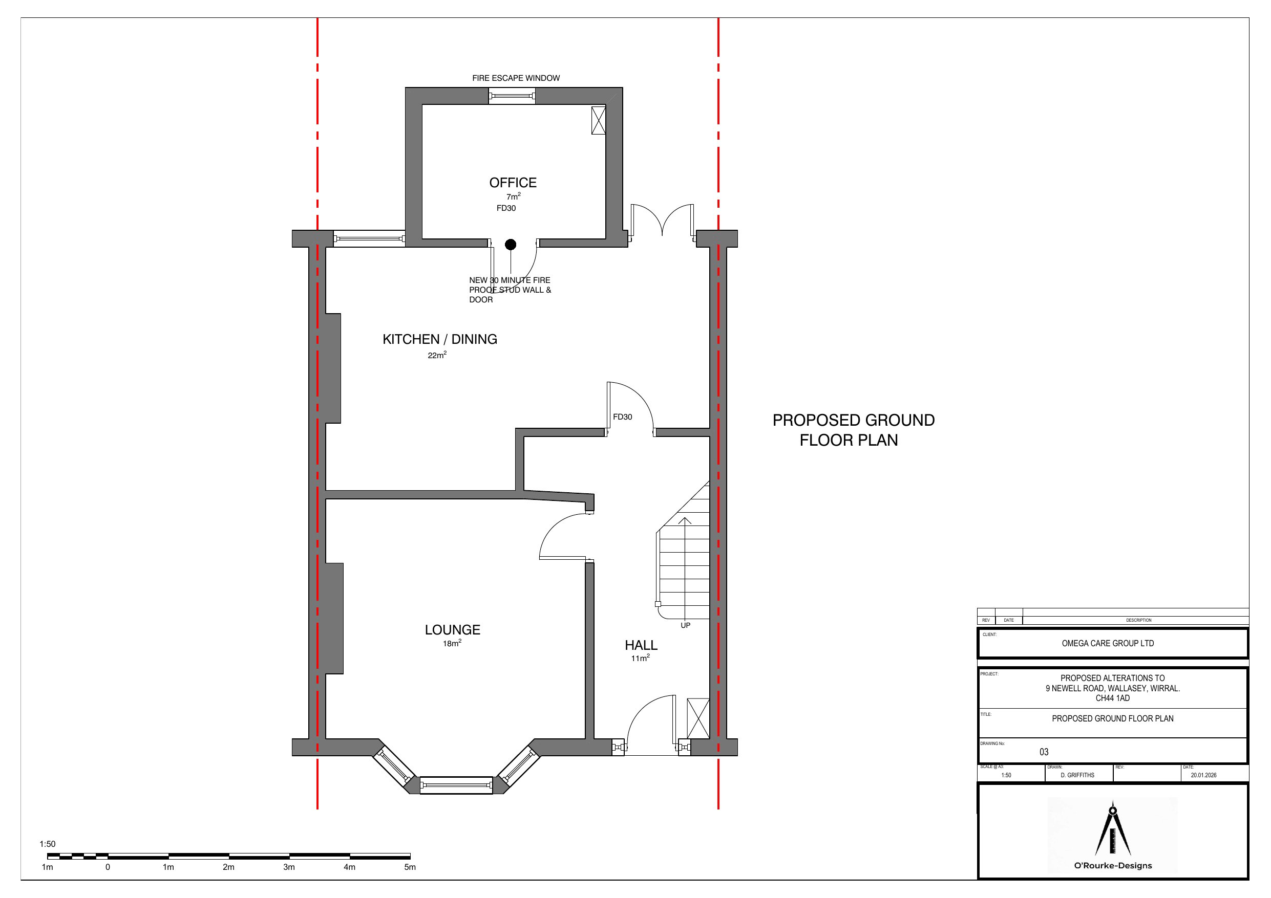
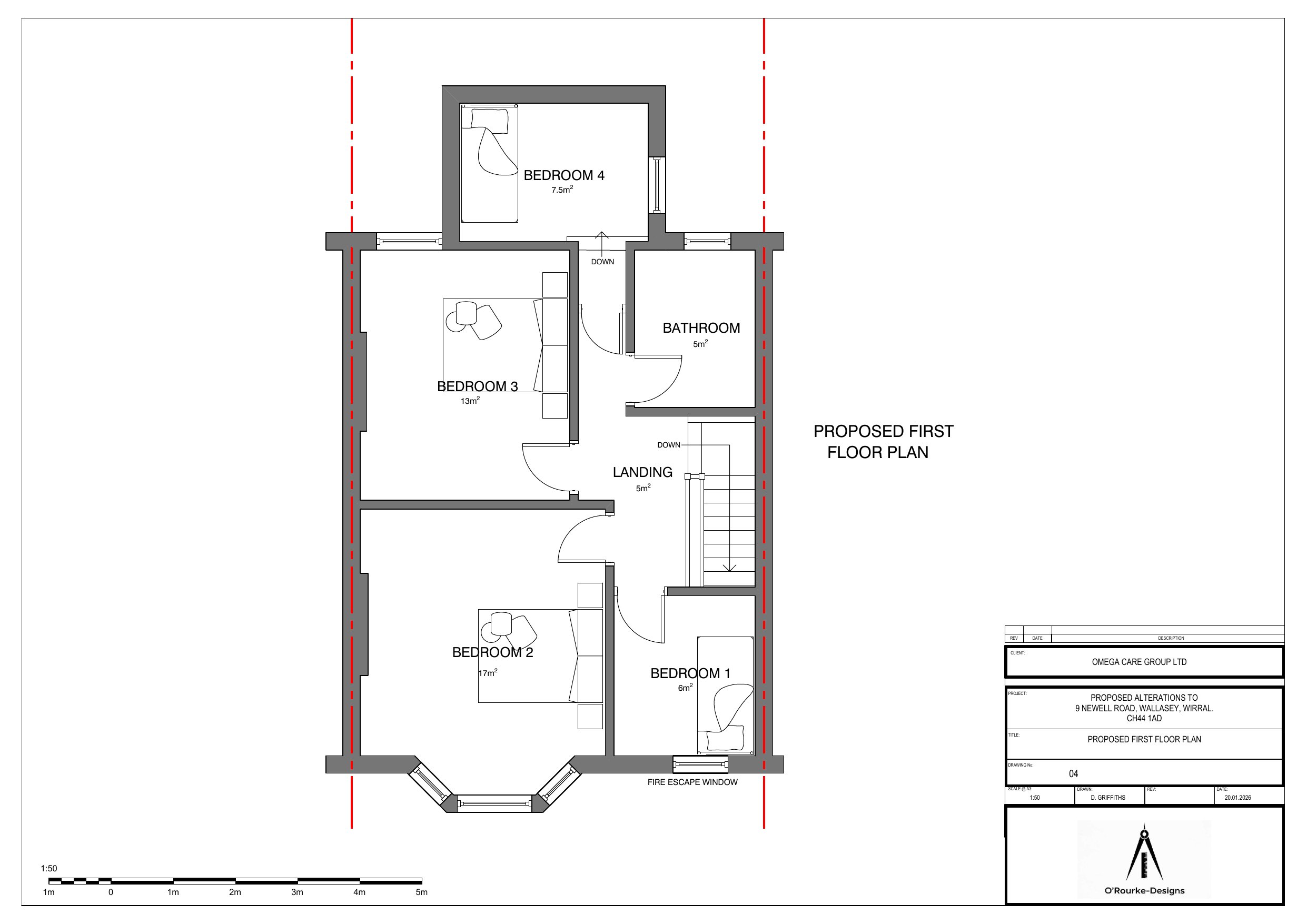
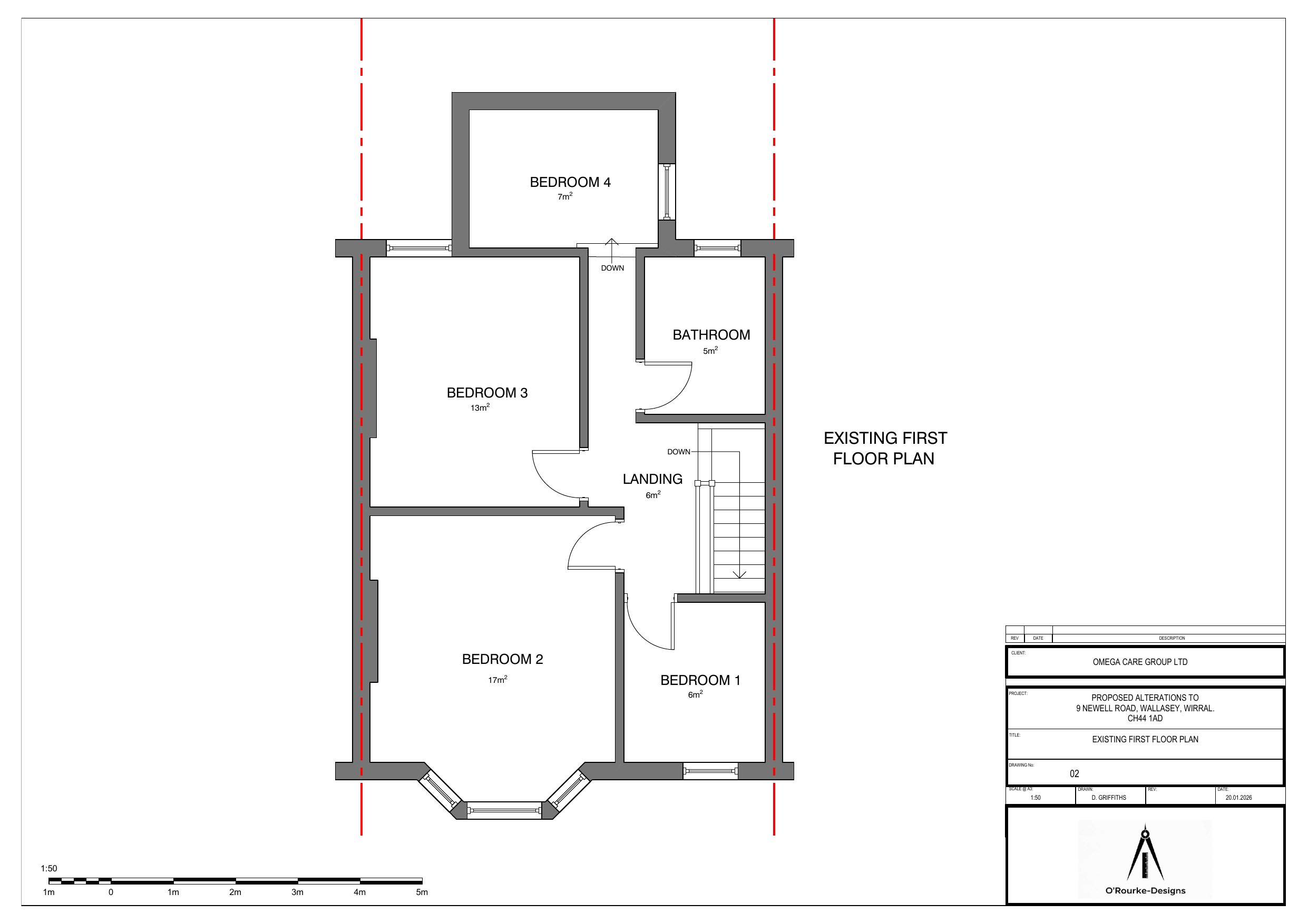
Change of use from dwelling (C3) into supported accommodation (children's residential home for 2 children)

Documents

OneApp Attachments - Public
Archived · Original link
OneApp Attachments - Public
Archived · Original link
OneApp Attachments - Public
Archived · Original link
OneApp Attachments - Public
Archived · Original link
OneApp Attachments - Public
Archived · Original link
OneApp Attachments - Public
Archived · Original link
Application Submission Details - Public
Archived · Original link
Application Submission Details - Public
Archived · Original link

Have your say

Your comment matters. Councils must consider every representation that raises material planning considerations.

Write a comment