← Wirral Council

Status

Pending House extension
Received
Not recorded
New homes
0

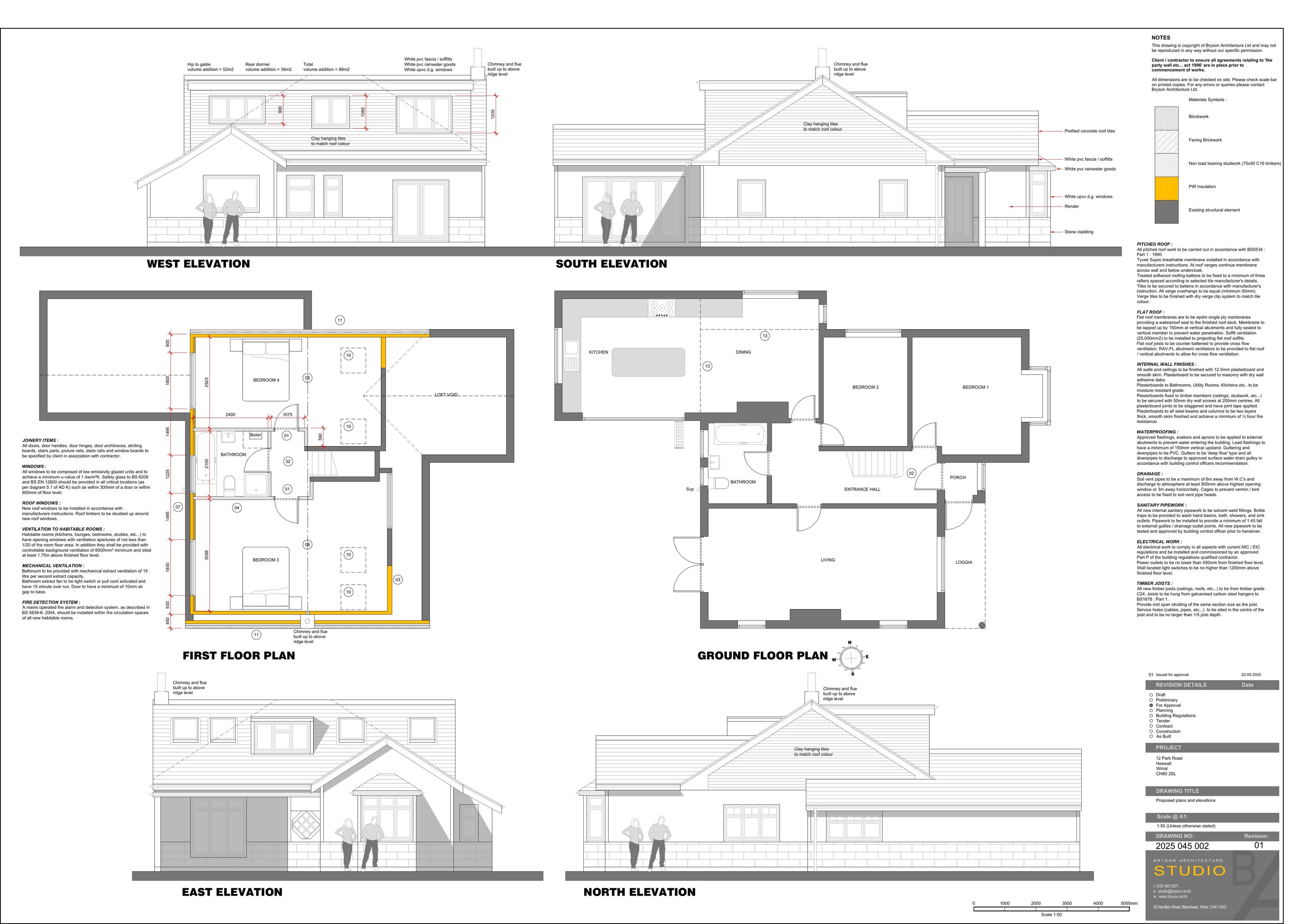
Summary

Two hip-to-gable conversions and a rear dormer.

Full proposal

Erection of two hip to gable conversions and a rear dormer.

Documents

50 - Decision Notice - Approval
Decision Notice - Public
Not yet archived · Original link
Application Form - Without Personal Data
OneApp Attachments - Public
Not yet archived · Original link
Location Plan and Existing Floor Plans and Elevations
OneApp Attachments - Public
Not yet archived · Original link
Officer Report
Officer Report
Not yet archived · Original link
Revised Drawing - Public
Archived · Original link
Superseded Plans - Public
Archived · Original link

Have your say

Your comment matters. Councils must consider every representation that raises material planning considerations.

Write a comment