← Wirral Council

Status

Pending House extension
Received
Not recorded
New homes
0

Full proposal

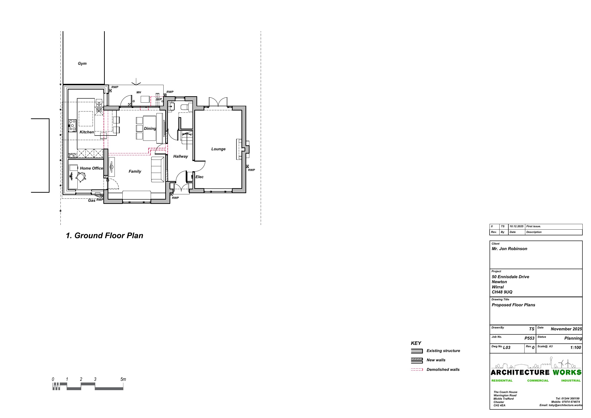
Single storey side extension with external alterations to existing dwelling

Documents

Application Form - Without Personal Data
Application Form - Public
Not yet archived · Original link
OneApp Attachments - Public
Archived · Original link
Existing Elevations
OneApp Attachments - Public
Not yet archived · Original link
Existing Floor Plans
OneApp Attachments - Public
Not yet archived · Original link
Location Plan
OneApp Attachments - Public
Not yet archived · Original link
Proposed Elevations
OneApp Attachments - Public
Not yet archived · Original link
OneApp Attachments - Public
Archived · Original link

Have your say

Your comment matters. Councils must consider every representation that raises material planning considerations.

Write a comment