← Wirral Council

Status

Pending House extension
Received
Not recorded
New homes
0

Full proposal

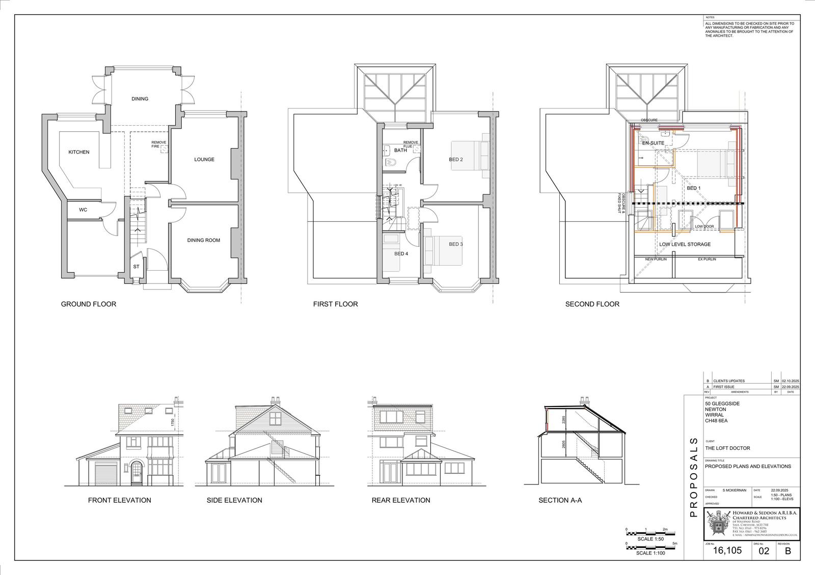
Hip to gable dormer loft conversion with dormer on the rear elevation. Volume of roof extensions is less than 50m3

Documents

OneApp Attachments - Public
Archived · Original link
OneApp Attachments - Public
Archived · Original link
OneApp Attachments - Public
Archived · Original link
OneApp Attachments - Public
Archived · Original link

Have your say

Your comment matters. Councils must consider every representation that raises material planning considerations.

Write a comment