← Woking Borough Council

Status

Awaiting decision New housing
Received
Not recorded
New homes
7

Summary

Demolition of garages and construction of seven dwellings with landscaping and parking.

Full proposal

The demolition of the existing garages and erection of 7 residential dwellings with associated landscaped areas and parking (amended plans)

Documents

Plans
Archived · Original link
Application Form
Archived · Original link
Report
Archived · Original link
Report
Archived · Original link
Report
Archived · Original link
Consultee Comment
Archived · Original link
ENVIRONMENT AGENCY
Consultee Comment
Not yet archived · Original link
Plans
Archived · Original link
Public Comment
Archived · Original link
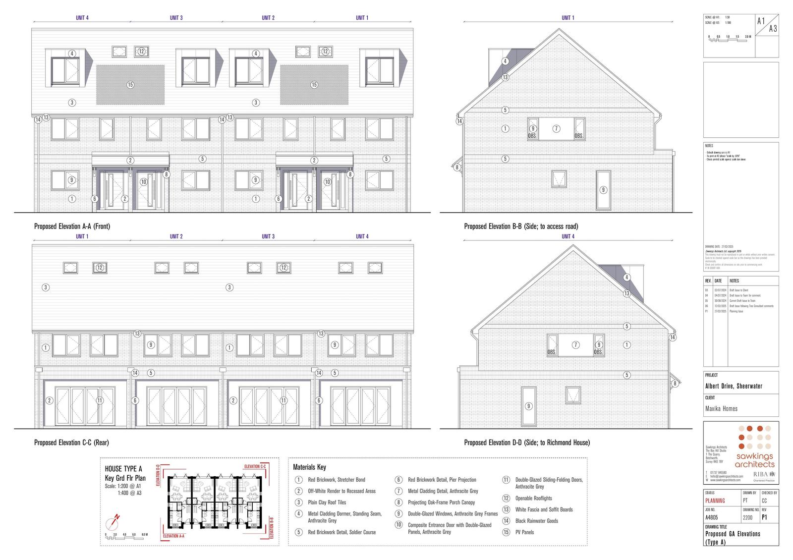
HOUSE TYPE A - PROPOSED ELEVATIONS
Plans
Not yet archived · Original link
HOUSE TYPE A - SECOND FLOOR AND ROOF PLAN
Plans
Not yet archived · Original link
HOUSE TYPE A- GROUND AND FIRST FLOOR PLANS
Plans
Not yet archived · Original link
HOUSE TYPE B - GROUND AND FIRST FLOOR PLAN
Plans
Not yet archived · Original link
HOUSE TYPE B - SECOND FLOOR AND ROOF PLAN
Plans
Not yet archived · Original link
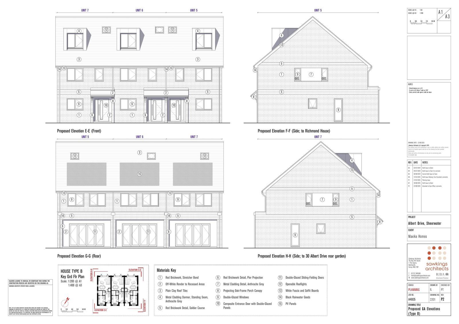
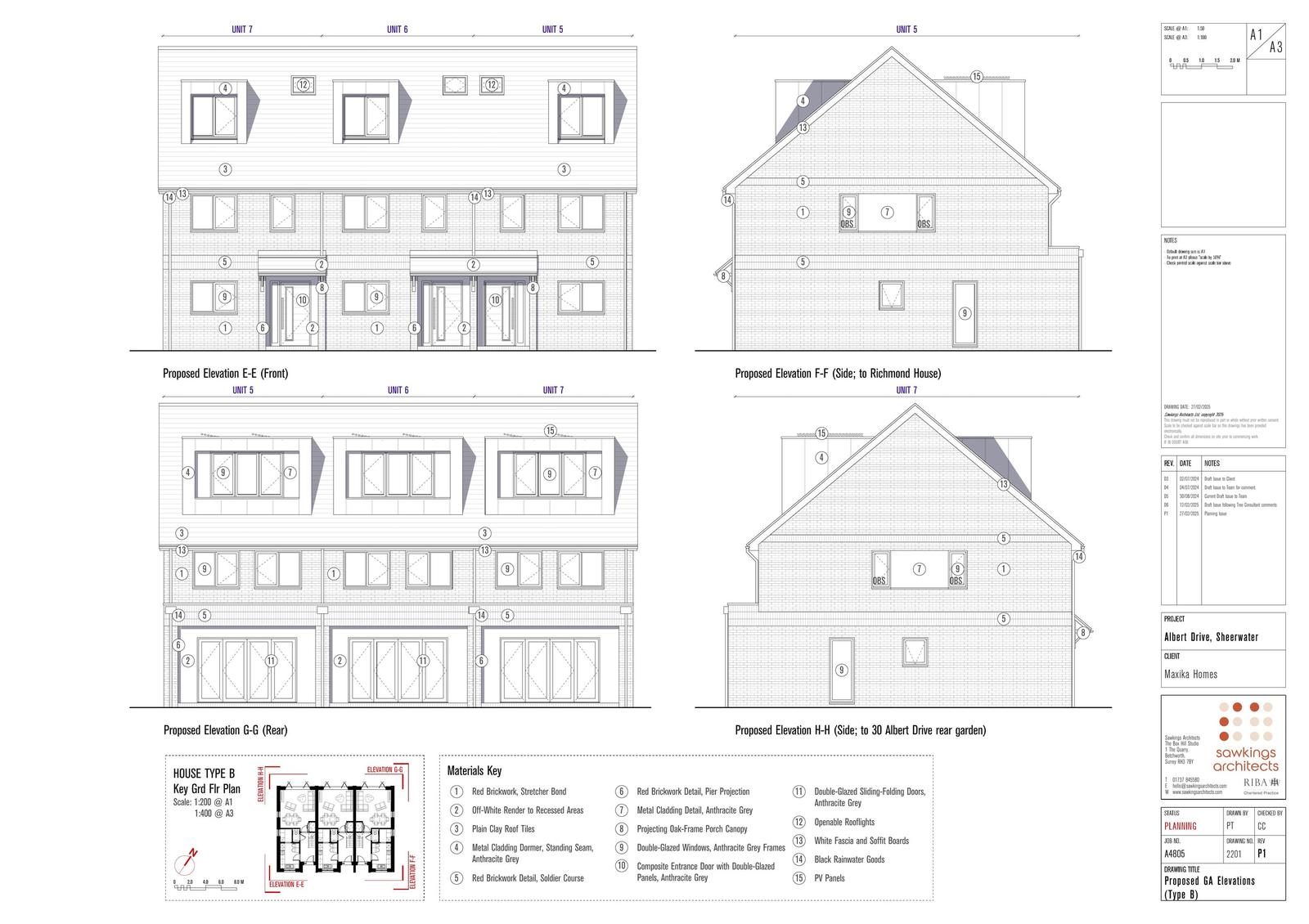
HOUSE TYPE B- PROPOSED ELEVATIONS
Plans
Not yet archived · Original link
Plans
Archived · Original link
Public Comment
Archived · Original link
Public Comment
Archived · Original link
Public Comment
Archived · Original link
Neighbour Notification List
Archived · Original link
Consultee Comment
Archived · Original link
Report
Archived · Original link
Plans
Archived · Original link
Plans
Archived · Original link
Public Comment
Archived · Original link
Report
Archived · Original link
Consultee Comment
Archived · Original link
Report
Archived · Original link

Have your say

Your comment matters. Councils must consider every representation that raises material planning considerations.

Write a comment