PLAN/2025/0900
Woking Borough Council
Status
Pending Consideration
House extension
Received
Not recorded
New homes
0
Full proposal
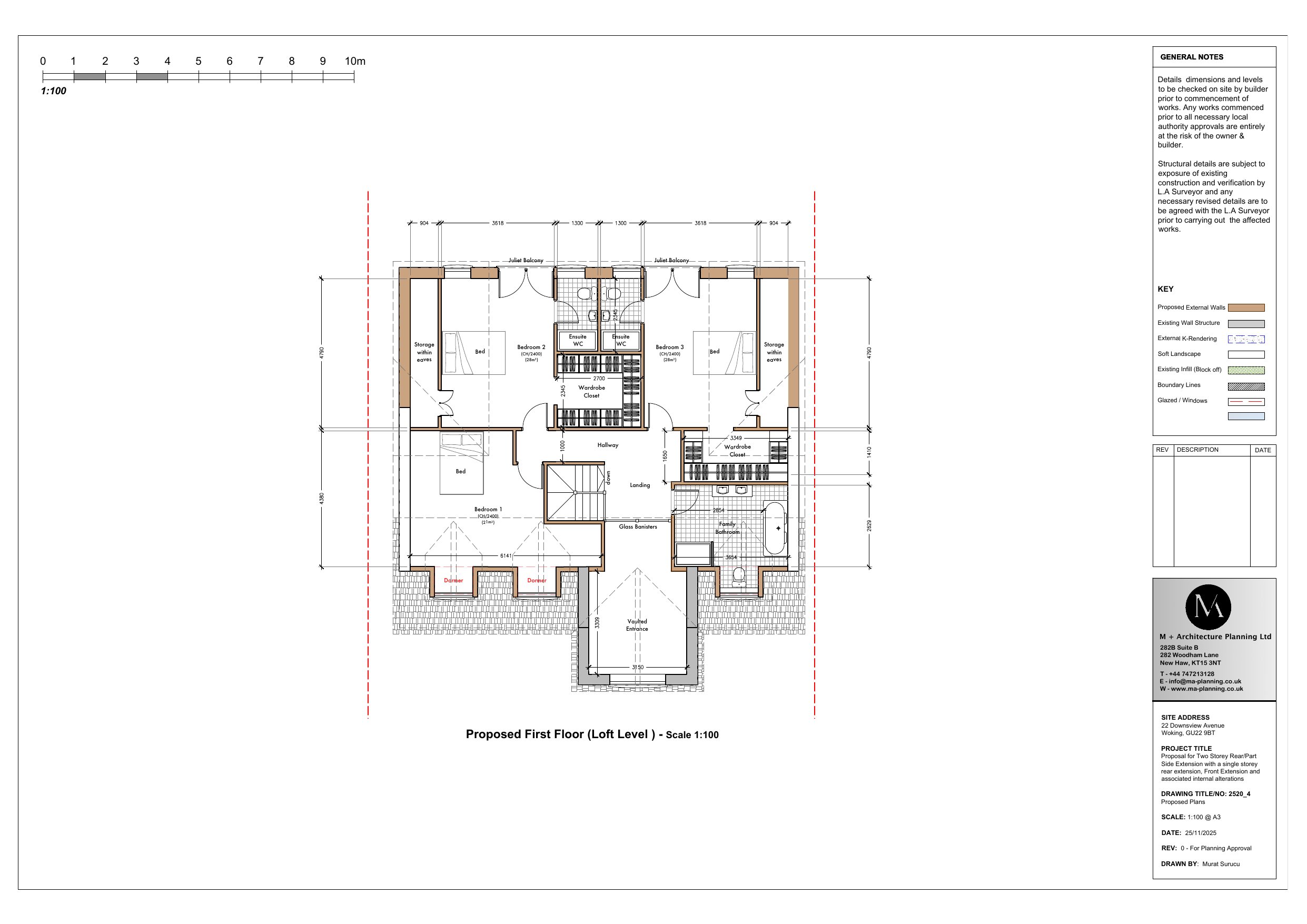
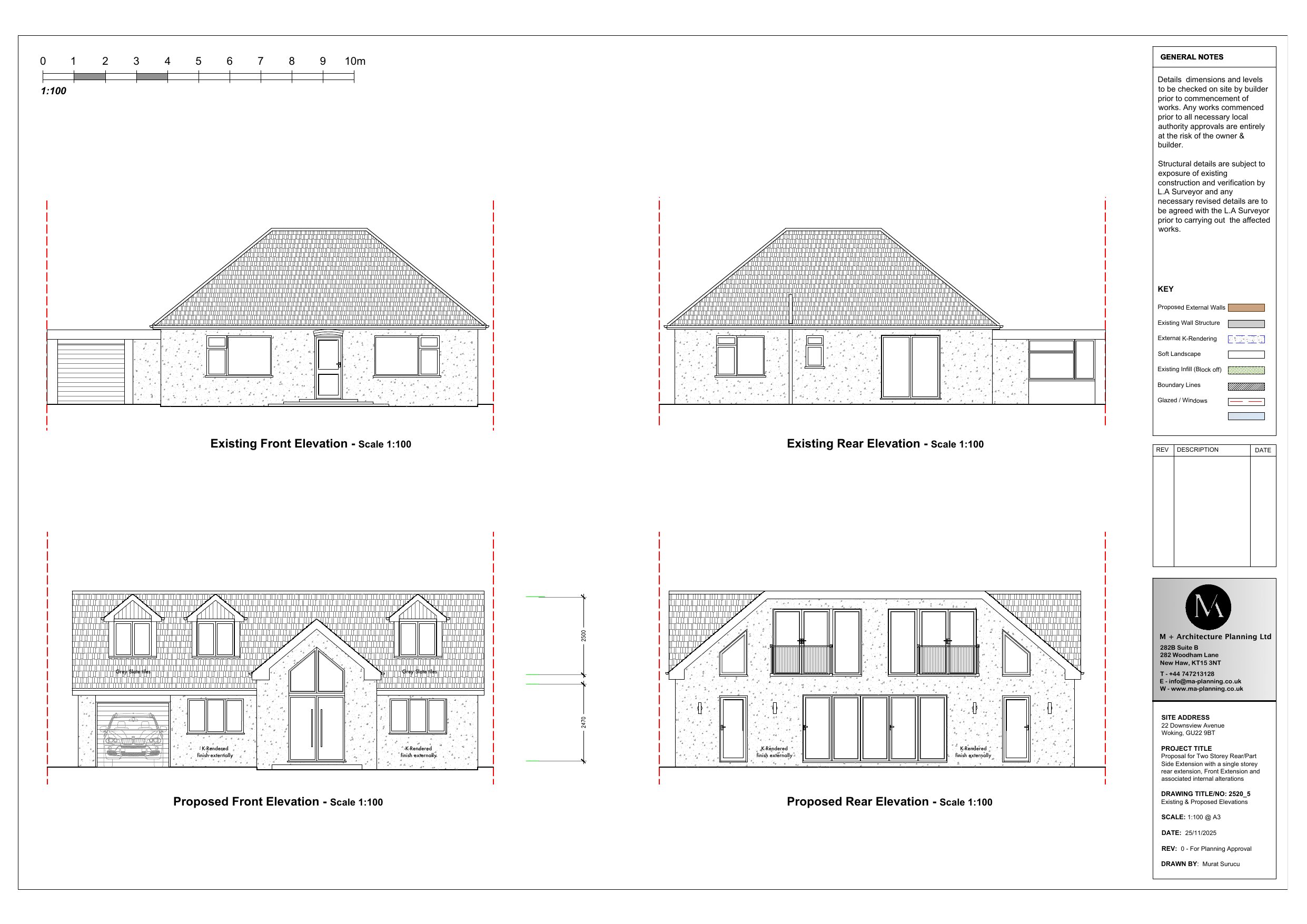
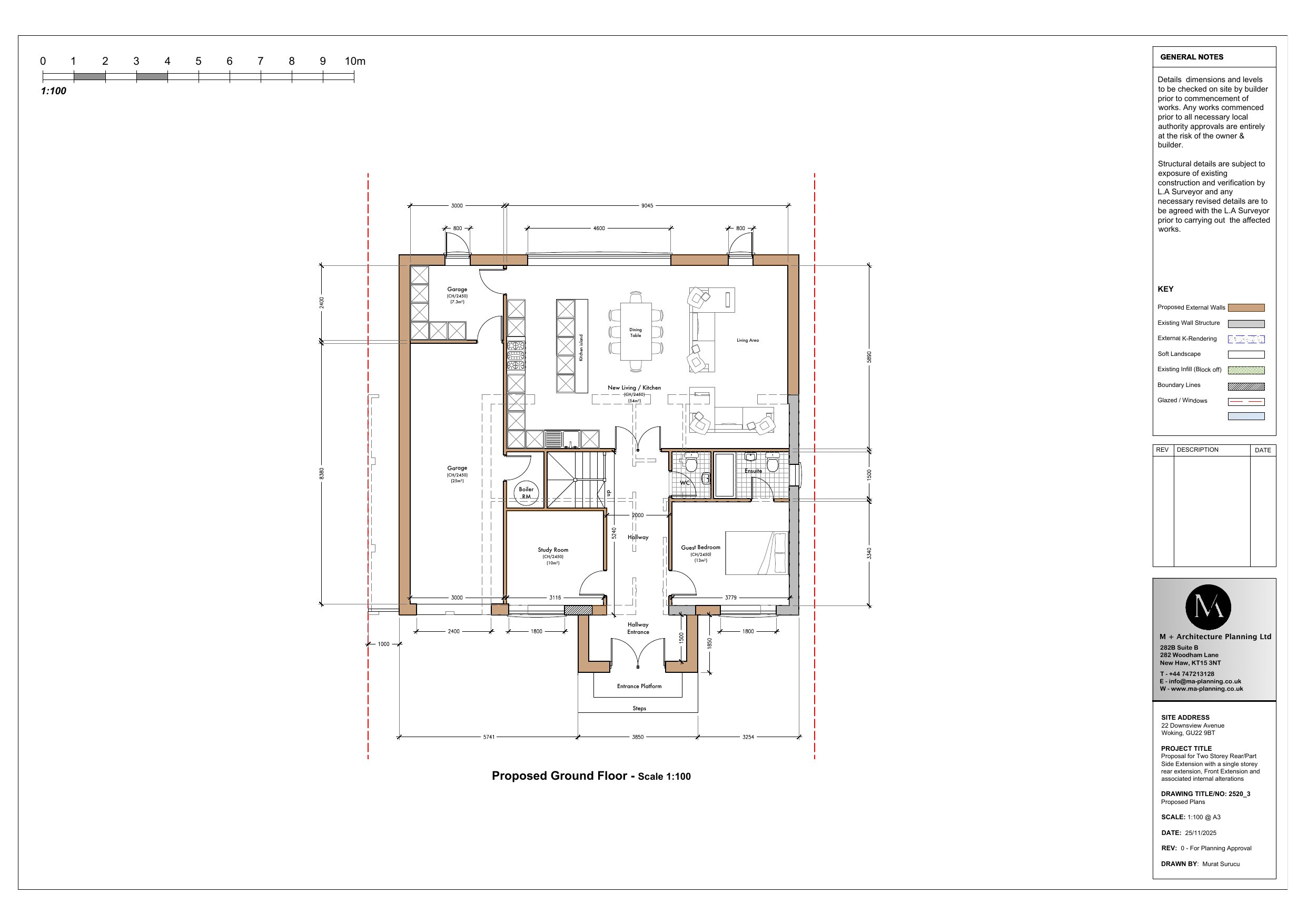
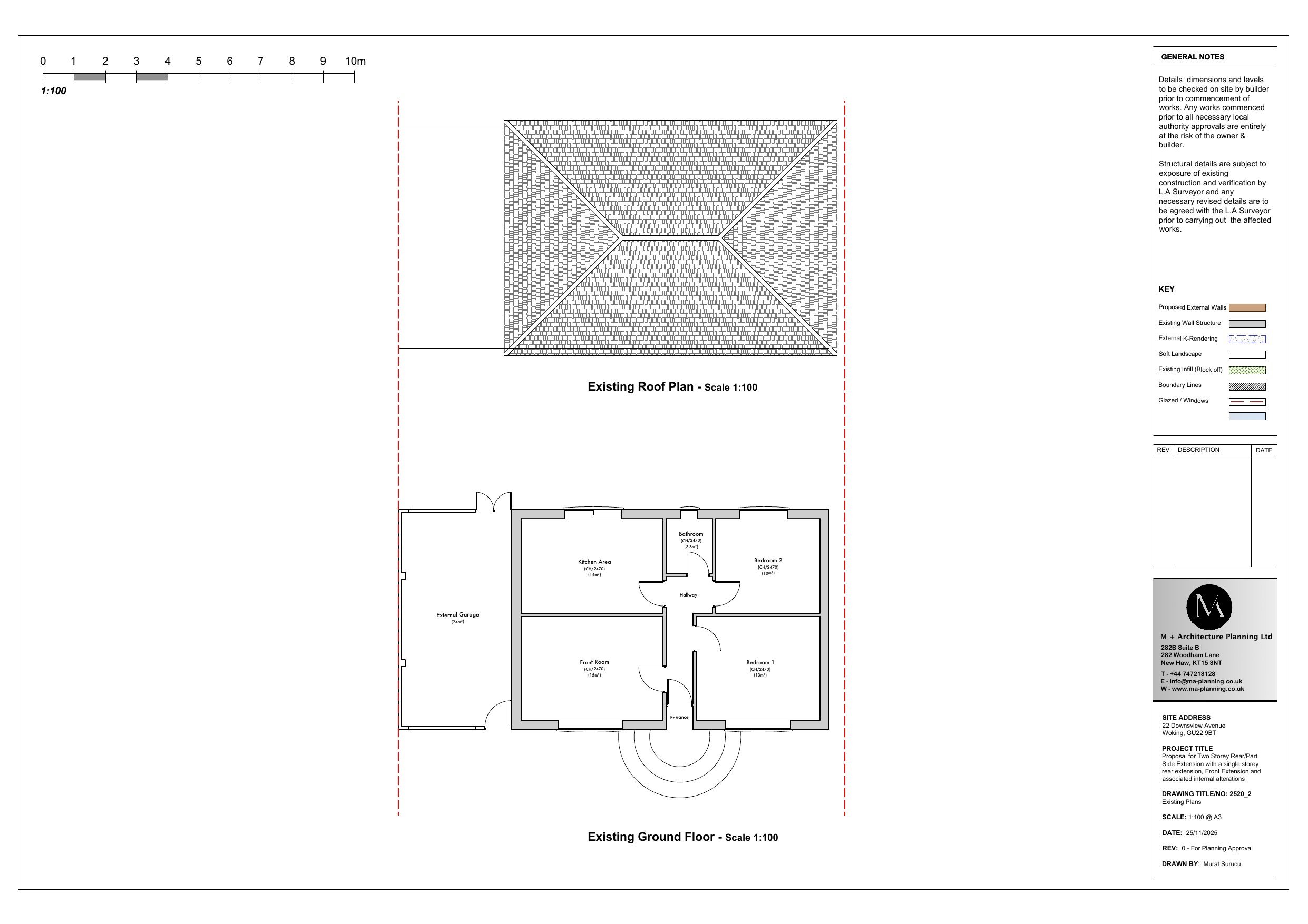
Erection of a two-storey rear extension to dwelling, roof extensions and alterations comprising hip-to-gable enlargement to northern (side) elevation, enlargement of roof over existing garage to southern (side) elevation, insertion of 3no dormers to eastern (front) elevation to facilitate conversion of the roofspace to habitable accommodation, erection of a front porch, insertion of ground and first floor side-facing windows to northern (side) elevation.
Documents
Have your say
Your comment matters. Councils must consider every representation that raises material planning considerations.