← Woking Borough Council

Status

Pending Consideration House extension
Received
Not recorded
New homes
0

Full proposal

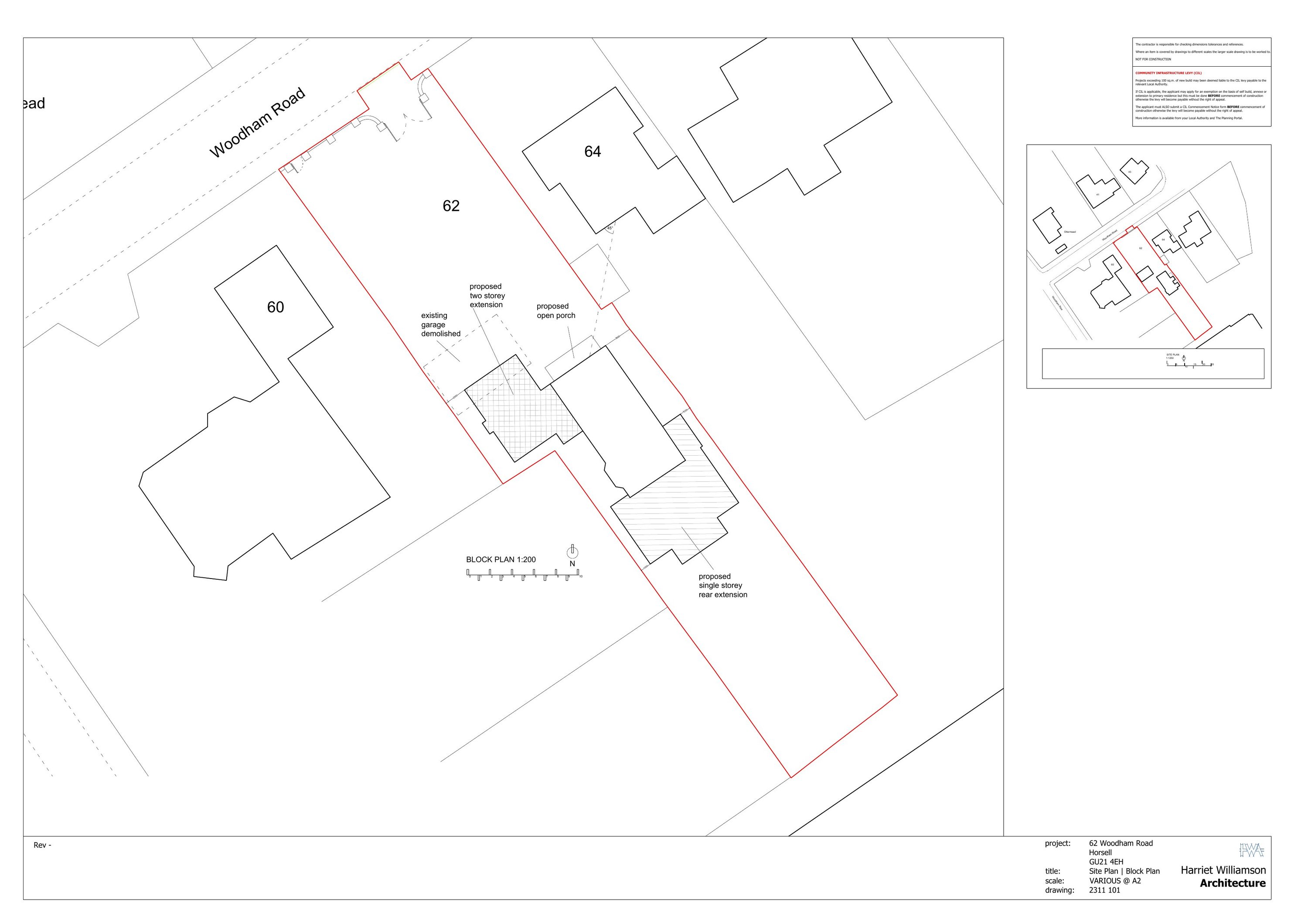
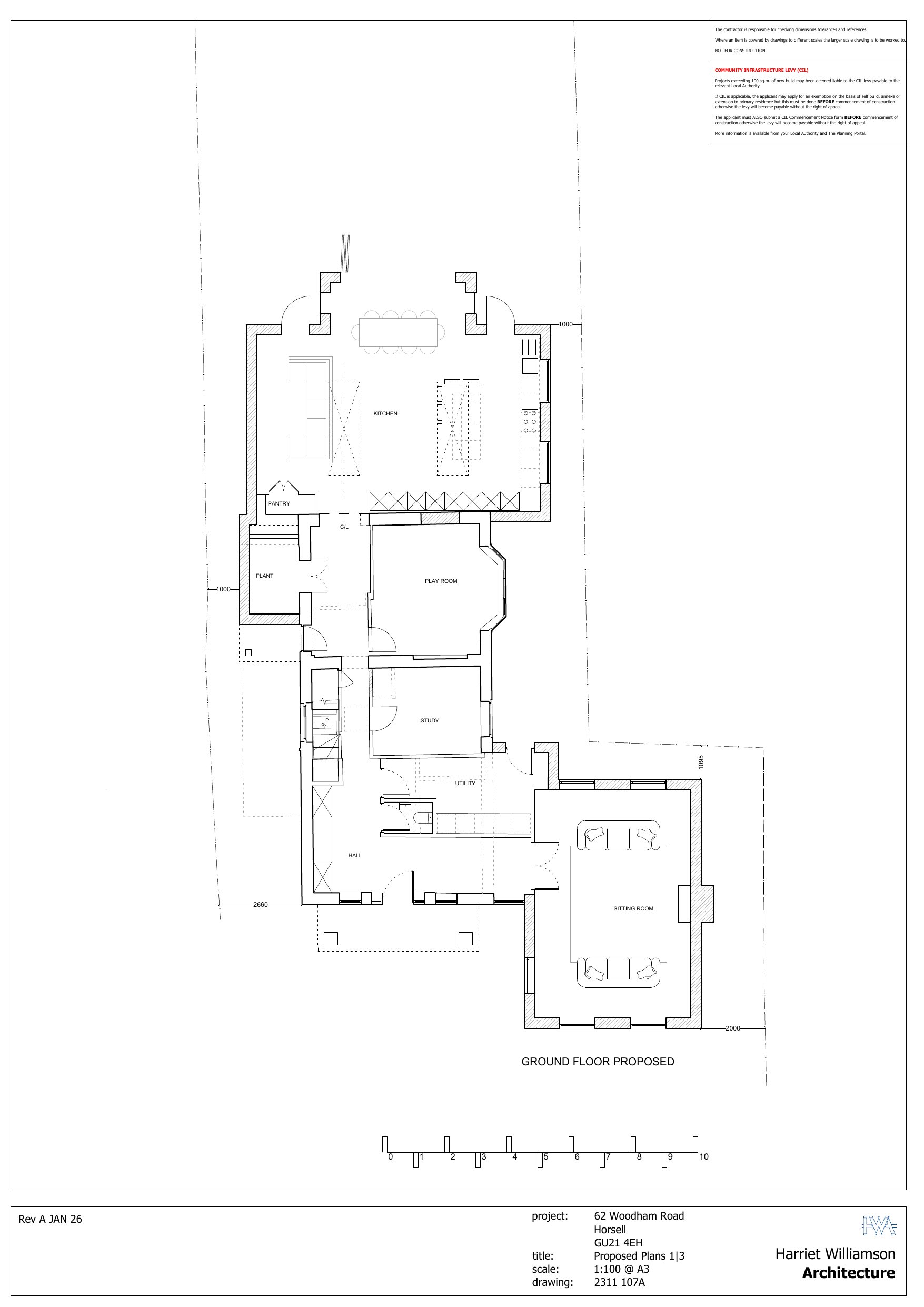
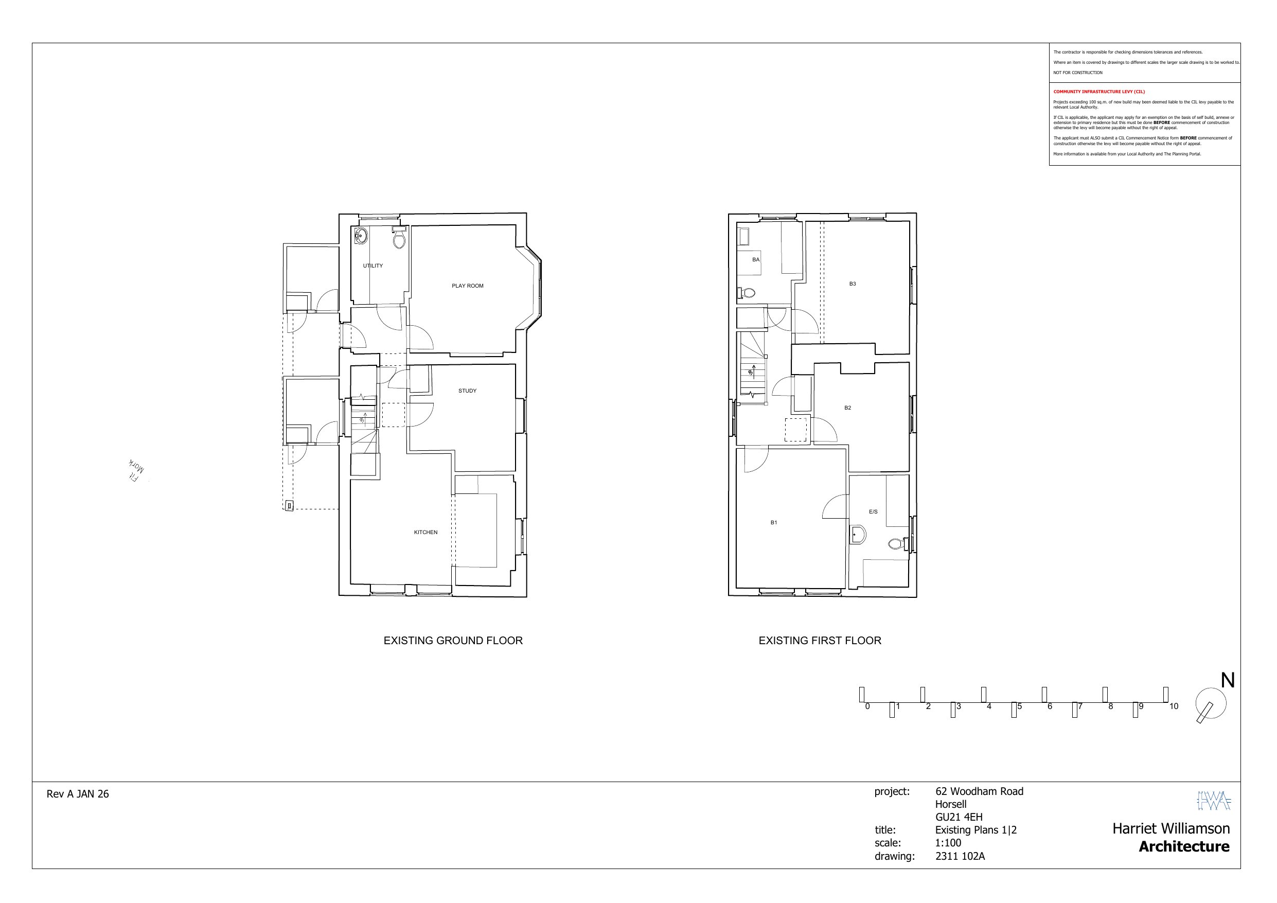
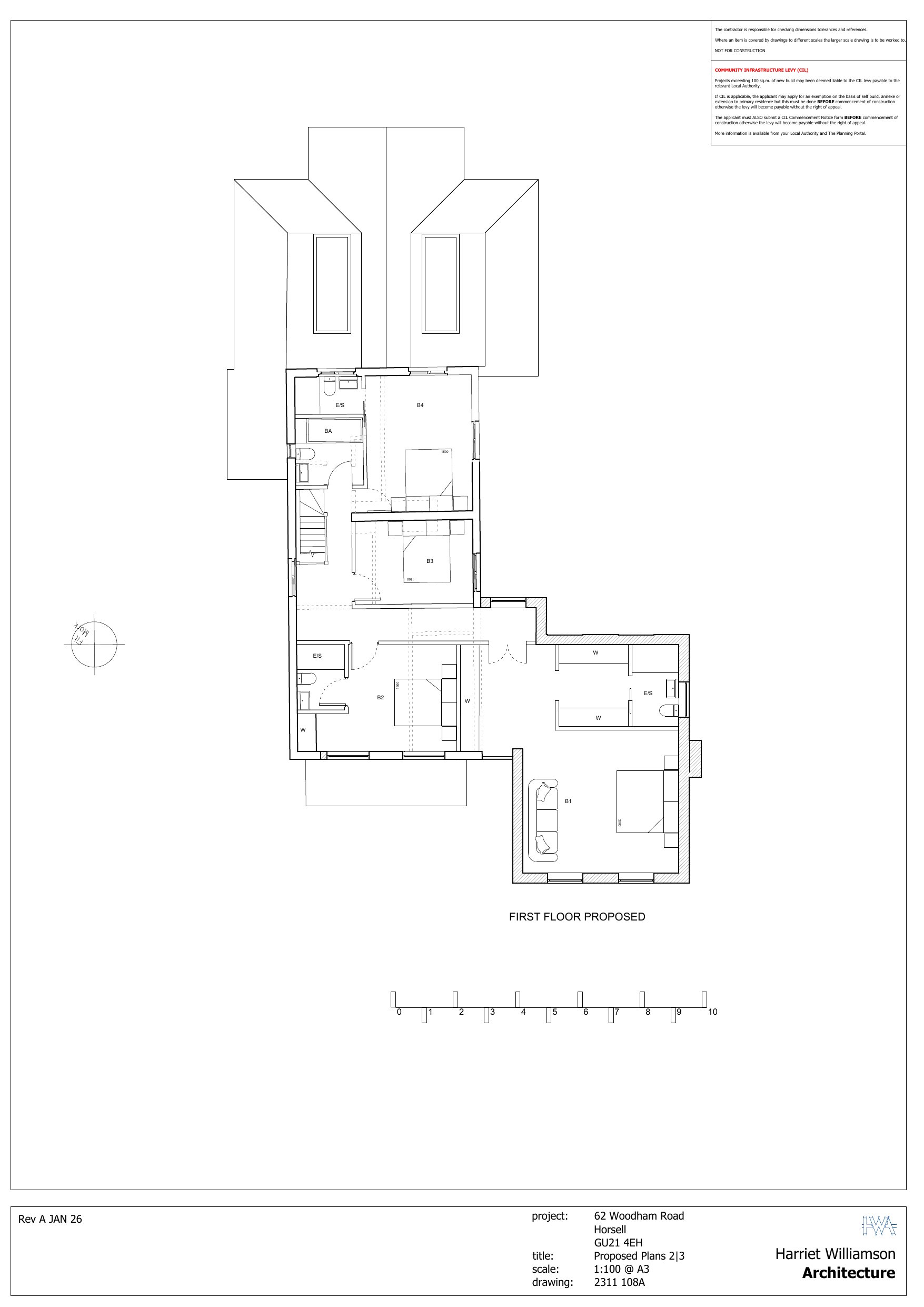
Erection of a two storey front and side extension, single storey rear extension and front porch canopy following demolition of existing single storey side extensions and detached triple garage. Erection of new front boundary treatment consisting of front entry gates with brick pillars and metal railing fence and pedestrian gate and alterations to existing vehicular access. Proposed render to all elevations and alterations to fenestration.

Documents

Plans
Archived · Original link
Plans
Archived · Original link
Plans
Archived · Original link
Plans
Archived · Original link
Public Comment
Archived · Original link
Public Comment
Archived · Original link
Public Comment
Archived · Original link
Neighbour Notification List
Archived · Original link
Application Form
Archived · Original link
Plans
Archived · Original link
Plans
Archived · Original link
Plans
Archived · Original link
Consultee Comment
Archived · Original link
Photo
Archived · Original link

Have your say

Your comment matters. Councils must consider every representation that raises material planning considerations.

Write a comment