← Woking Borough Council

Status

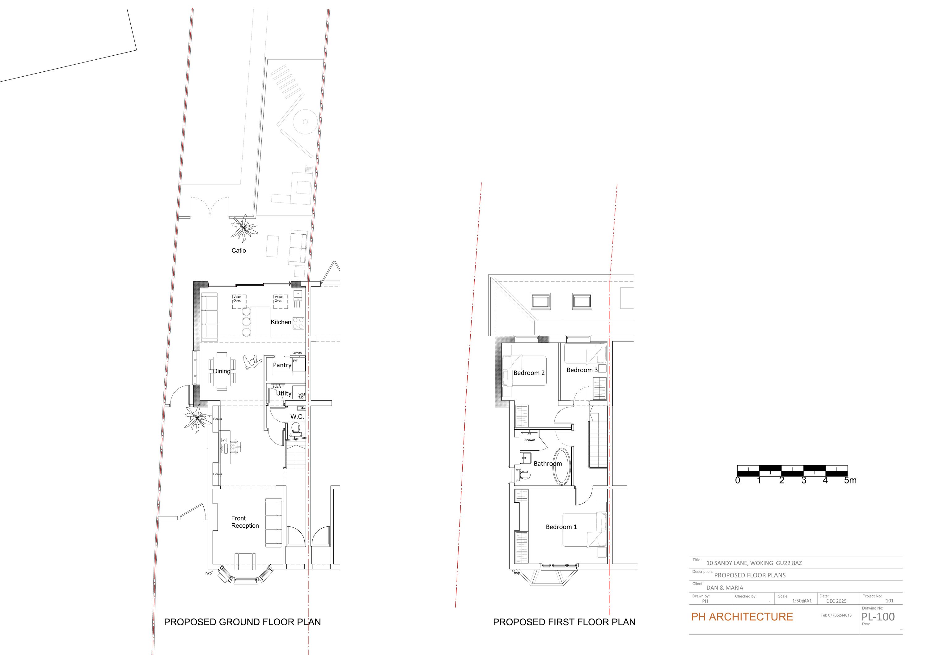
Pending Consideration House extension
Received
Not recorded
New homes
0

Full proposal

Erection of a part single storey, part two storey side and rear extension. Changes to fenestration.

Have your say

Your comment matters. Councils must consider every representation that raises material planning considerations.

Write a comment