← Woking Borough Council

Status

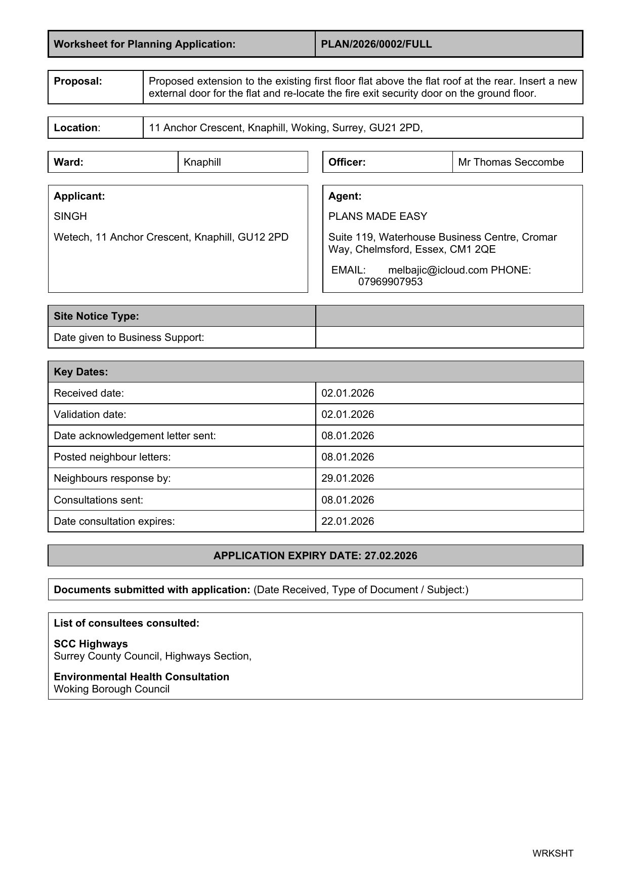
Pending Consideration House extension
Received
Not recorded
New homes
0

Full proposal

Proposed extension to the existing first floor flat above the flat roof at the rear. Insert a new external door for the flat, re-locate the fire exit security door on the ground floor, amended ground floor layout to provide a WC to the shop (amended drawing received 20.02.2026).

Documents

Application Form
Archived · Original link
Application Form
Archived · Original link
Plans
Archived · Original link
Consultee Comment
Archived · Original link
Consultee Comment
Archived · Original link
Plans
Archived · Original link
Neighbour Notification List
Archived · Original link
Plans
Archived · Original link
Photo
Archived · Original link
Consultee Comment
Archived · Original link

Have your say

Your comment matters. Councils must consider every representation that raises material planning considerations.

Write a comment