← Woking Borough Council

Status

Pending Consideration New housing
Received
Not recorded
New homes
7

Full proposal

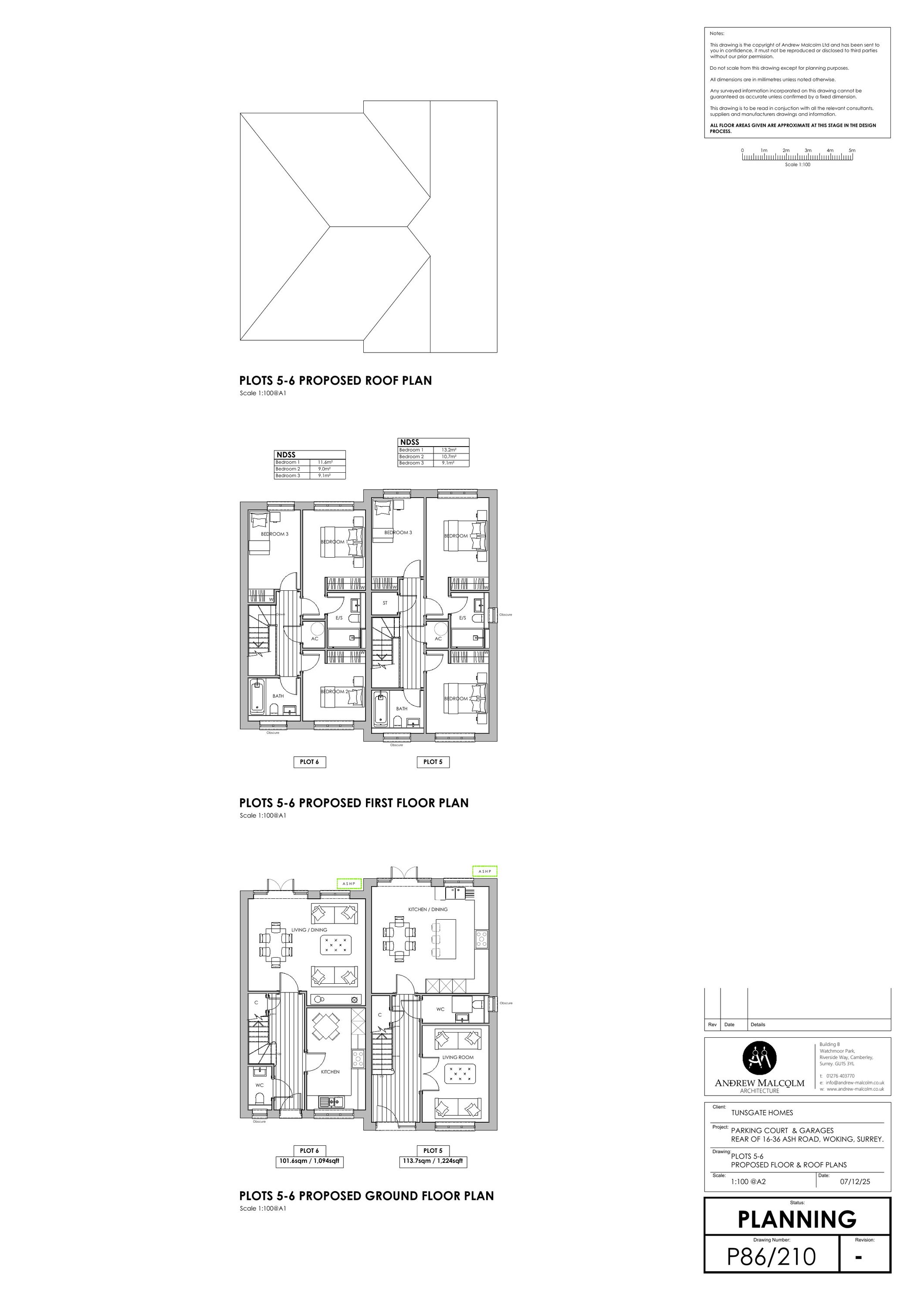
Subdivision of the plot and erection of 7No 2 storey dwellings (4 x terraced, 2 x semi detached and 1 x detached) with associated parking and landscaping, following the demolition of 36 Garages and associated hardstanding.

Documents

APPLICATIONFORMREDACTED
Application Form
Not yet archived · Original link
ARBORICULTURAL
Report
Not yet archived · Original link
DESIGN AND ACCESS STATEMENT
Report
Not yet archived · Original link
NEIGH. NOTIF. - STANDARD - LIST
Neighbour Notification List
Not yet archived · Original link
P86-100 - LOCATION PLAN
Plans
Not yet archived · Original link
P86-102 - EXISTING BLOCK PLAN
Plans
Not yet archived · Original link
P86-103 - PROPOSED BLOCK PLAN
Plans
Not yet archived · Original link
P86-104 - PROPOSED SITE LAYOUT
Plans
Not yet archived · Original link
P86-120 - PLOTS 1-4 PROPOSED ELEVATIONS
Plans
Not yet archived · Original link
P86-220 - PLOTS 5-6 PROPOSED ELEVATIONS
Plans
Not yet archived · Original link
P86-320 - PLOT 7 PROPOSED ELEVATIONS
Plans
Not yet archived · Original link
P86-400 - EXISTING & PROPOSED SITE SECTIONS
Plans
Not yet archived · Original link
P86-500 - EXISTING PLANS AND ELEVATIONS
Plans
Not yet archived · Original link
WORKSHEET FOR PLANNING APPLICATION
Correspondence
Not yet archived · Original link

Have your say

Your comment matters. Councils must consider every representation that raises material planning considerations.

Write a comment