← Woking Borough Council

Status

Pending Consideration House extension
Received
Not recorded
New homes
0

Full proposal

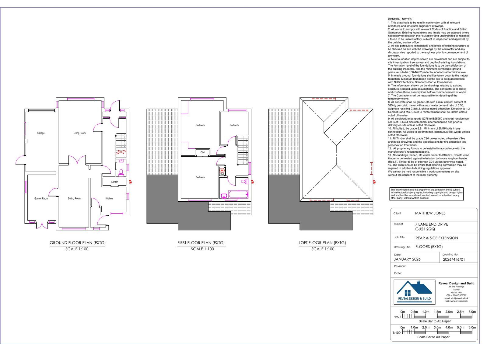
Erection of a two-storey side, single storey rear extension following the demolition of an existing garage.

Have your say

Your comment matters. Councils must consider every representation that raises material planning considerations.

Write a comment