← Woking Borough Council

Status

Awaiting decision House extension
Received
Not recorded
New homes
0

Full proposal

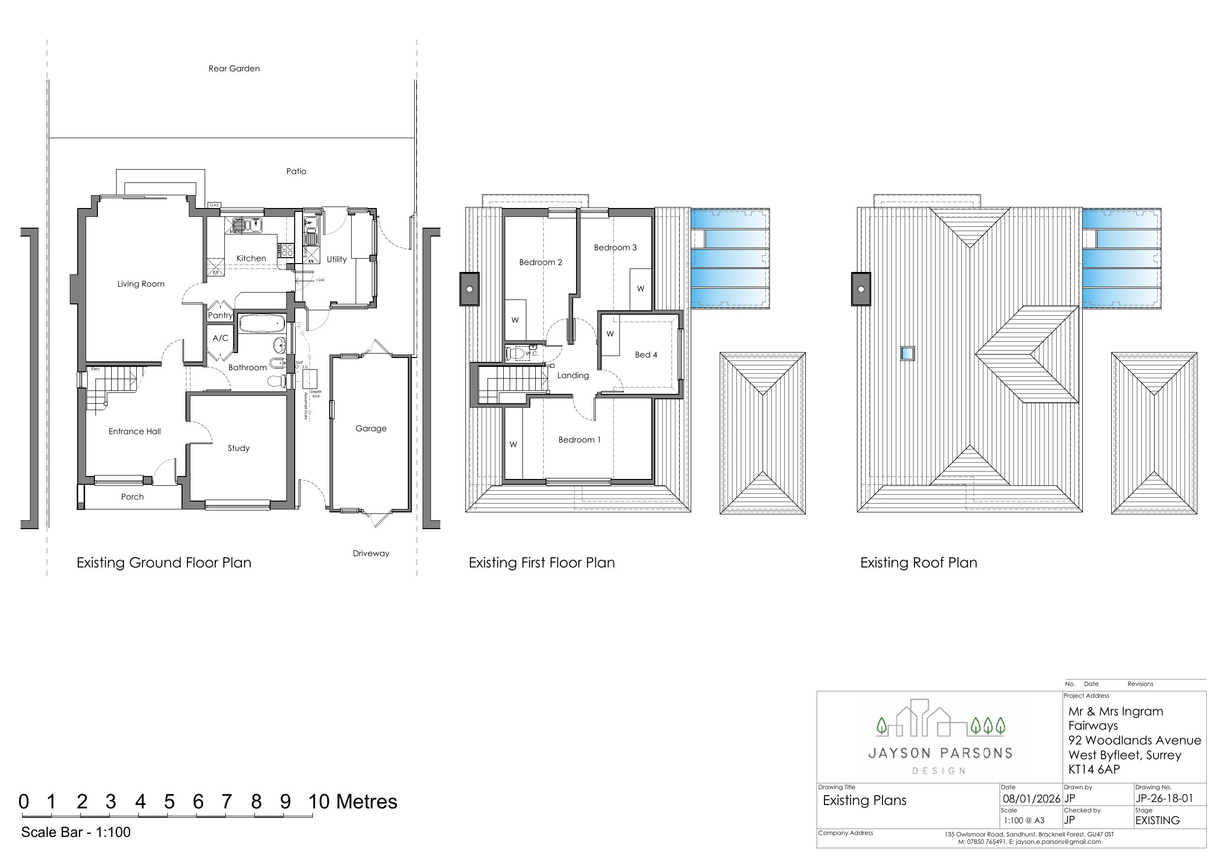
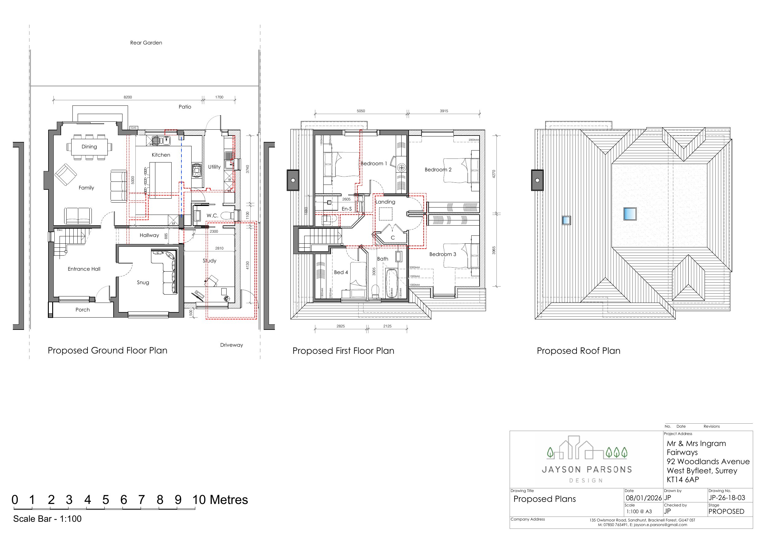
Erection of a two storey side extension following removal of existing single storey side extension and garage.

Have your say

Your comment matters. Councils must consider every representation that raises material planning considerations.

Write a comment