← Woking Borough Council

Status

Awaiting decision House extension
Received
Not recorded
New homes
0

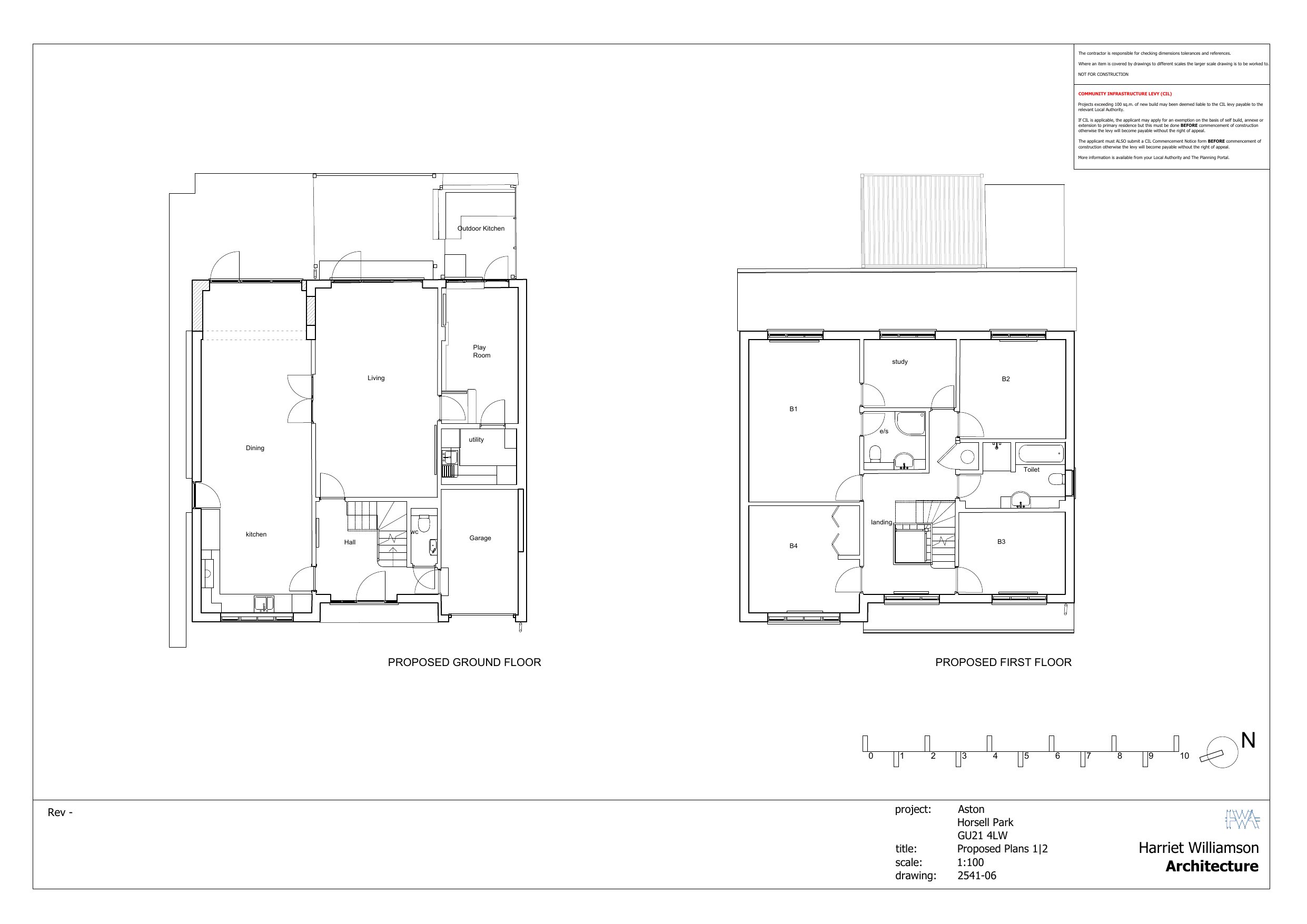
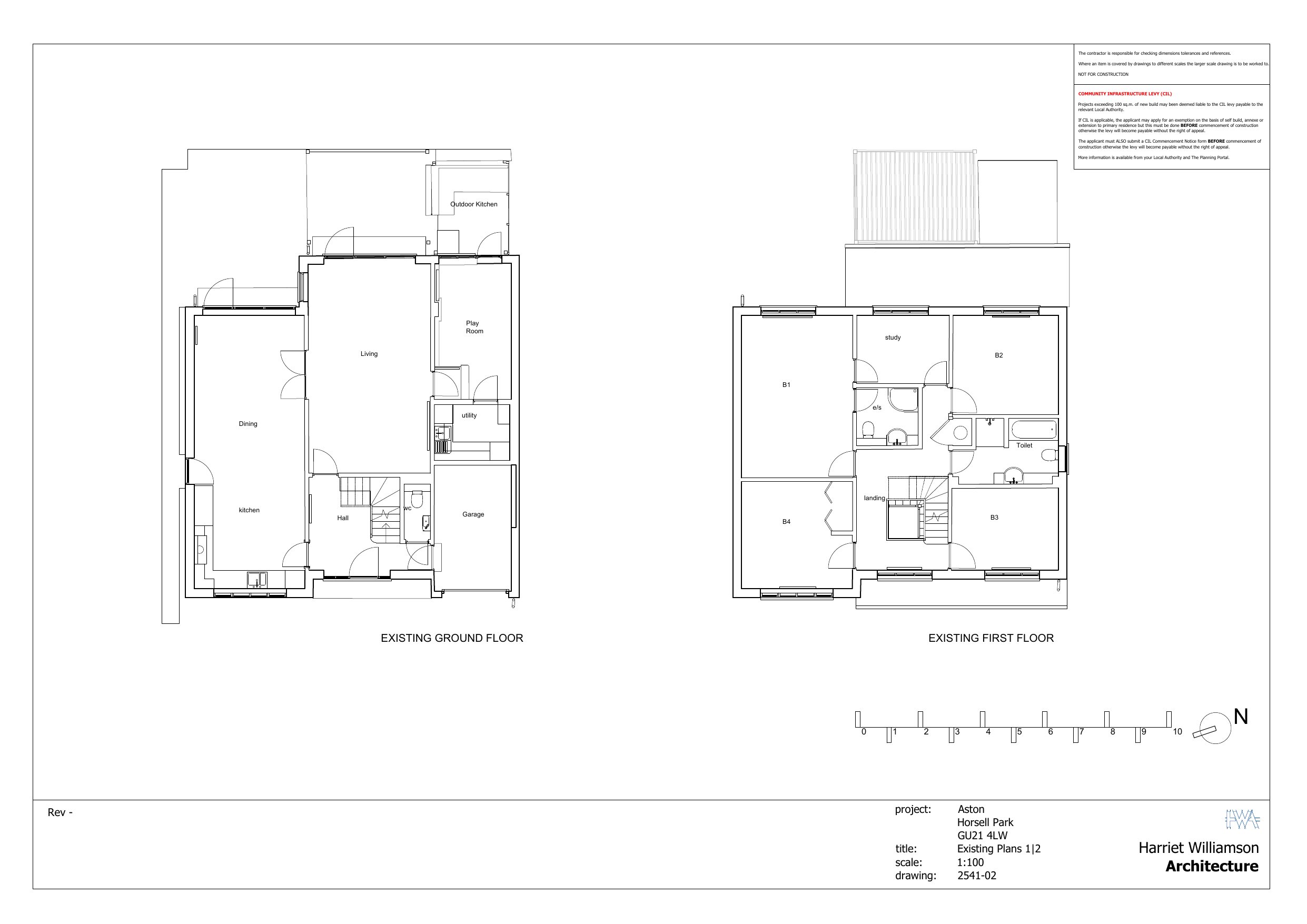
Full proposal

Erection of a single storey rear infill extension.

Have your say

Your comment matters. Councils must consider every representation that raises material planning considerations.

Write a comment