← Woking Borough Council

Status

Pending Consideration House extension
Received
Not recorded
New homes
0

Full proposal

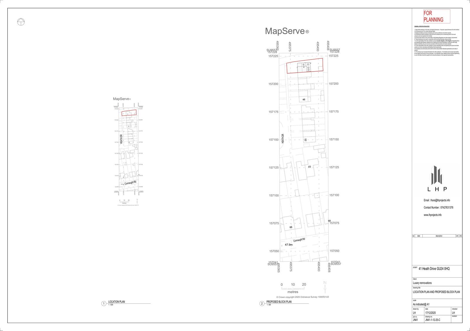
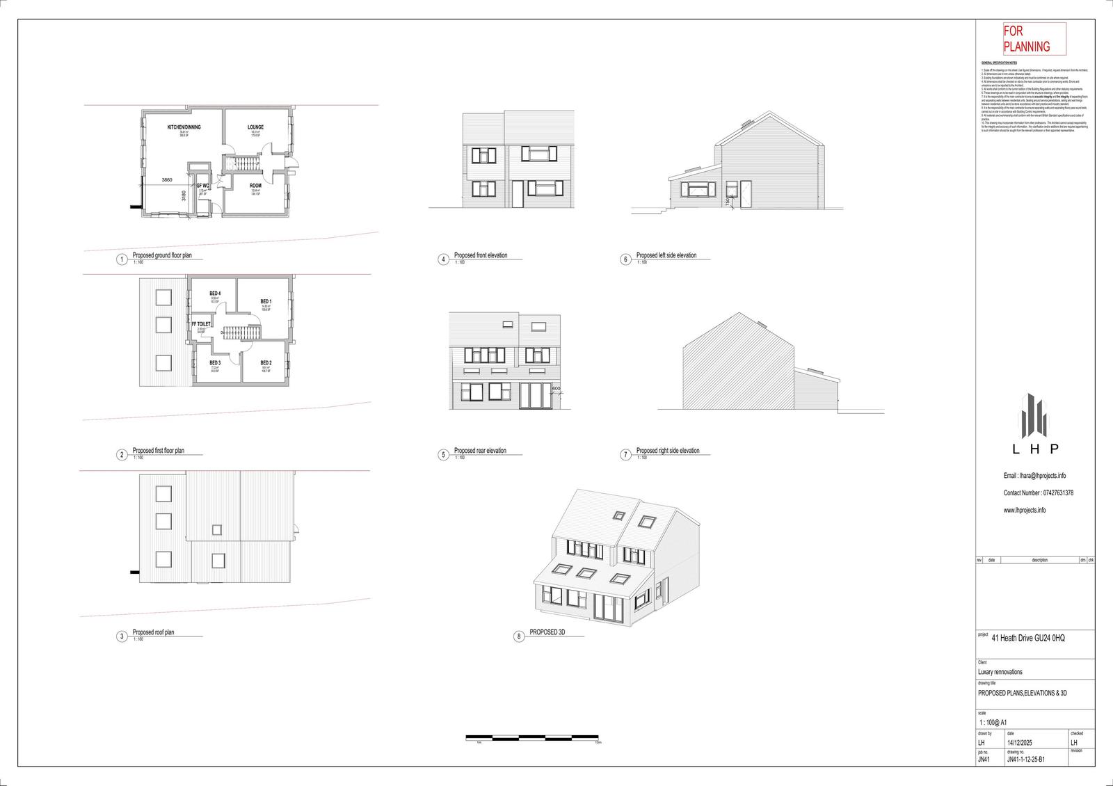
Erection of a proposed side and rear infill extension and existing fenestration alterations.

Documents

Application Form
Archived · Original link
Plans
Archived · Original link
Neighbour Notification List
Archived · Original link
Plans
Archived · Original link

Have your say

Your comment matters. Councils must consider every representation that raises material planning considerations.

Write a comment