← Woking Borough Council

Status

Pending Consideration House extension
Received
Not recorded
New homes
0

Full proposal

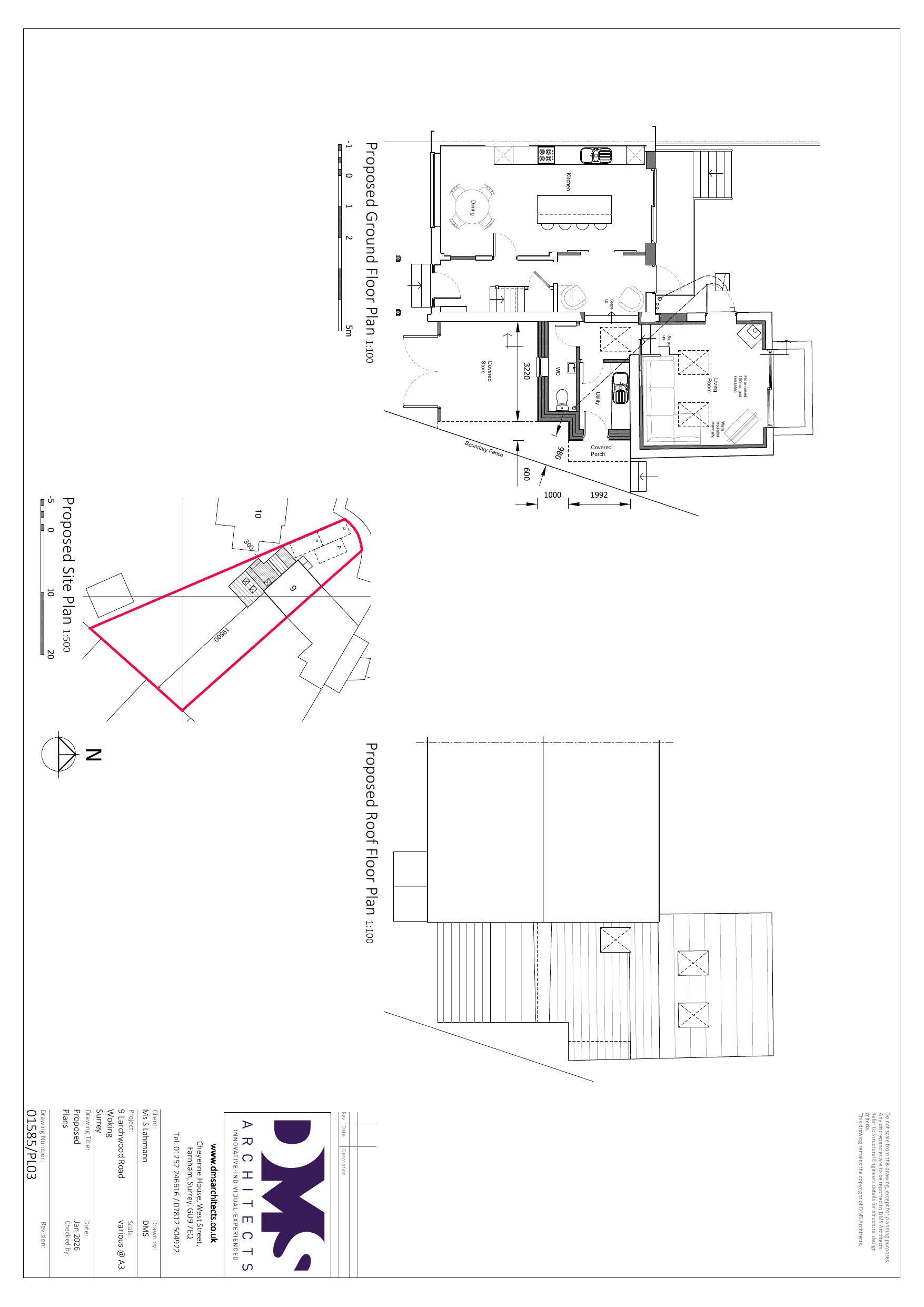
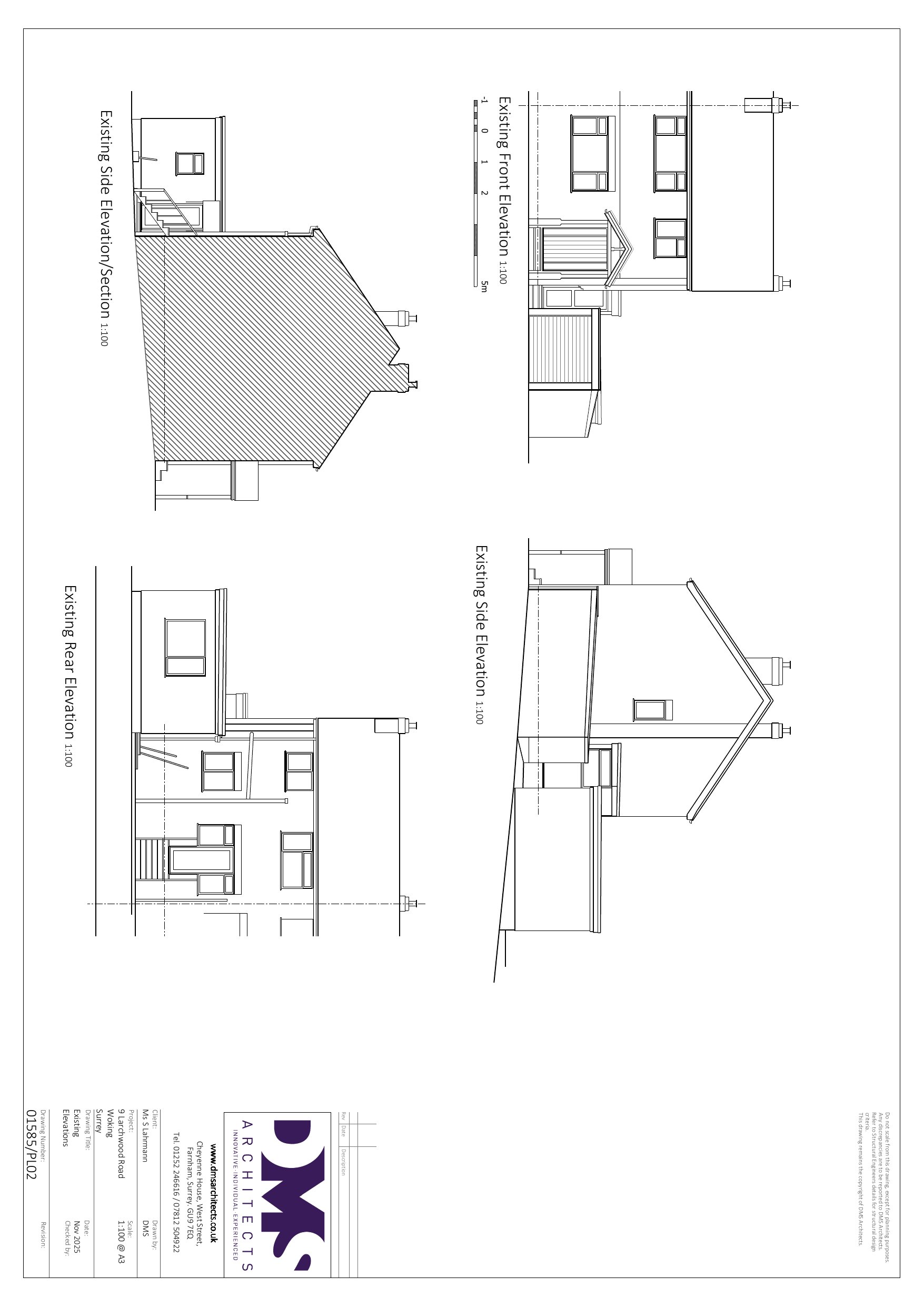
Erection of a single storey side extension with the addition of a pitched roof to existing single storey rear extension following demolition of detached garage and side addition. Formation of a raised terrace and balustrading and changes to existing ground floor rear fenestration (Amended Description).

Have your say

Your comment matters. Councils must consider every representation that raises material planning considerations.

Write a comment