← Woking Borough Council

Status

Pending Consideration House extension
Received
Not recorded
New homes
0

Full proposal

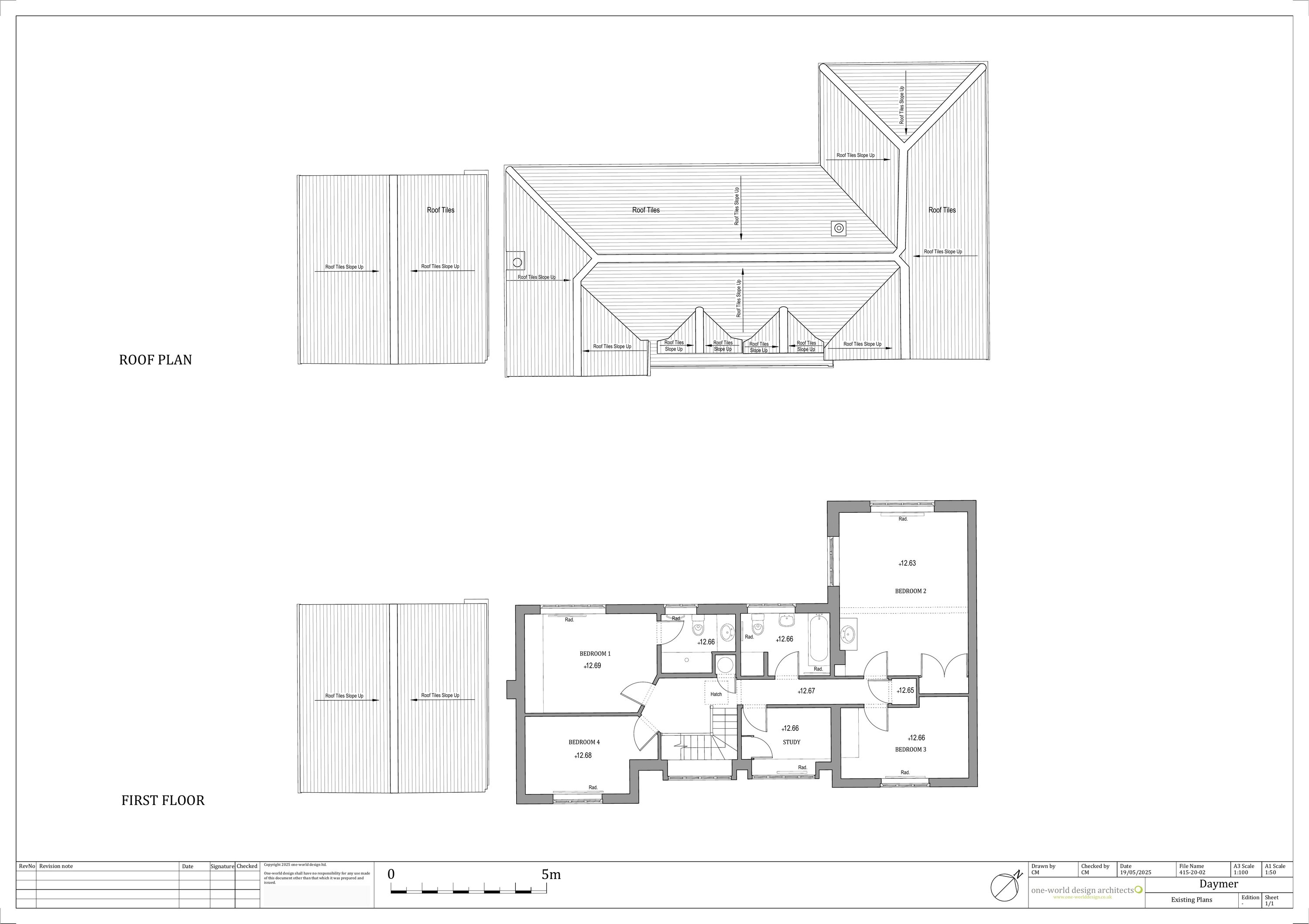
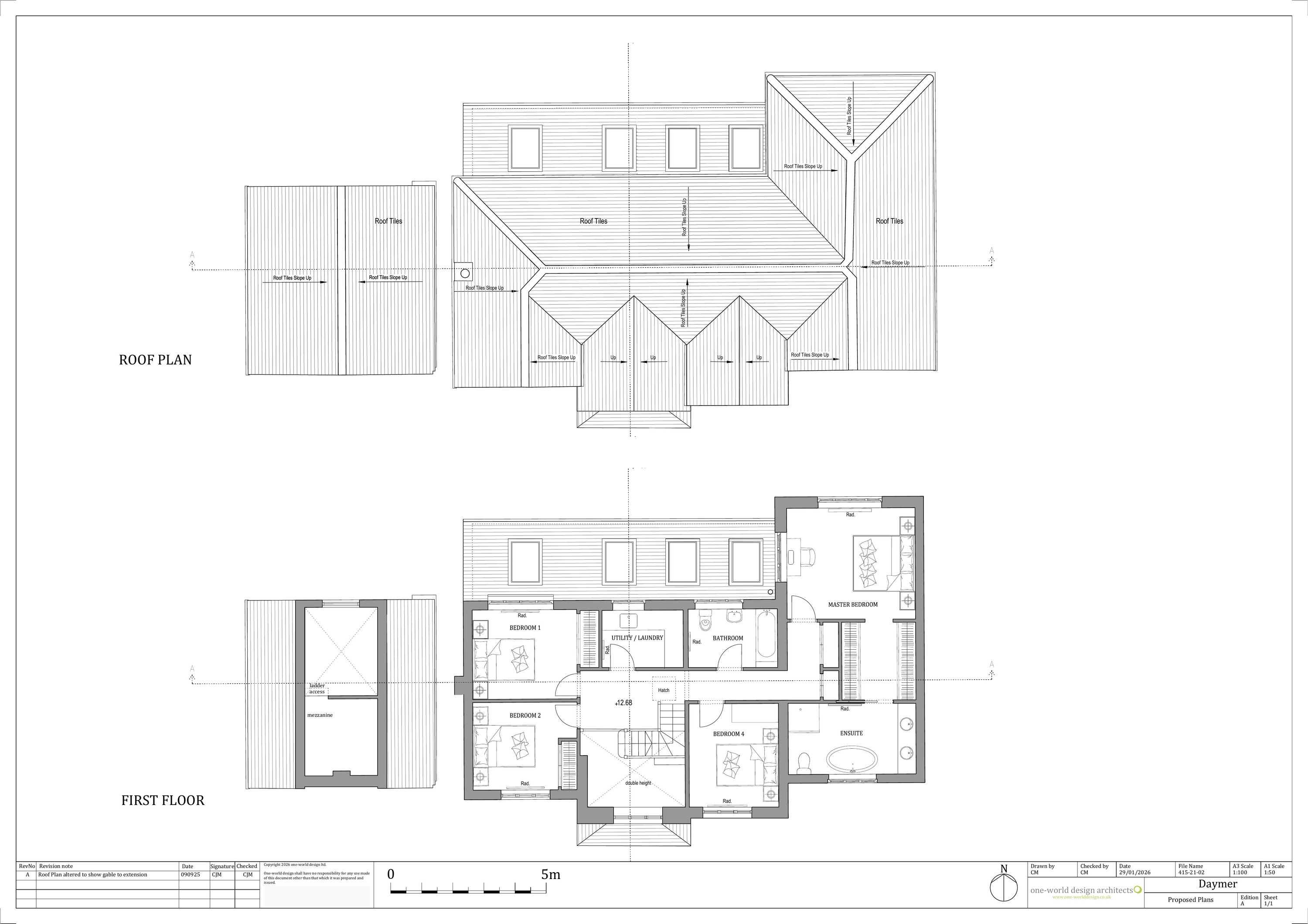
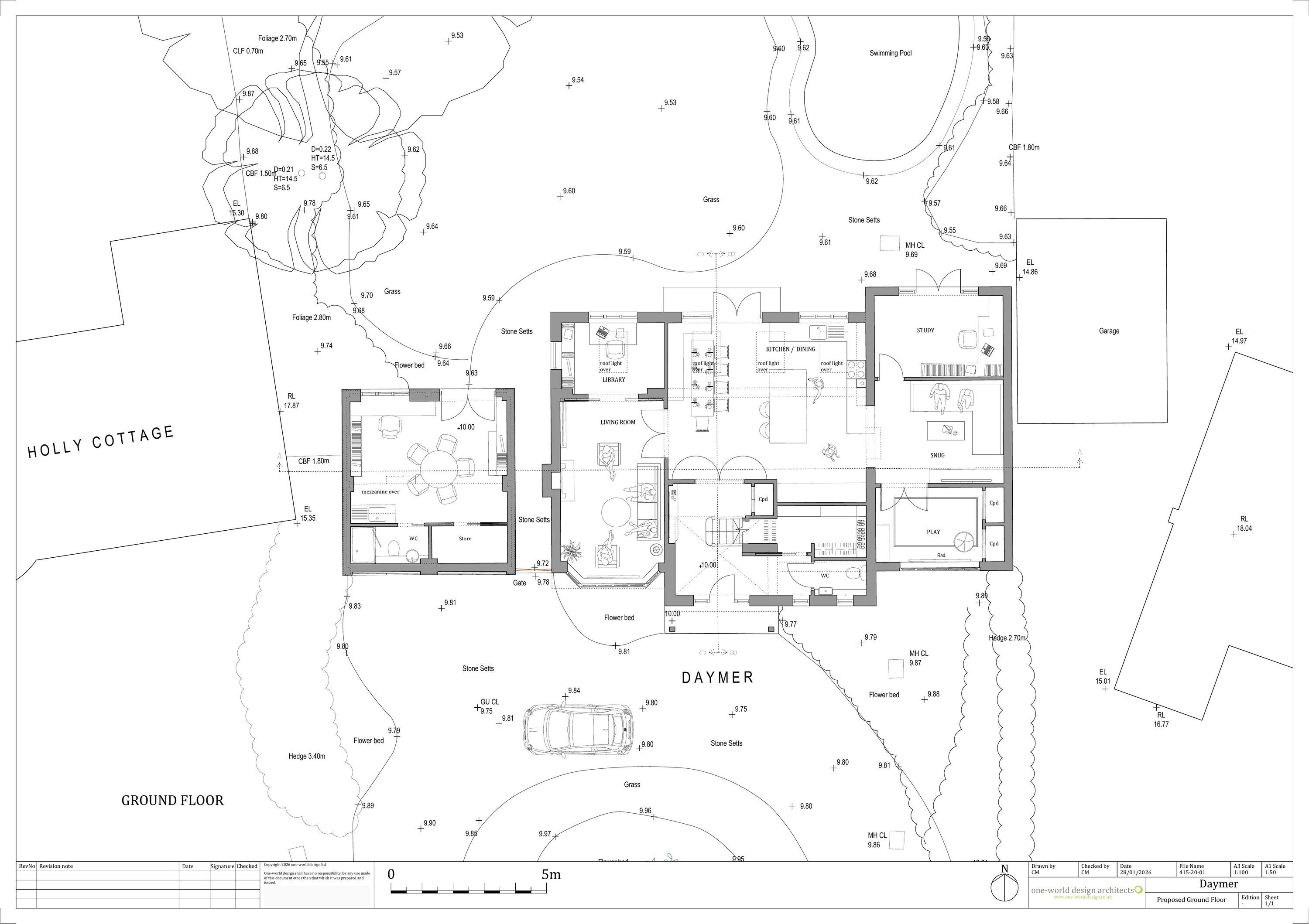
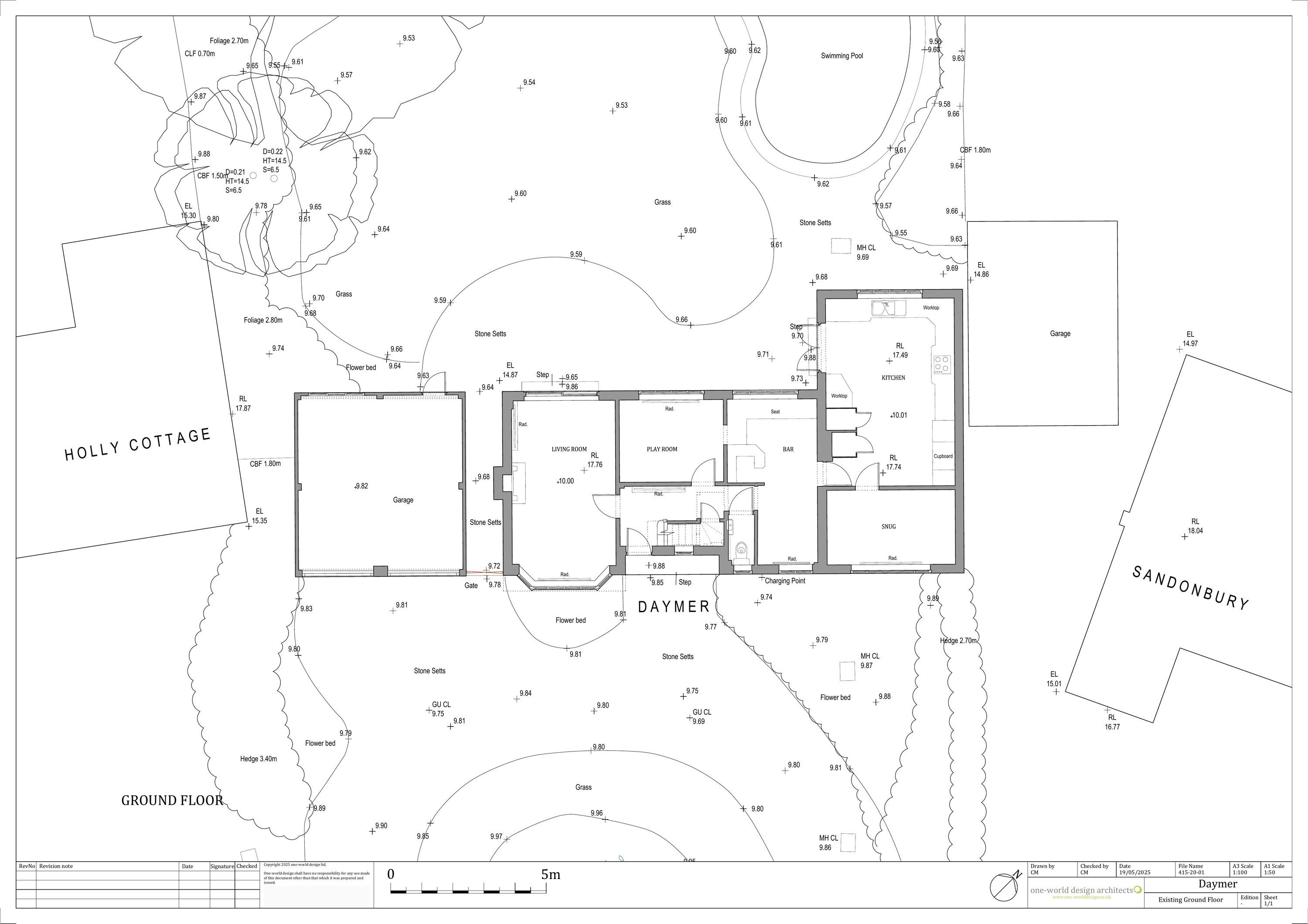
Proposed erection of a two storey front extension with a front porch canopy, erection of a single storey rear extension, conversion of garage into habitable accommodation, changes to fenestration and alterations to existing external materials.

Have your say

Your comment matters. Councils must consider every representation that raises material planning considerations.

Write a comment