← Woking Borough Council

Status

Pending Consideration House extension
Received
Not recorded
New homes
0

Full proposal

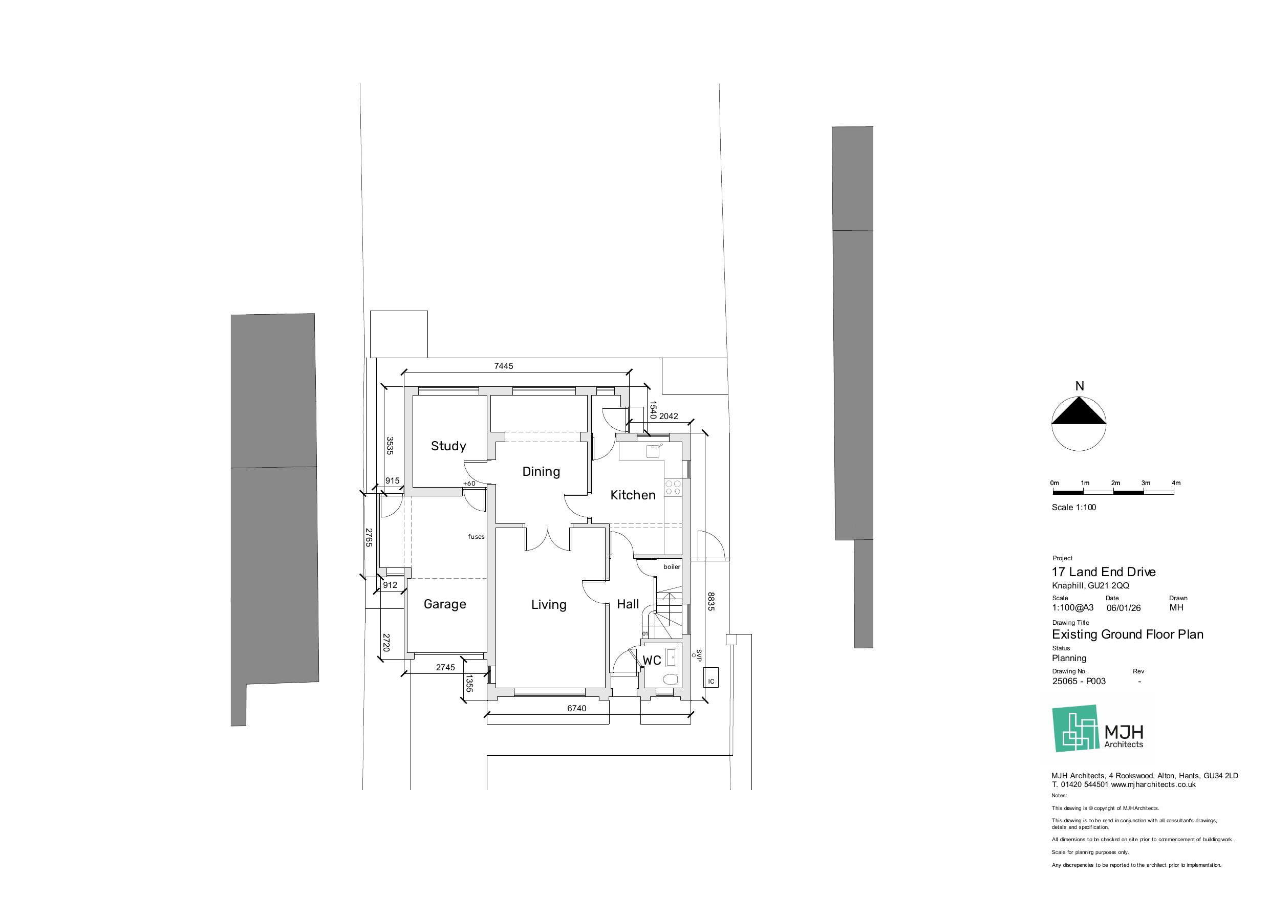
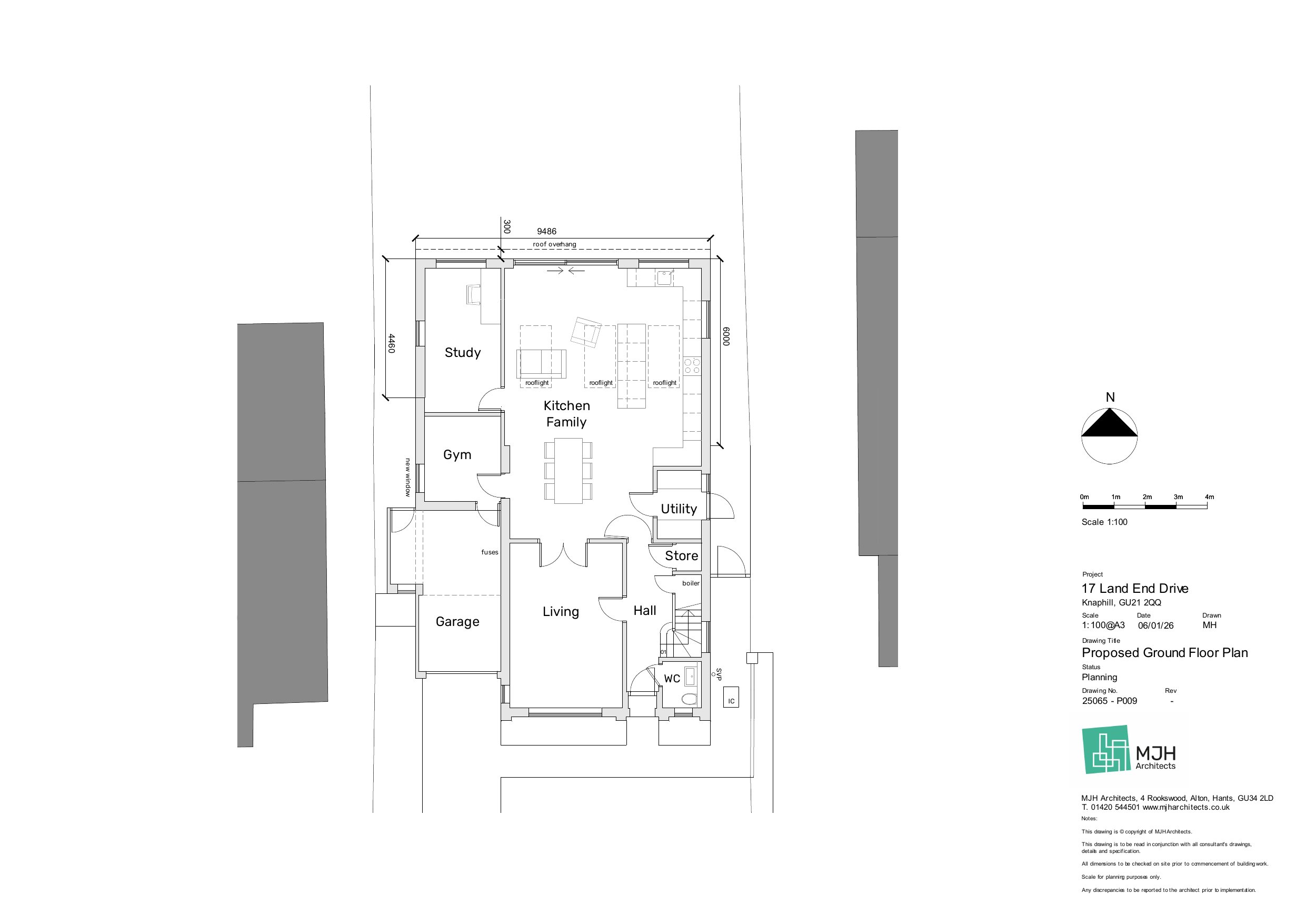
Erection of a first floor side and single storey rear extension. Fenestration alterations.

Have your say

Your comment matters. Councils must consider every representation that raises material planning considerations.

Write a comment