← Woking Borough Council

Status

Pending Consideration House extension
Received
Not recorded
New homes
0

Full proposal

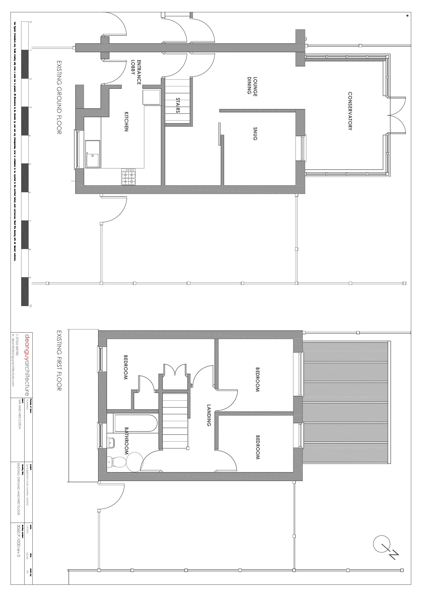
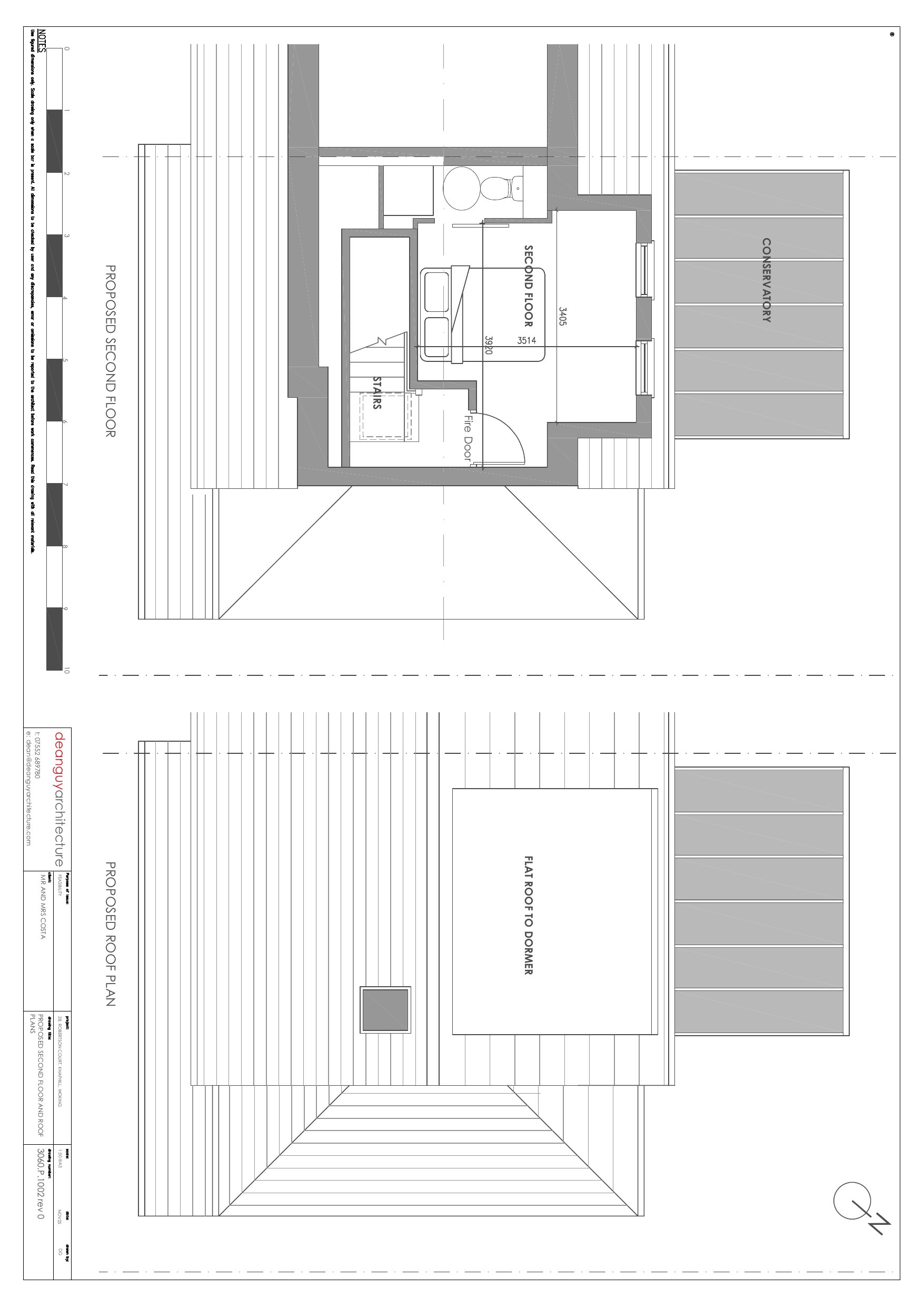
Erection of a two-storey side extension and alterations and extensions to the roof comprising hip-to-gable roof enlargement, rear roof dormer and insertion of 1no rooflight to front roof plane. Alterations to first floor rear fenestration.

Have your say

Your comment matters. Councils must consider every representation that raises material planning considerations.

Write a comment