← Woking Borough Council

Status

Pending Consideration House extension
Received
Not recorded
New homes
0

Full proposal

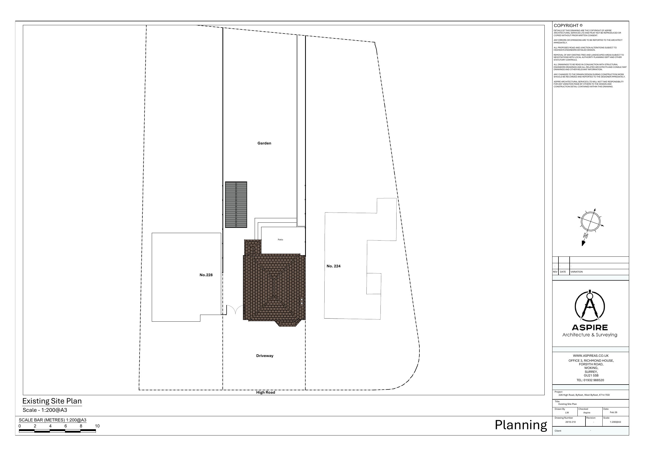
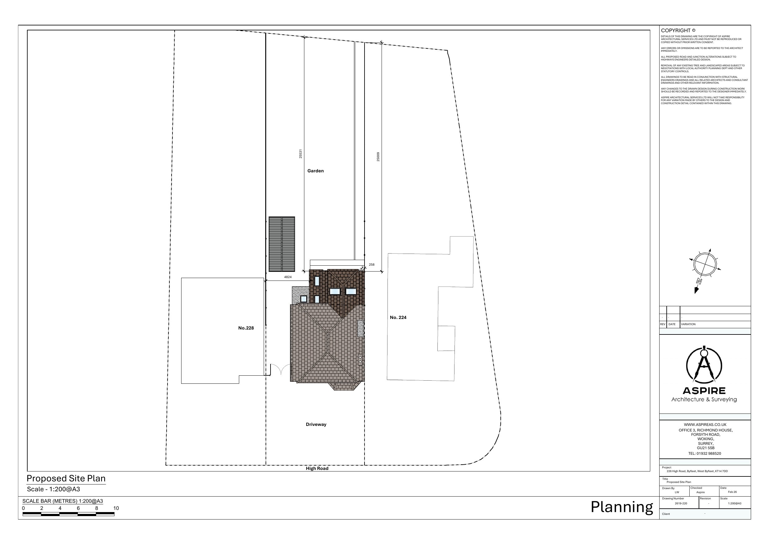
Erection of a part two storey, part single storey rear extension and formation of flat roof side dormer window.

Documents

2619-201_EXISTING FLOOR PLANS
Plans
Not yet archived · Original link
2619-205_EXISTING ELEVATIONS
Plans
Not yet archived · Original link
2619-206_EXISTING SECTION A-A
Plans
Not yet archived · Original link
2619-212_EXISTING AND PROPOSED ROOF PLANS
Plans
Not yet archived · Original link
2619-215_PROPOSED ELEVATIONS
Plans
Not yet archived · Original link
2619-216_PROPOSED SECTION A-A
Plans
Not yet archived · Original link
2619-221_PROPOSED FLOOD COMPENSATION PLAN
Plans
Not yet archived · Original link
APPLICATIONFORMREDACTED
Application Form
Not yet archived · Original link
COVERING STATEMENT
Report
Not yet archived · Original link
FLOOD RISK ASSESSMENT
Report
Not yet archived · Original link
NEIGH. NOTIF. - STANDARD - LIST
Neighbour Notification List
Not yet archived · Original link
WORKSHEET FOR PLANNING APPLICATION
Correspondence
Not yet archived · Original link

Have your say

Your comment matters. Councils must consider every representation that raises material planning considerations.

Write a comment