← Woking Borough Council

Status

Pending Consideration House extension
Received
Not recorded
New homes
0

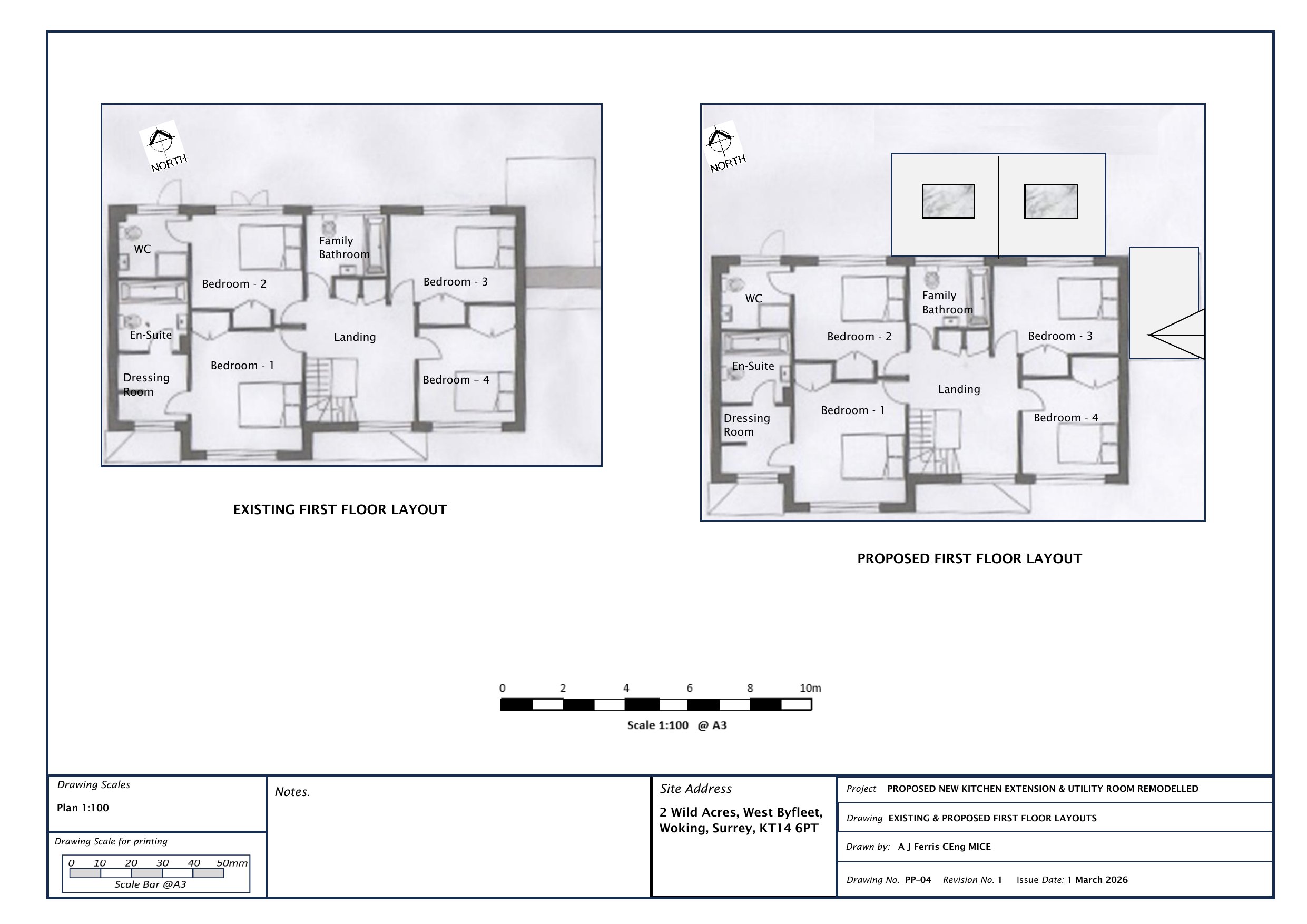
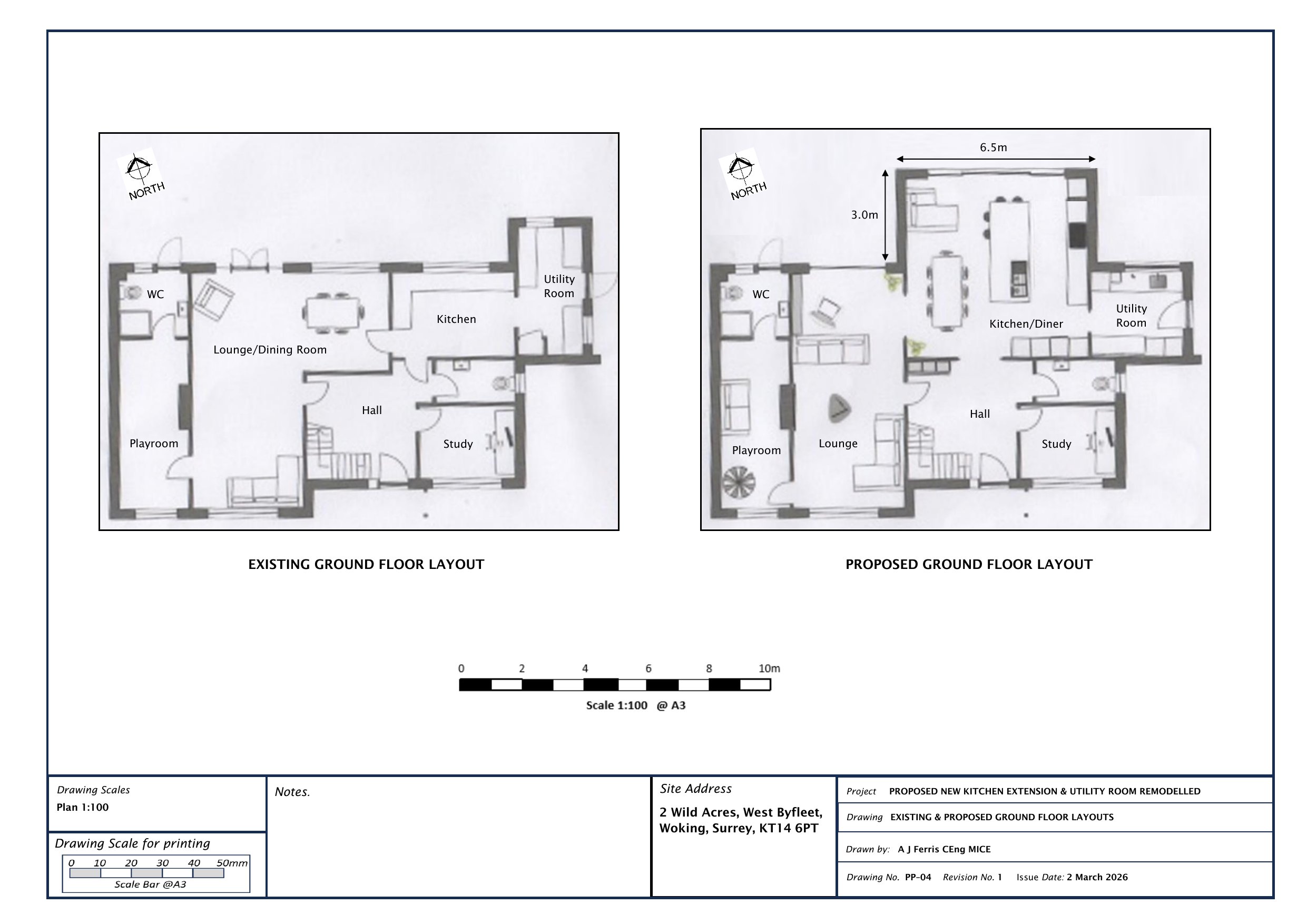
Full proposal

Erection of a single storey rear extension, alterations to existing side extention.

Have your say

Your comment matters. Councils must consider every representation that raises material planning considerations.

Write a comment