← Woking Borough Council

Status

Pending Consideration House extension
Received
Not recorded
New homes
0

Full proposal

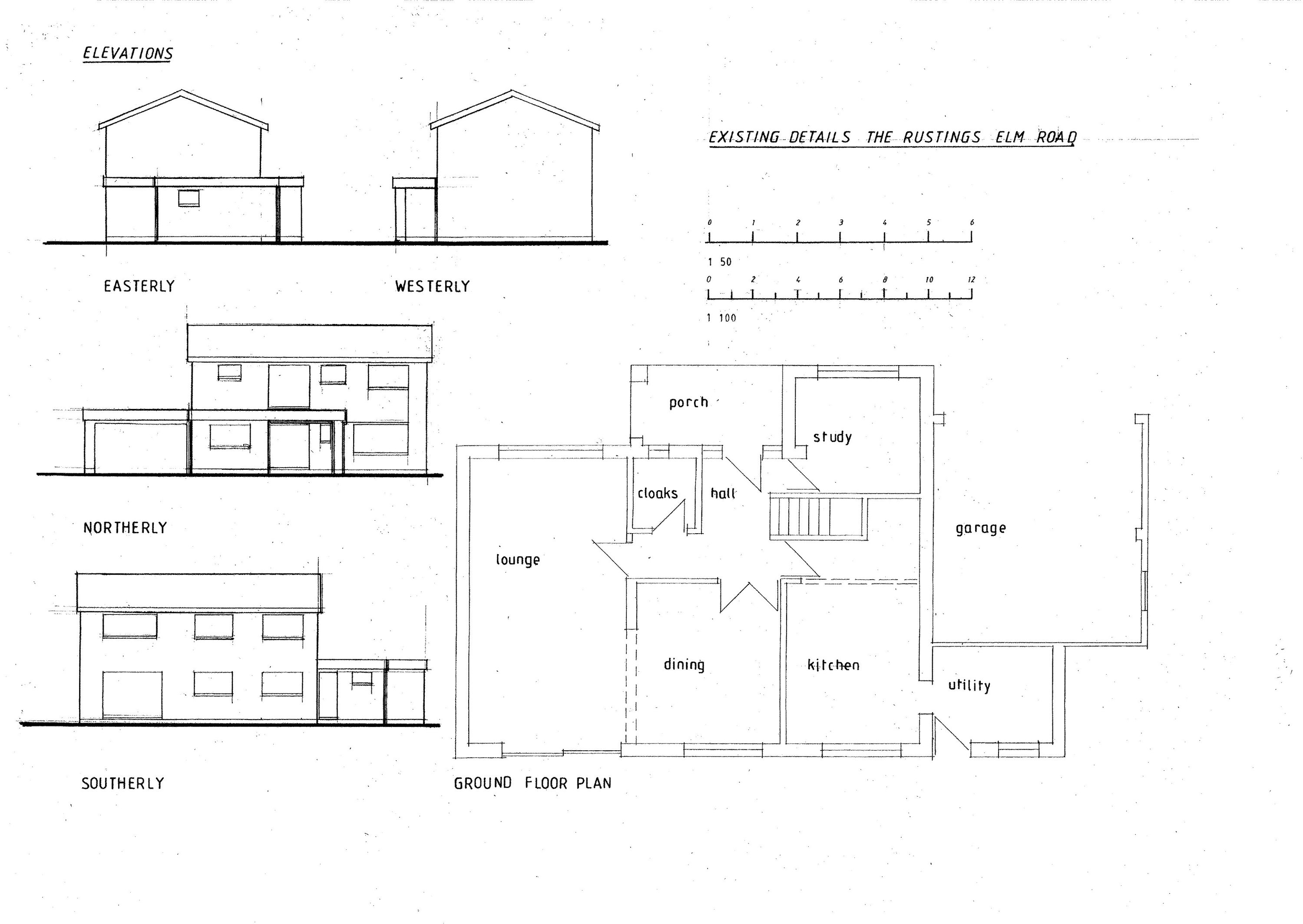
Erection of a single storey rear extension.

Documents

Plans
Archived · Original link
Neighbour Notification List
Archived · Original link
Application Form
Archived · Original link
Plans
Archived · Original link

Have your say

Your comment matters. Councils must consider every representation that raises material planning considerations.

Write a comment