← Woking Borough Council

Status

Pending Consideration House extension
Received
Not recorded
New homes
0

Full proposal

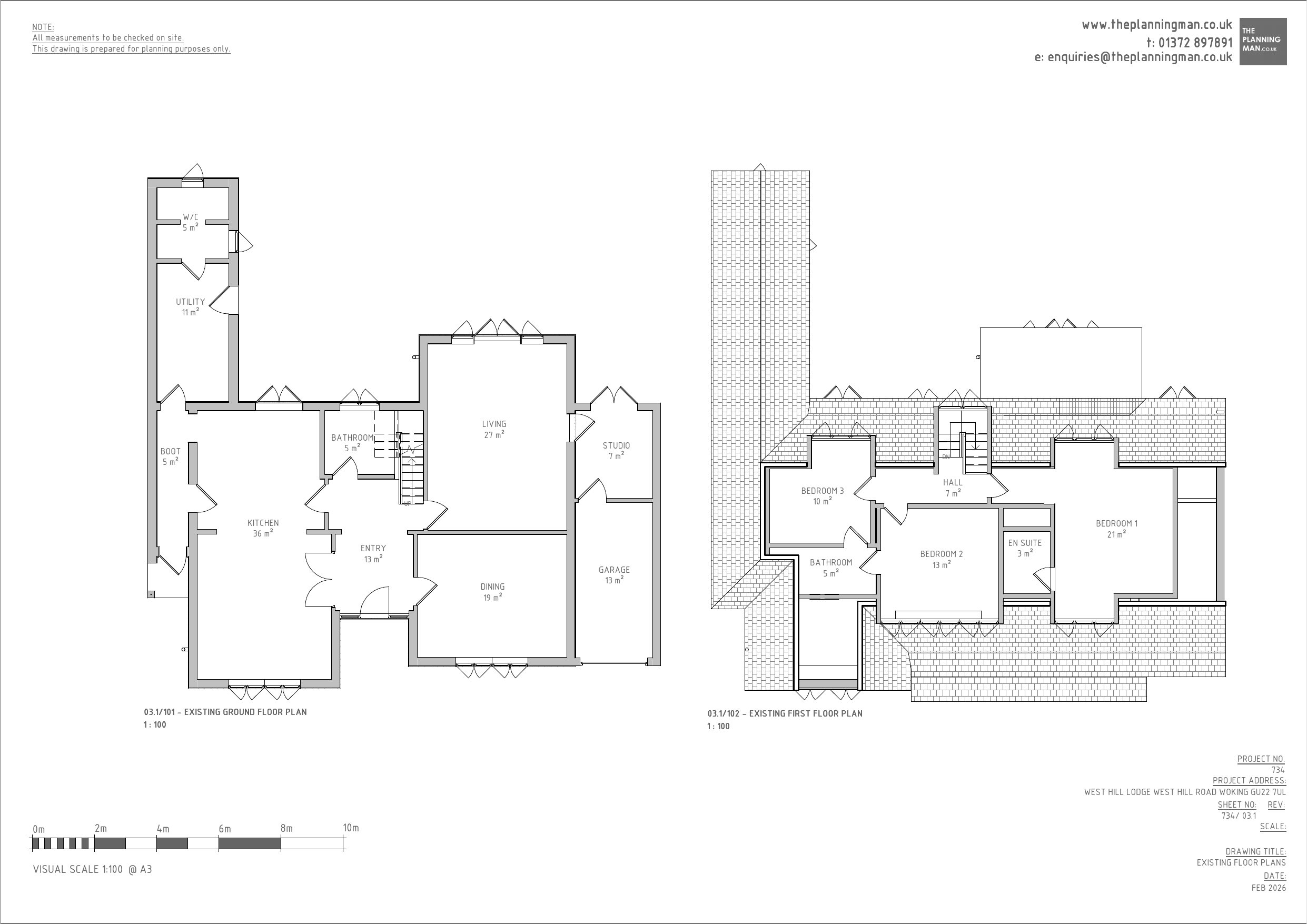
Erection of a hip to gable roof extension with rear dormer and front rooflight (This is an additional application following the approval of previous applications PLAN/2024/0158 & PLAN/2025/0333).

Documents

Application Form
Archived · Original link
Plans
Archived · Original link
Plans
Archived · Original link
Neighbour Notification List
Archived · Original link
Plans
Archived · Original link
Background Papers
Archived · Original link
Consultee Comment
Archived · Original link
Plans
Archived · Original link

Have your say

Your comment matters. Councils must consider every representation that raises material planning considerations.

Write a comment