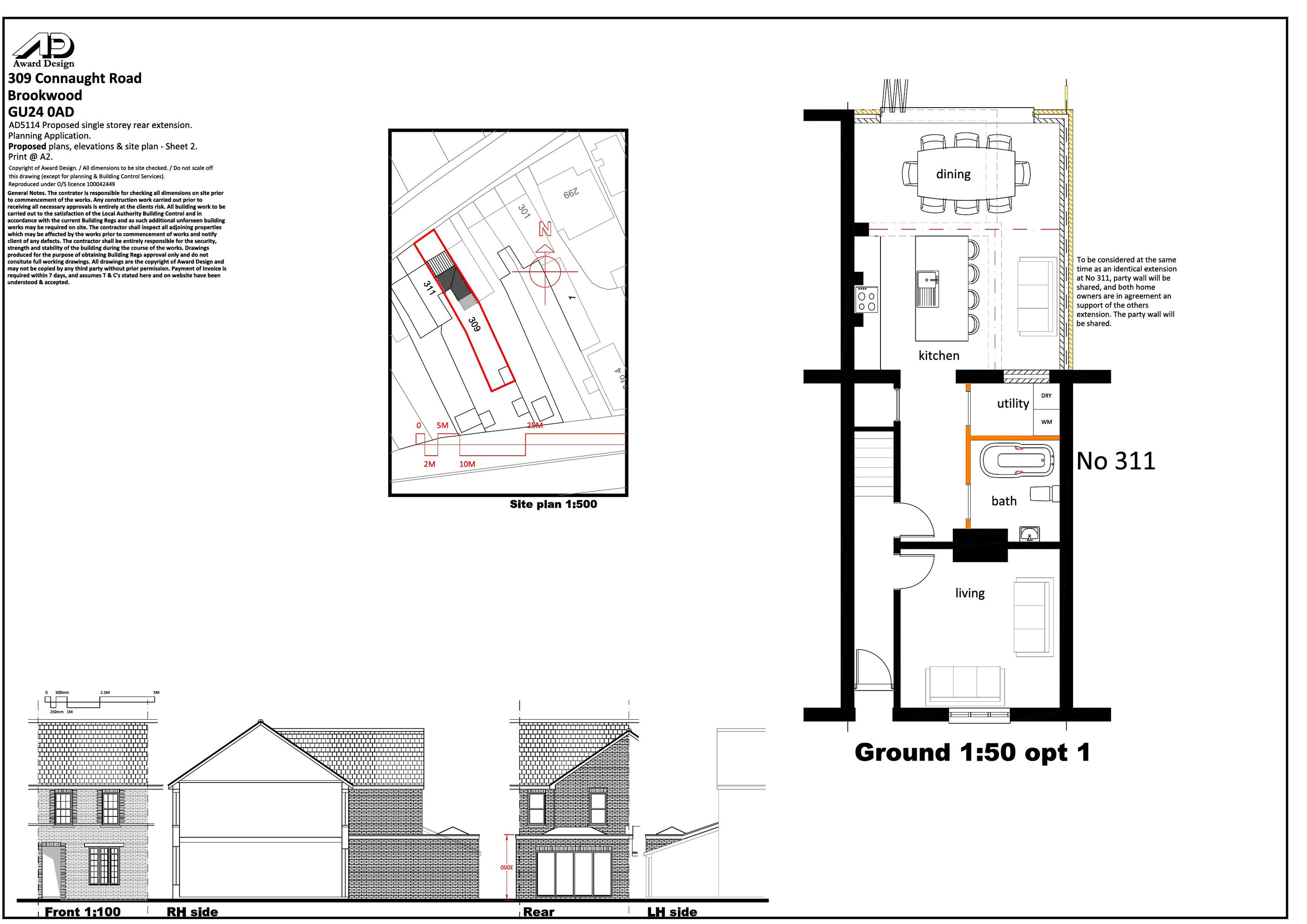
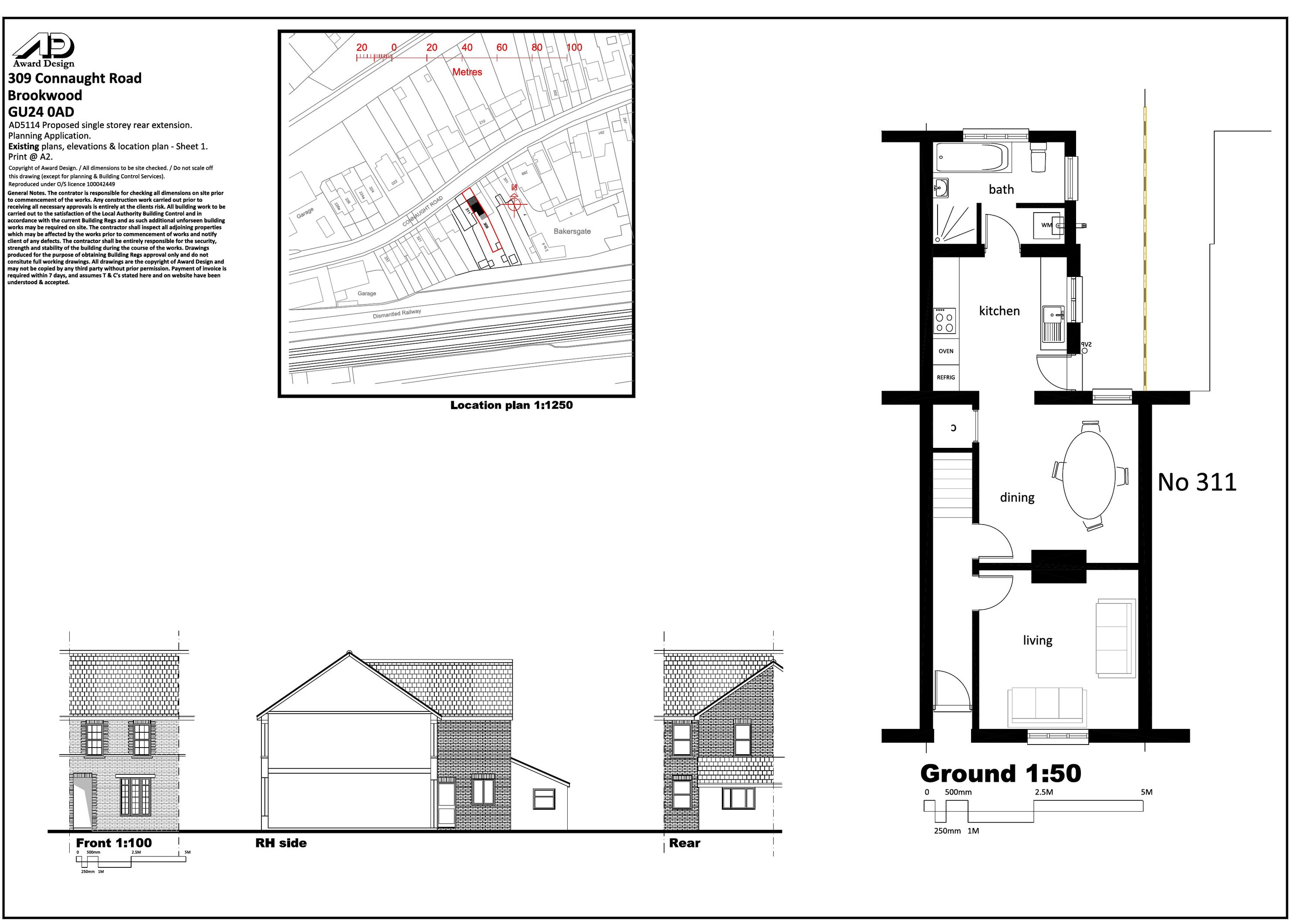
PLAN/2026/0188
Woking Borough Council
Status
Pending Consideration
House extension
Received
Not recorded
New homes
0
Full proposal
Erection of a single storey side and rear extension.
Documents
Have your say
Your comment matters. Councils must consider every representation that raises material planning considerations.