← Wrexham County Borough Council

Status

Pending Agricultural
Received
Not recorded
New homes
0

Full proposal

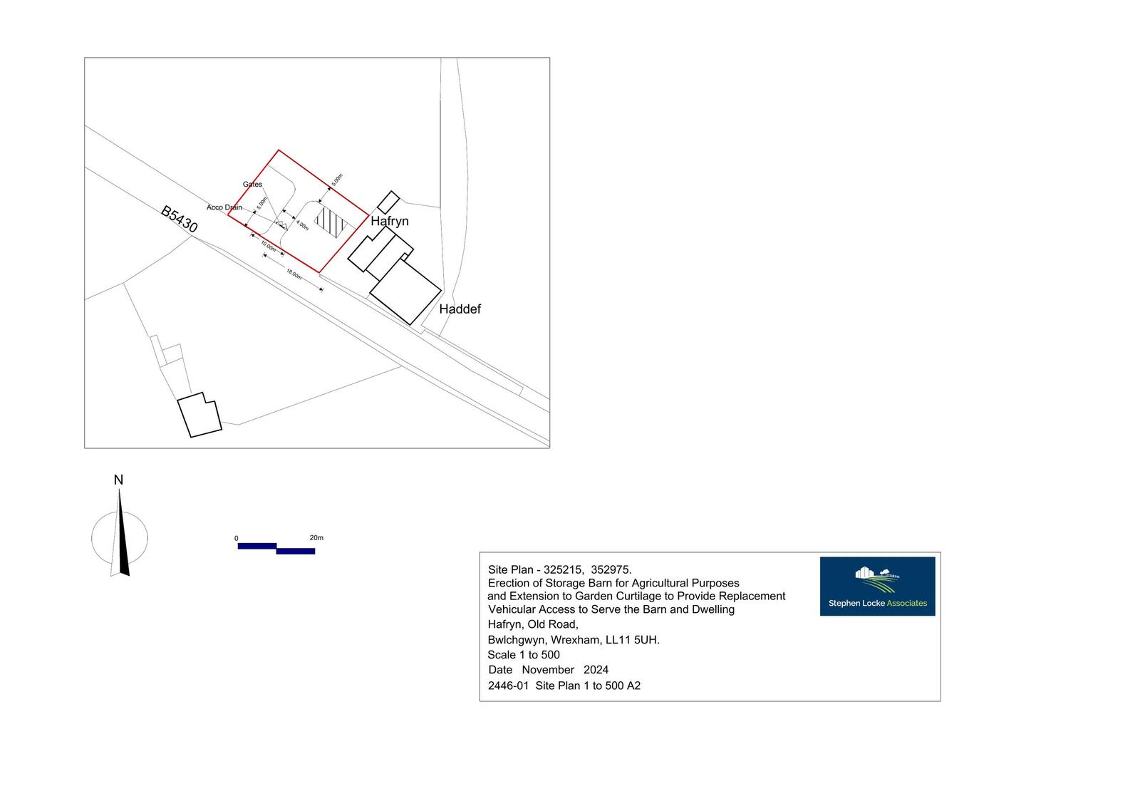
Reference P/2025/0044 Application type Caniatâd Cynllunio Llawn / Full planning permission Site address HAFRYN, OLD ROAD, BWLCHGWYN, WREXHAM, LL11 5UH Description ERECTION OF BARN FOR AGRICULTURAL PURPOSES (STORAGE) AND CHANGE OF USE OF LAND TO RESIDENTIAL CURTILAGE TO PROVIDE REPLACEMENT VEHICULAR ACCESS TO SERVE THE BARN AND DWELLING Status Penderfyniad wedi’i wneud / Decision Made Decision Granted

Documents

Uncategorised
Archived · Original link
Uncategorised
Archived · Original link
Uncategorised
Archived · Original link
Uncategorised
Archived · Original link
Uncategorised
Archived · Original link
Uncategorised
Archived · Original link
Uncategorised
Archived · Original link
Uncategorised
Archived · Original link
Uncategorised
Archived · Original link
Uncategorised
Archived · Original link
Uncategorised
Archived · Original link
Uncategorised
Archived · Original link
Uncategorised
Archived · Original link
Uncategorised
Archived · Original link
Uncategorised
Archived · Original link
Uncategorised
Archived · Original link
Uncategorised
Archived · Original link
Uncategorised
Archived · Original link

Have your say

Your comment matters. Councils must consider every representation that raises material planning considerations.

Write a comment