← Wrexham County Borough Council

Status

Pending House extension
Received
Not recorded
New homes
0

Full proposal

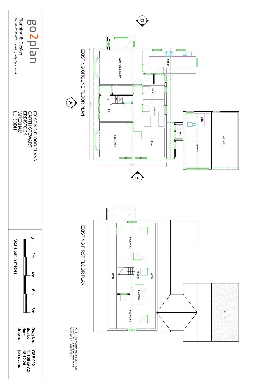
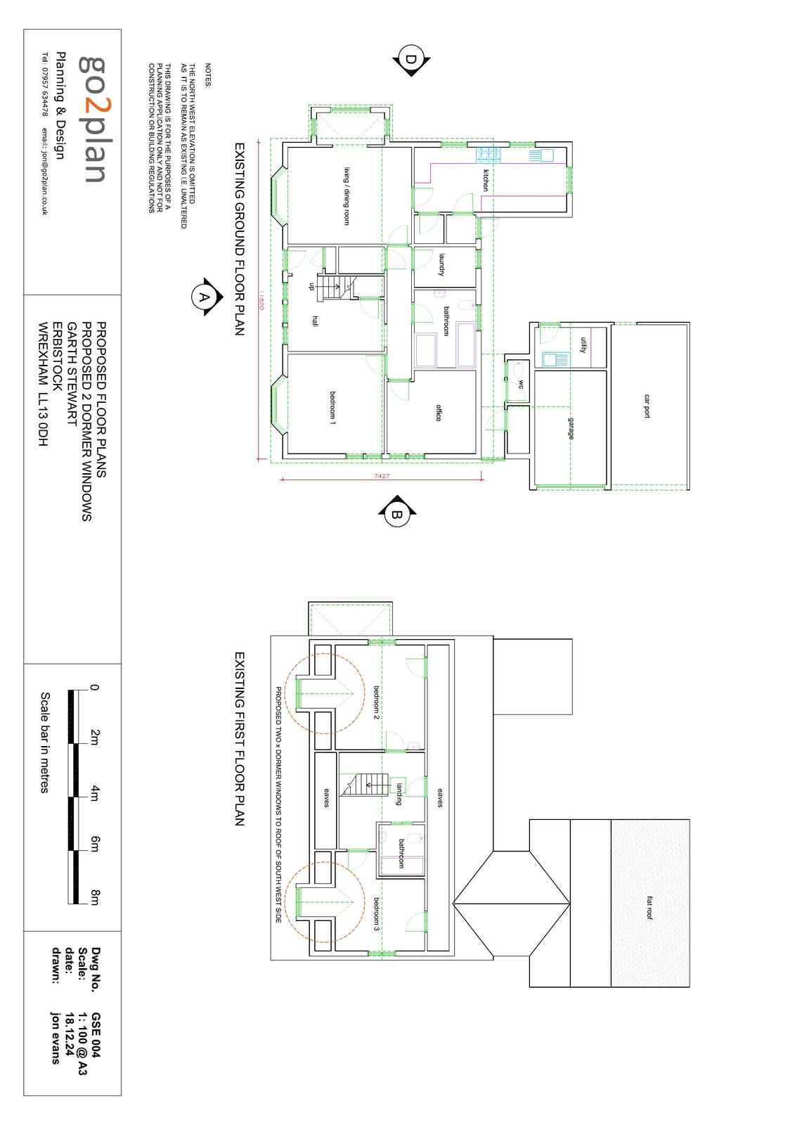
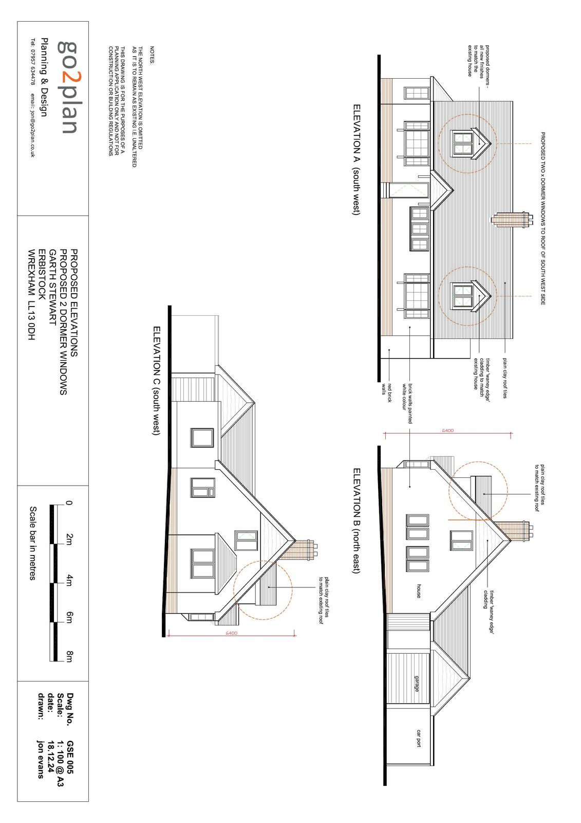
Reference P/2025/0051 Application type Caniatâd cynllunio perchennog tŷ / Householder planning permission Site address GARTH STEWART, ERBISTOCK, WREXHAM, LL13 0DH Description INSTALLATION OF 2 NO DORMER WINDOWS AND CONVERSION OF LOFT TO TWO BEDROOMS Status Penderfyniad wedi’i wneud / Decision Made Decision Granted

Documents

Uncategorised
Archived · Original link
Uncategorised
Archived · Original link
Uncategorised
Archived · Original link
Uncategorised
Archived · Original link
Uncategorised
Archived · Original link
Uncategorised
Archived · Original link
Uncategorised
Archived · Original link

Have your say

Your comment matters. Councils must consider every representation that raises material planning considerations.

Write a comment