← Wrexham County Borough Council

Status

Pending New housing
Received
Not recorded
New homes
1

Full proposal

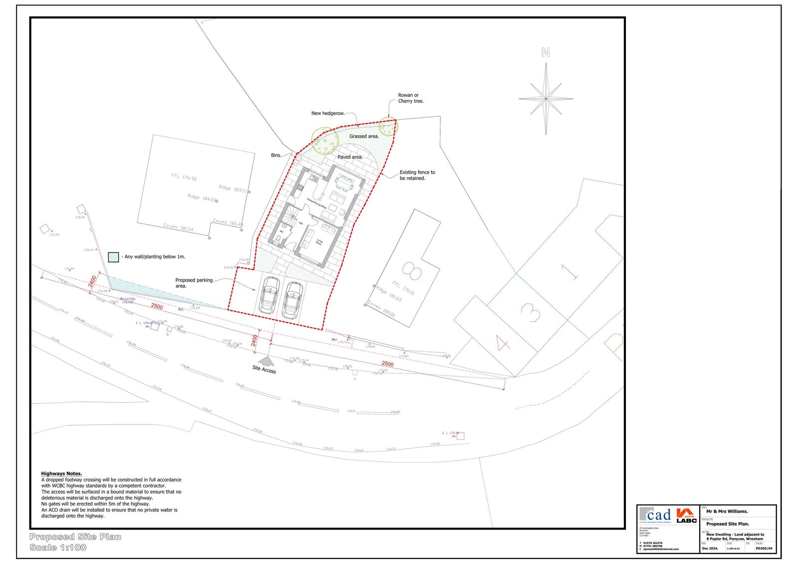
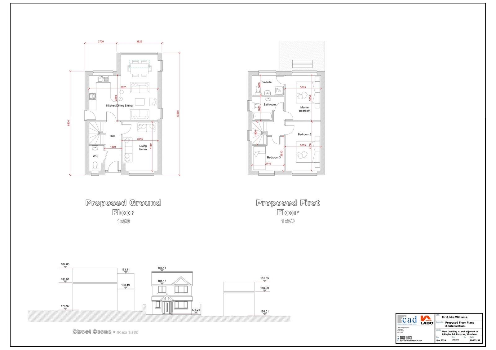
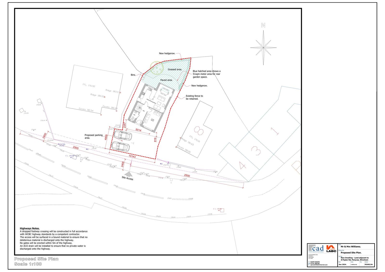
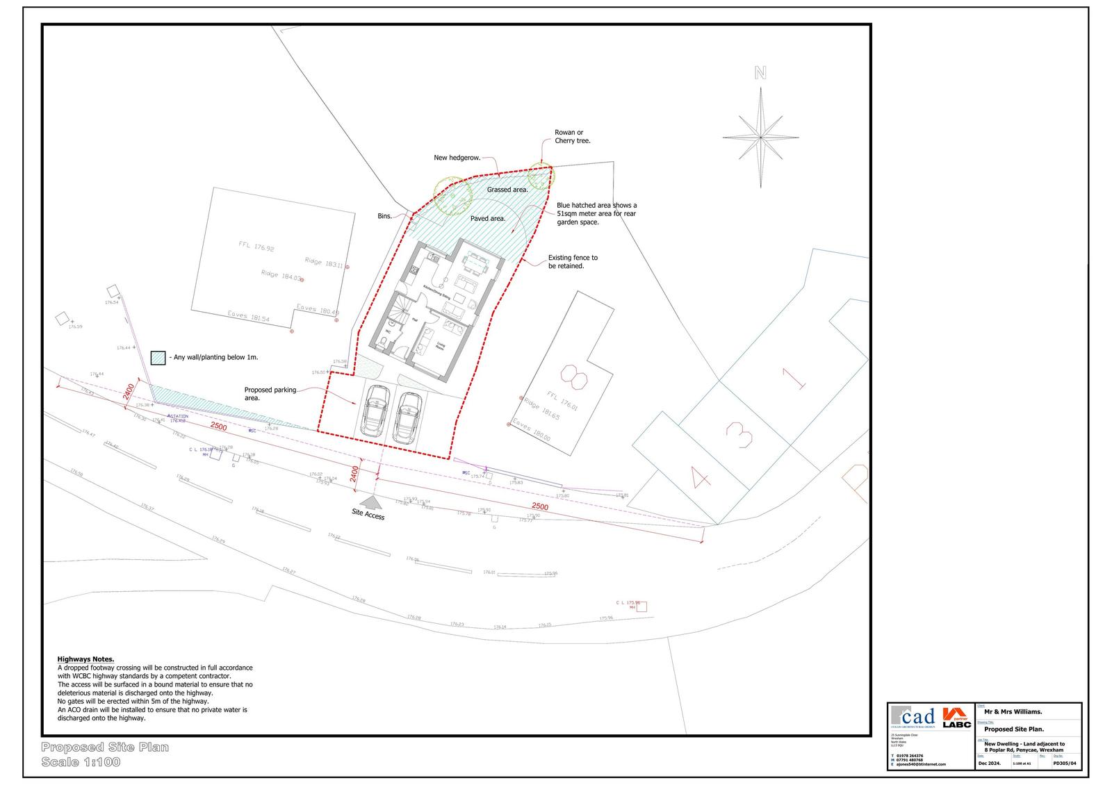
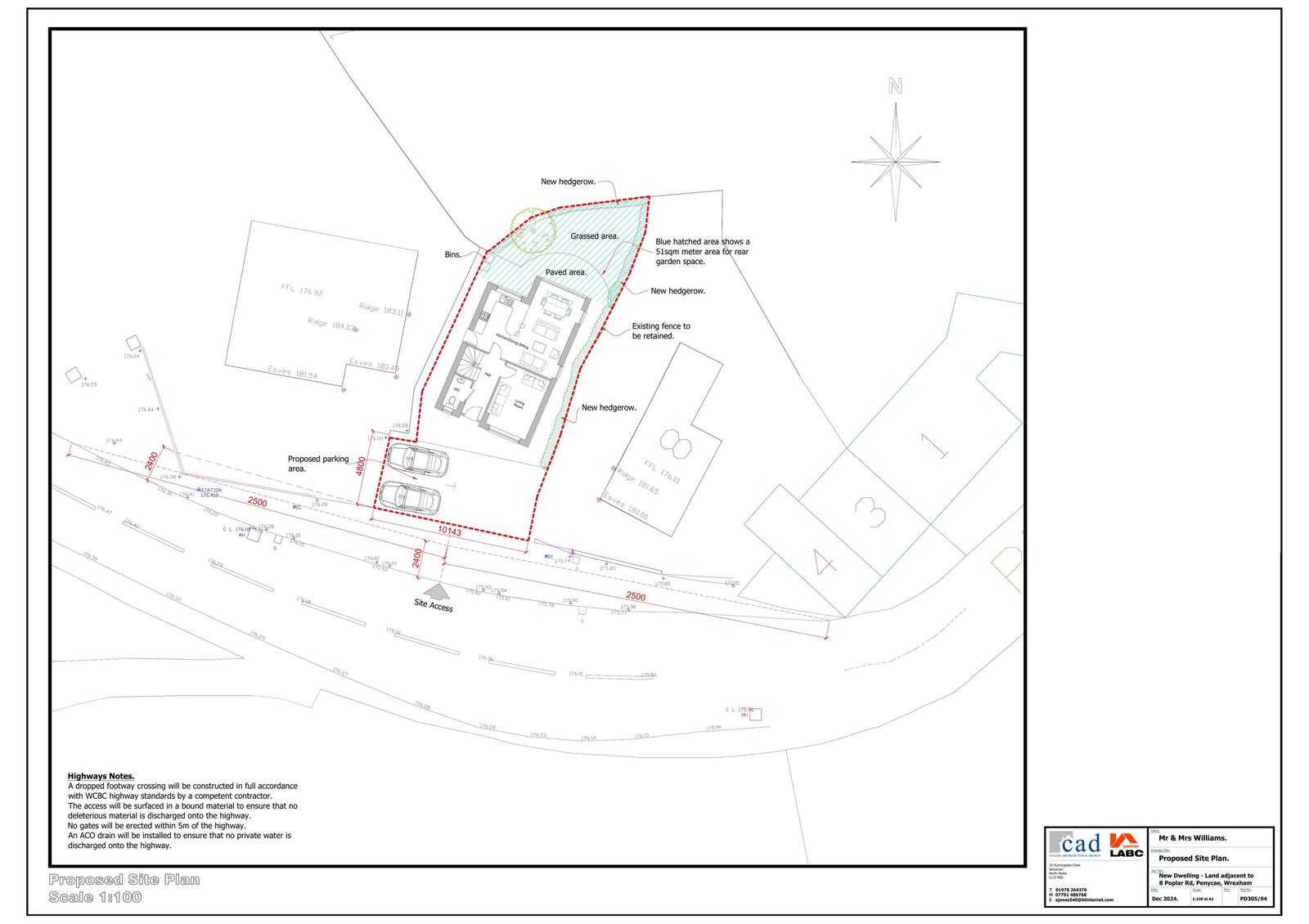
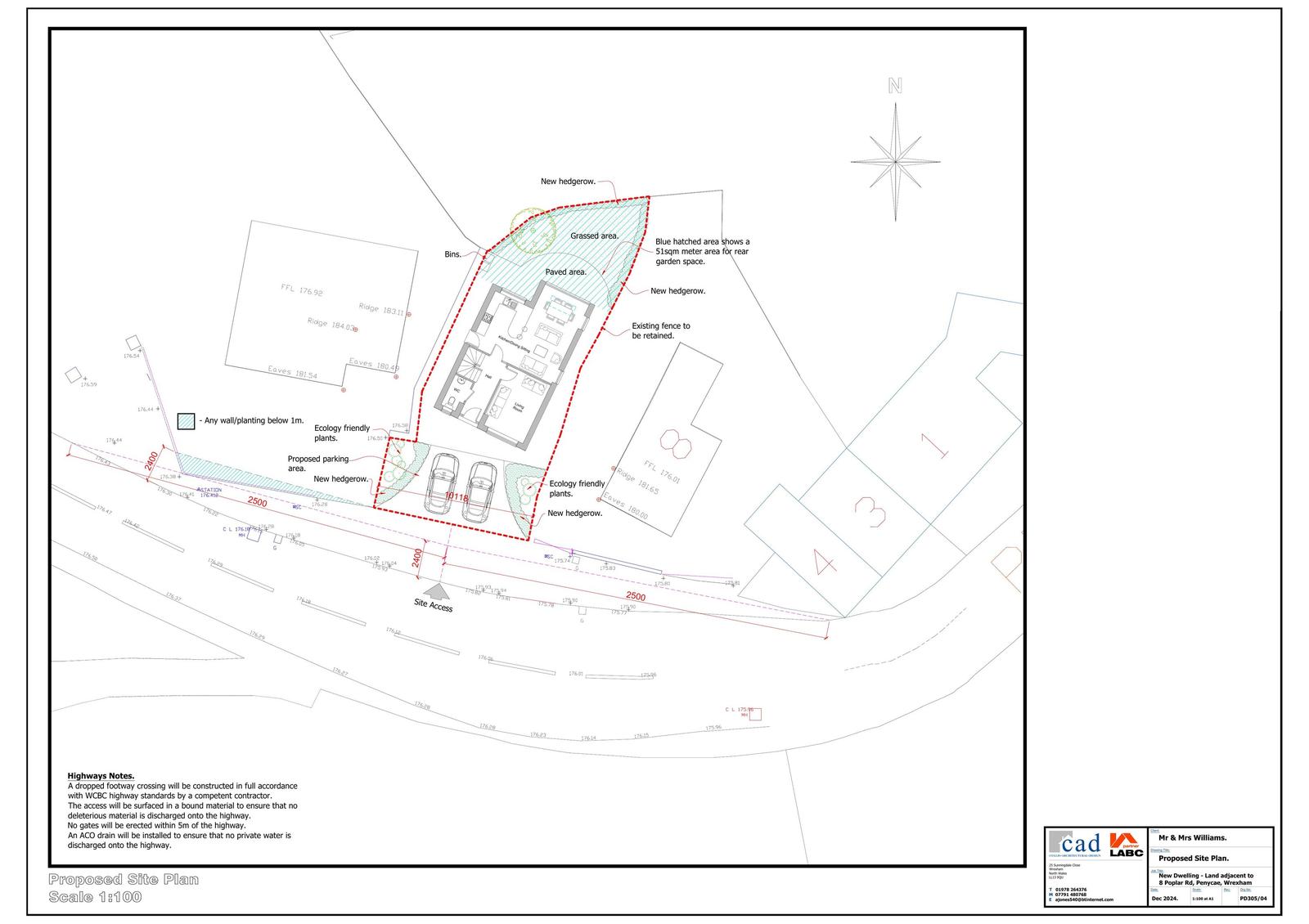
Reference P/2025/0070 Application type Caniatâd cynllunio amlinellol: Rhai materion a gadwyd yn ôl / Outline planning permission: Some matters reserved Site address LAND OFF, POPLAR ROAD, PEN-Y-CAE, WREXHAM, LL14 2PY Description OUTLINE APPLICATION FOR ERECTION OF DWELLING (APPEARANCE AND LANDSCAPING RESERVED) Status Ymgynghori ar hyn o bryd / Under Consultation Decision

Documents

Uncategorised
Archived · Original link
Uncategorised
Archived · Original link
Uncategorised
Archived · Original link
Uncategorised
Archived · Original link
Uncategorised
Archived · Original link
Uncategorised
Archived · Original link
Uncategorised
Archived · Original link
Uncategorised
Archived · Original link
Uncategorised
Archived · Original link
Uncategorised
Archived · Original link
Uncategorised
Archived · Original link
Uncategorised
Archived · Original link
Uncategorised
Archived · Original link
Uncategorised
Archived · Original link
Uncategorised
Archived · Original link
Uncategorised
Archived · Original link
Uncategorised
Archived · Original link
Uncategorised
Archived · Original link
Uncategorised
Archived · Original link
Uncategorised
Archived · Original link

Have your say

Your comment matters. Councils must consider every representation that raises material planning considerations.

Write a comment