← Wrexham County Borough Council

Status

Pending Change of use
Received
Not recorded
New homes
5

Full proposal

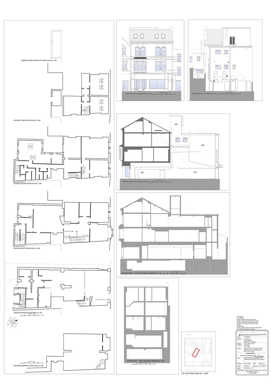
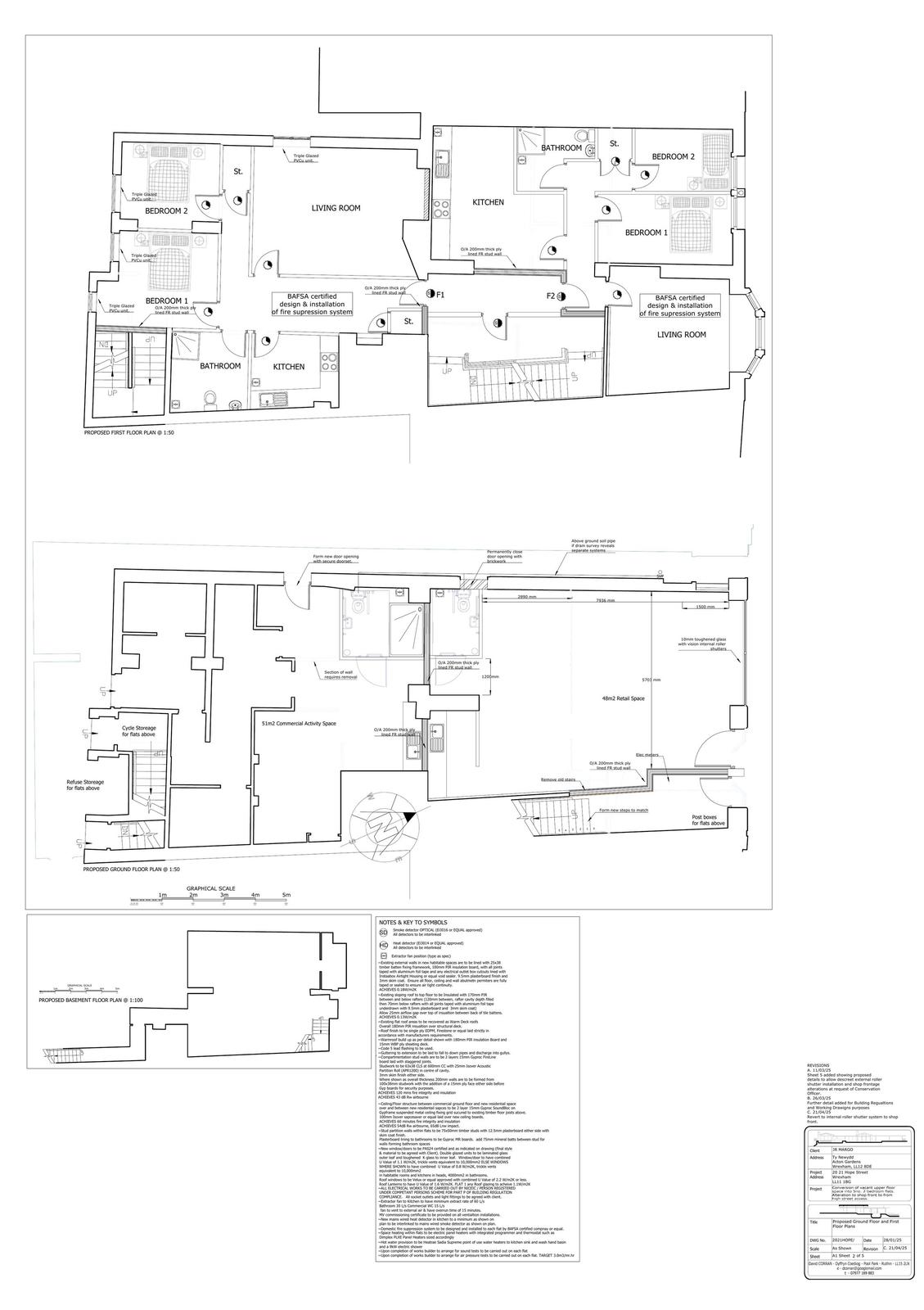
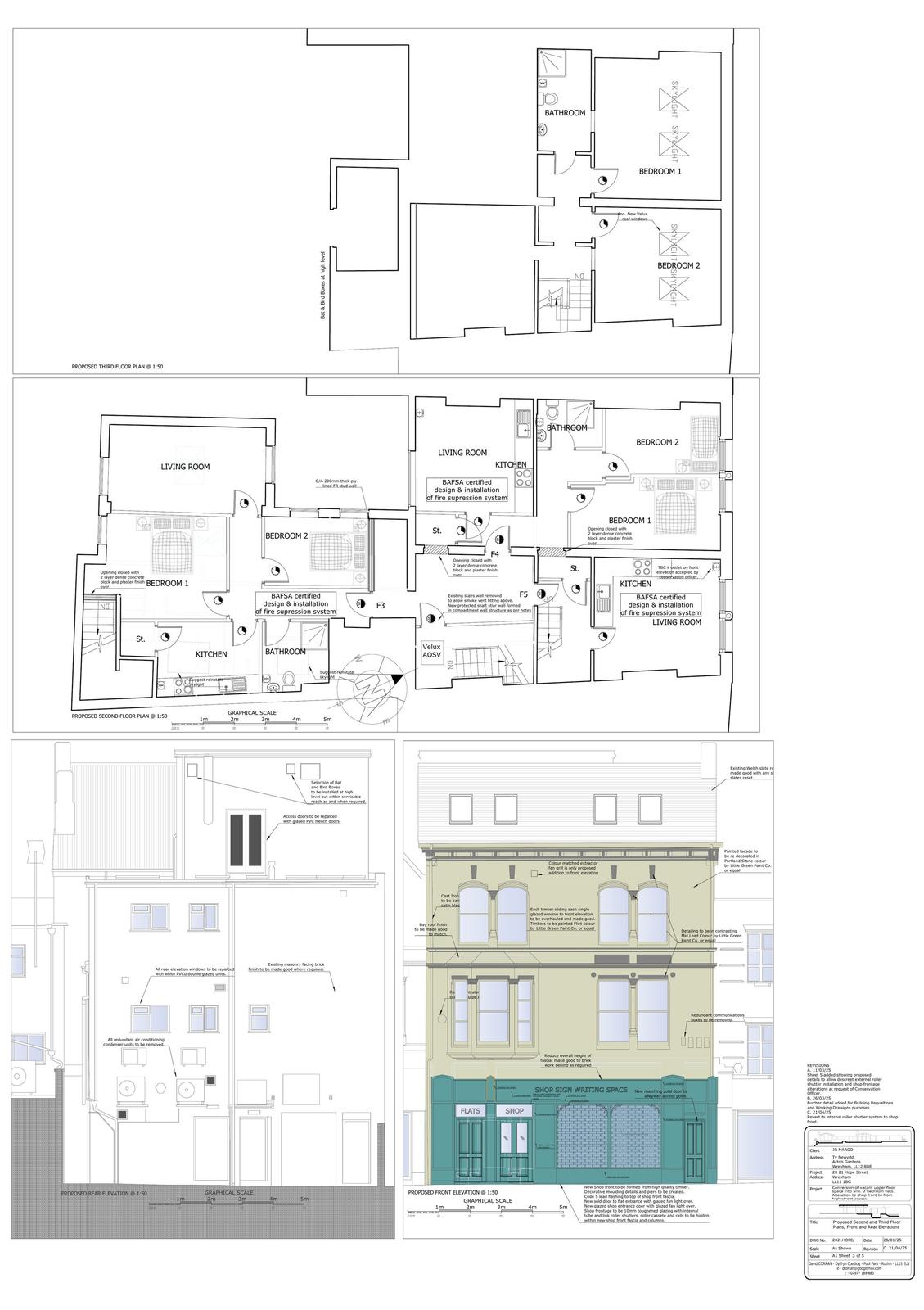
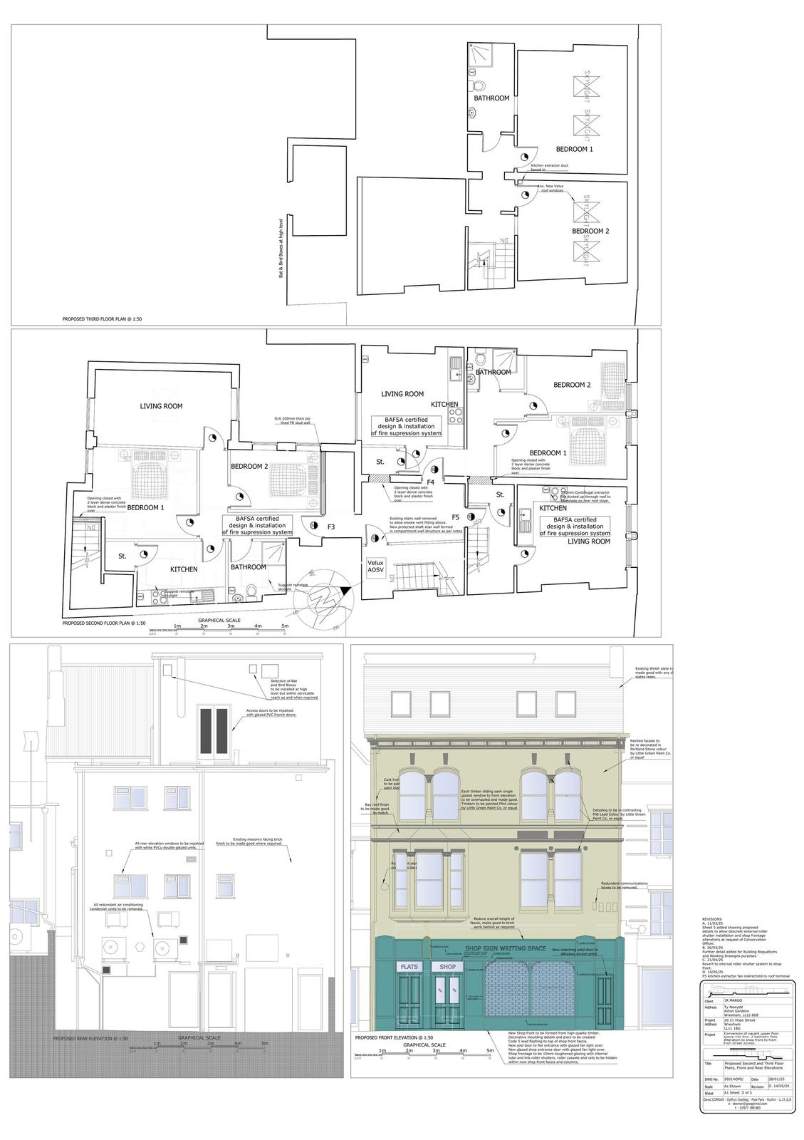
Reference P/2025/0073 Application type Caniatâd Cynllunio Llawn / Full planning permission Site address 20-21 HOPE STREET, WREXHAM, LL11 1BG Description CHANGE OF USE OF UPPERS FLOORS TO 5 NO 2 BEDROOM FLATS, CHANGES TO SHOP FRONT TO FACILITATE ACCESS AND CONVERSION OF GROUND FLOOR RETAIL SPACE FROM SINGLE UNIT TO 2 UNITS Status Ymgynghori ar hyn o bryd / Under Consultation Decision

Documents

Uncategorised
Archived · Original link
Uncategorised
Archived · Original link
Uncategorised
Archived · Original link
Uncategorised
Archived · Original link
Uncategorised
Archived · Original link
Uncategorised
Archived · Original link
Uncategorised
Archived · Original link
Uncategorised
Archived · Original link
Uncategorised
Archived · Original link
Uncategorised
Archived · Original link
Uncategorised
Archived · Original link
Uncategorised
Archived · Original link
Uncategorised
Archived · Original link
Uncategorised
Archived · Original link
Uncategorised
Archived · Original link
Uncategorised
Archived · Original link
Uncategorised
Archived · Original link
Uncategorised
Archived · Original link
Uncategorised
Archived · Original link
Uncategorised
Archived · Original link

Have your say

Your comment matters. Councils must consider every representation that raises material planning considerations.

Write a comment