← Wrexham County Borough Council

Status

Pending House extension
Received
Not recorded
New homes
0

Full proposal

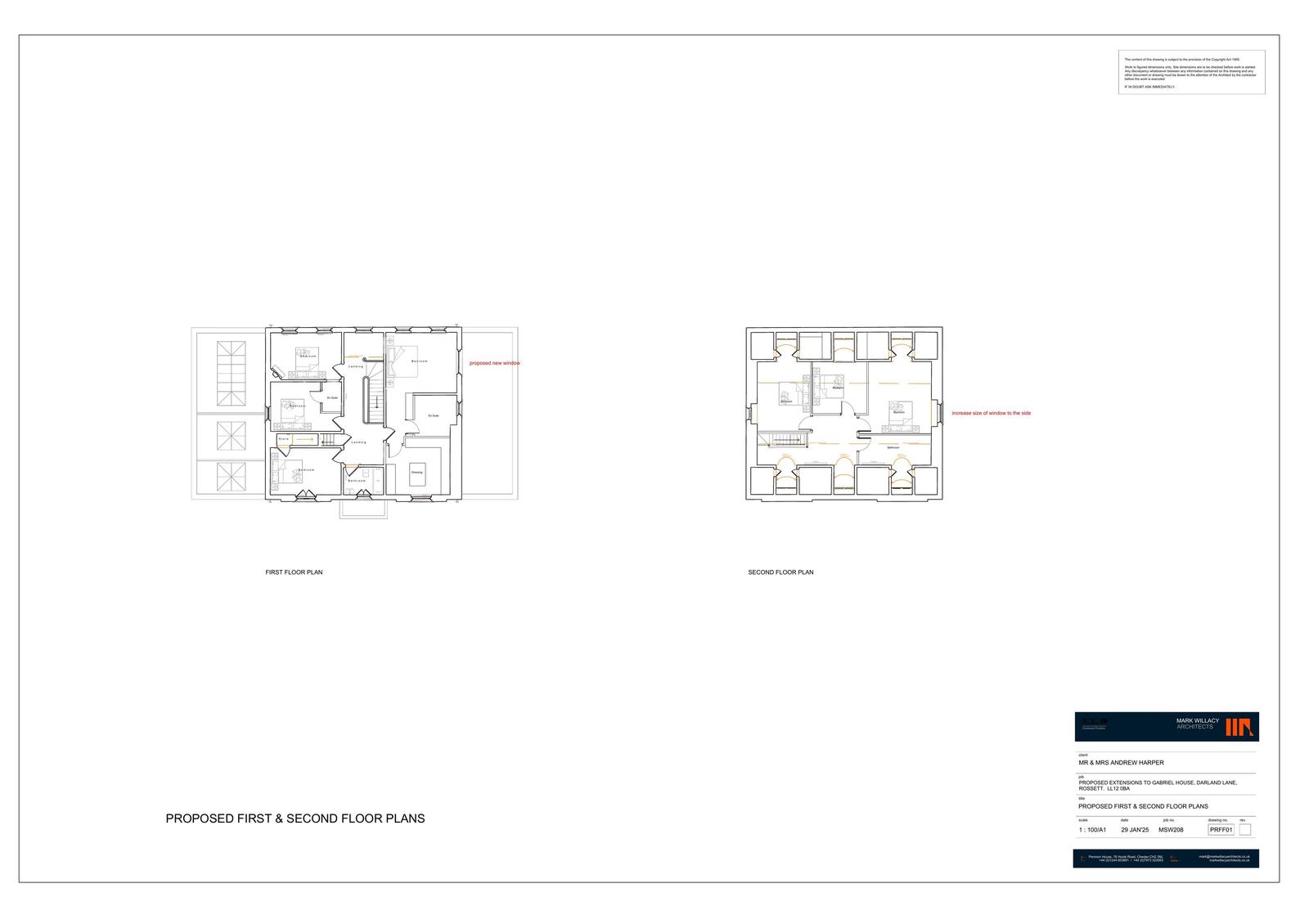
Reference P/2025/0092 Application type Caniatâd cynllunio perchennog tŷ / Householder planning permission Site address GABRIEL HOUSE, DARLAND LANE, ROSSETT, WREXHAM, LL12 0BA Description SINGLE STOREY SIDE EXTENSIONS, ALTERATION TO SIDE WINDOWS AND ADDITION OF A SIDE BALCONY Status Penderfyniad wedi’i wneud / Decision Made Decision Granted

Documents

Uncategorised
Archived · Original link
Uncategorised
Archived · Original link
Uncategorised
Archived · Original link
Uncategorised
Archived · Original link
Uncategorised
Archived · Original link
Uncategorised
Archived · Original link
Uncategorised
Archived · Original link
Uncategorised
Archived · Original link
Uncategorised
Archived · Original link
Uncategorised
Archived · Original link

Have your say

Your comment matters. Councils must consider every representation that raises material planning considerations.

Write a comment