← Wrexham County Borough Council

Status

Pending Other
Received
Not recorded
New homes
0

Full proposal

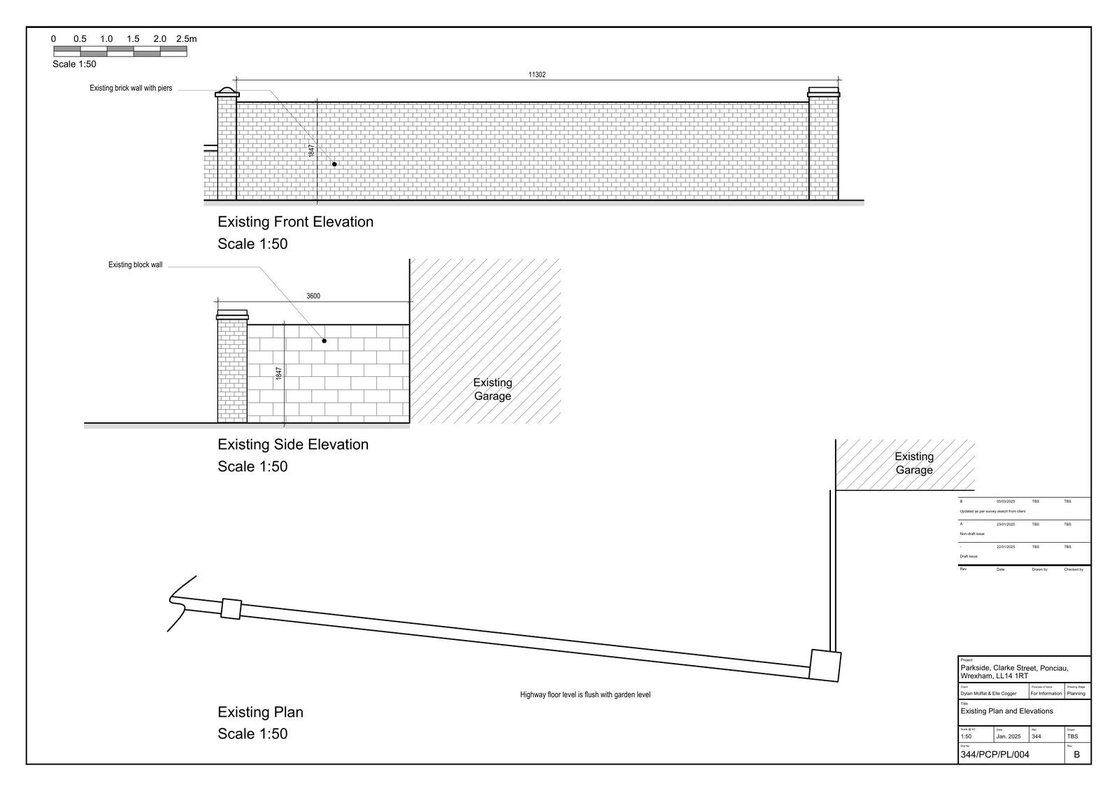
Reference P/2025/0212 Application type Caniatâd cynllunio perchennog tŷ / Householder planning permission Site address PARKSIDE, CLARKE STREET, PONCIAU, WREXHAM, LL14 1RT Description DEMOLITION OF EXISTING WALL, ERECTION OF REPLACEMENT FENCE AND GATE AND FORMATION OF VEHICULAR ACCESS Status Penderfyniad wedi’i wneud / Decision Made Decision Granted

Documents

Uncategorised
Archived · Original link
Uncategorised
Archived · Original link
Uncategorised
Archived · Original link
Uncategorised
Archived · Original link
Uncategorised
Archived · Original link
Uncategorised
Archived · Original link

Have your say

Your comment matters. Councils must consider every representation that raises material planning considerations.

Write a comment