← Wrexham County Borough Council

Status

Pending House extension
Received
Not recorded
New homes
0

Full proposal

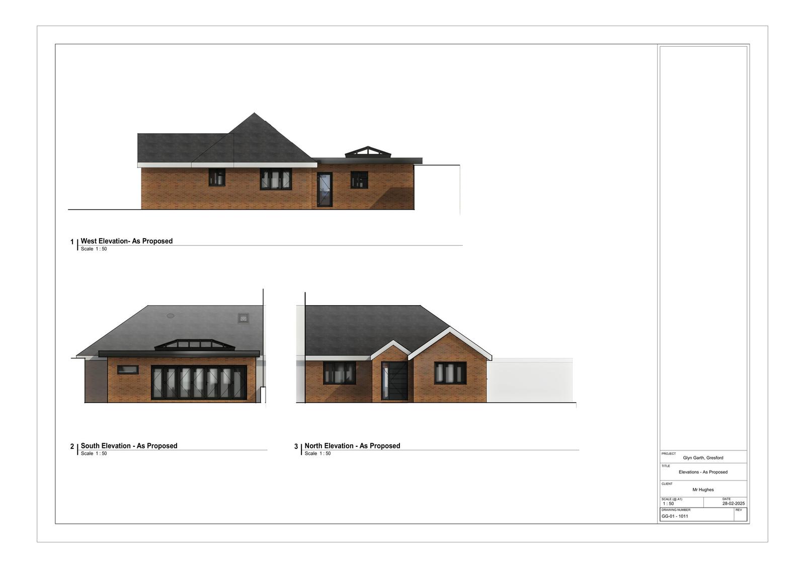
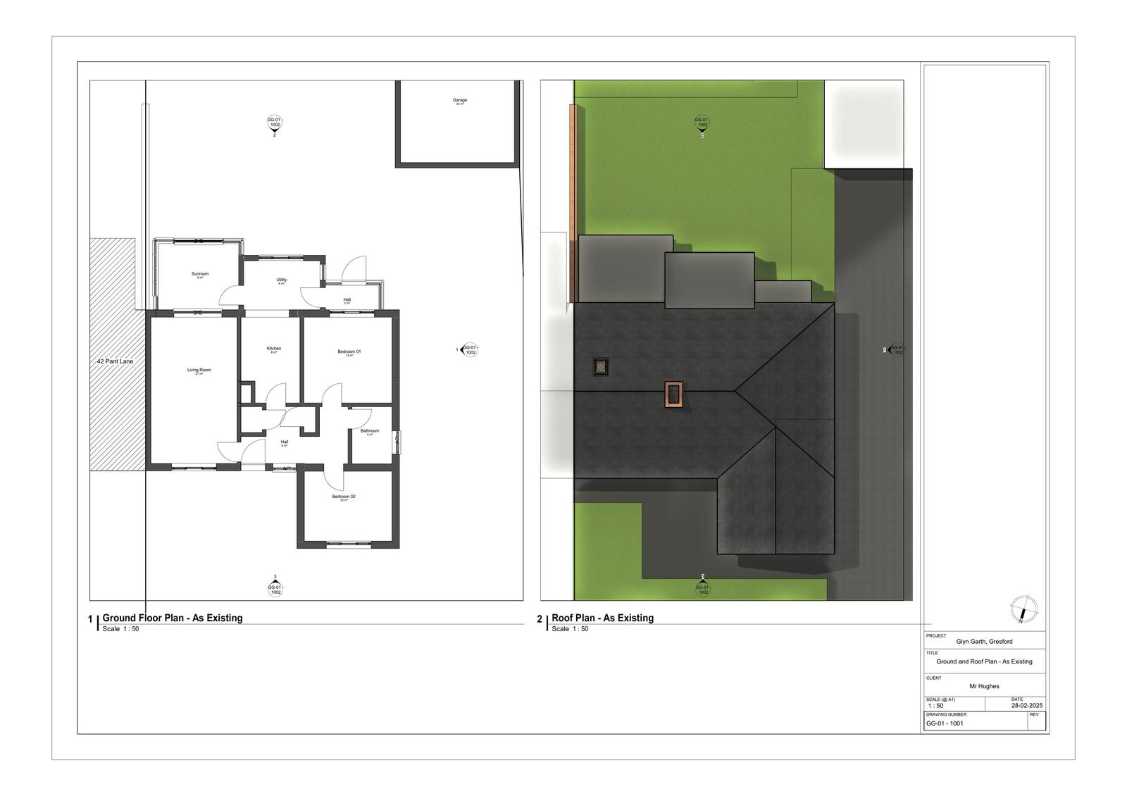
Reference P/2025/0233 Application type Caniatâd cynllunio perchennog tŷ / Householder planning permission Site address GLYN GARTH, PANT LANE, GRESFORD, WREXHAM, LL12 8HB Description SINGLE STOREY REAR EXTENSION AND ERECTION OF FRONT PORCH Status Penderfyniad wedi’i wneud / Decision Made Decision Granted

Documents

Uncategorised
Archived · Original link
Uncategorised
Archived · Original link
Uncategorised
Archived · Original link
Uncategorised
Archived · Original link
Uncategorised
Archived · Original link
Uncategorised
Archived · Original link
Uncategorised
Archived · Original link
Uncategorised
Archived · Original link

Have your say

Your comment matters. Councils must consider every representation that raises material planning considerations.

Write a comment