← Wrexham County Borough Council

Status

Pending Change of use
Received
Not recorded
New homes
0

Full proposal

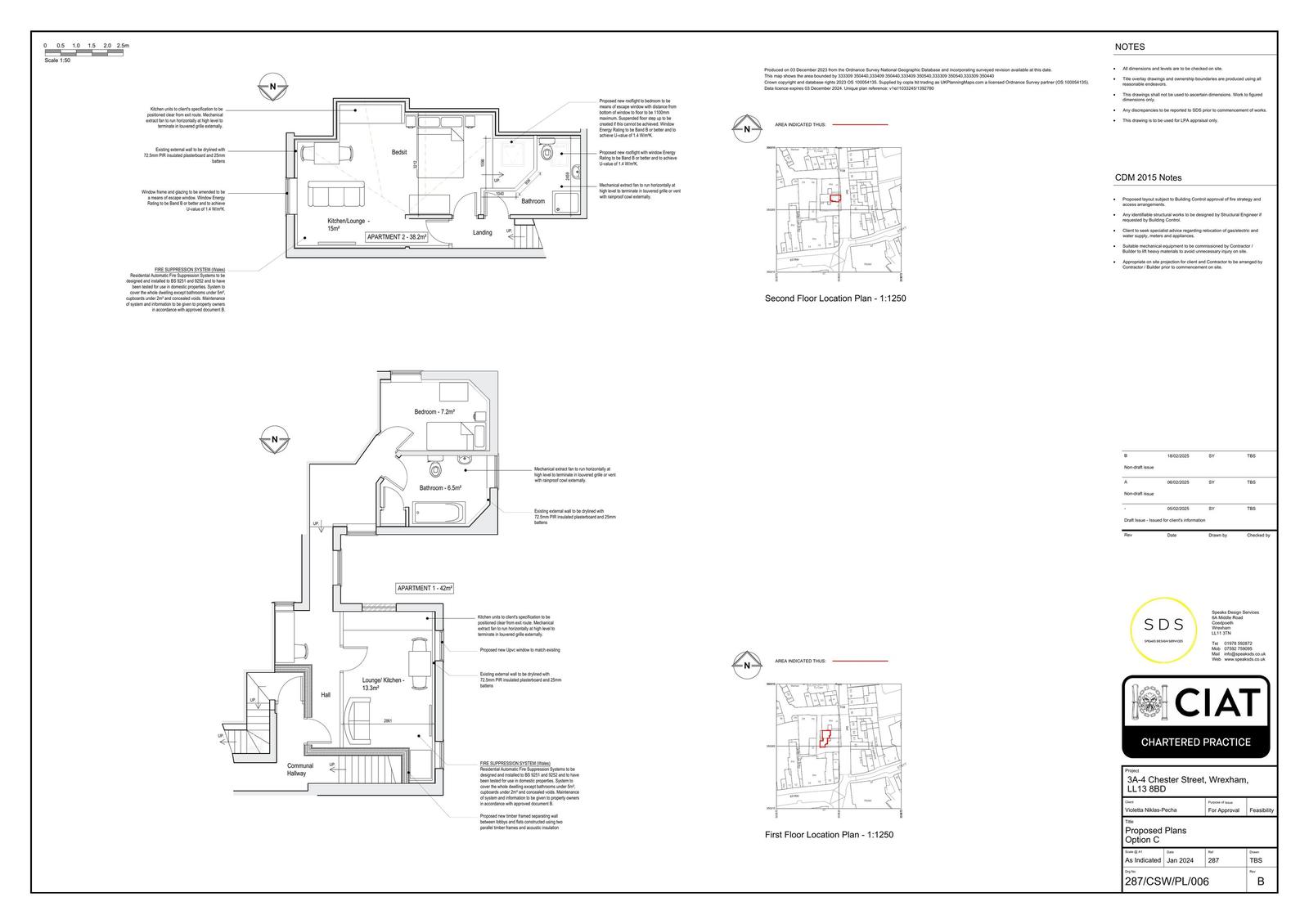
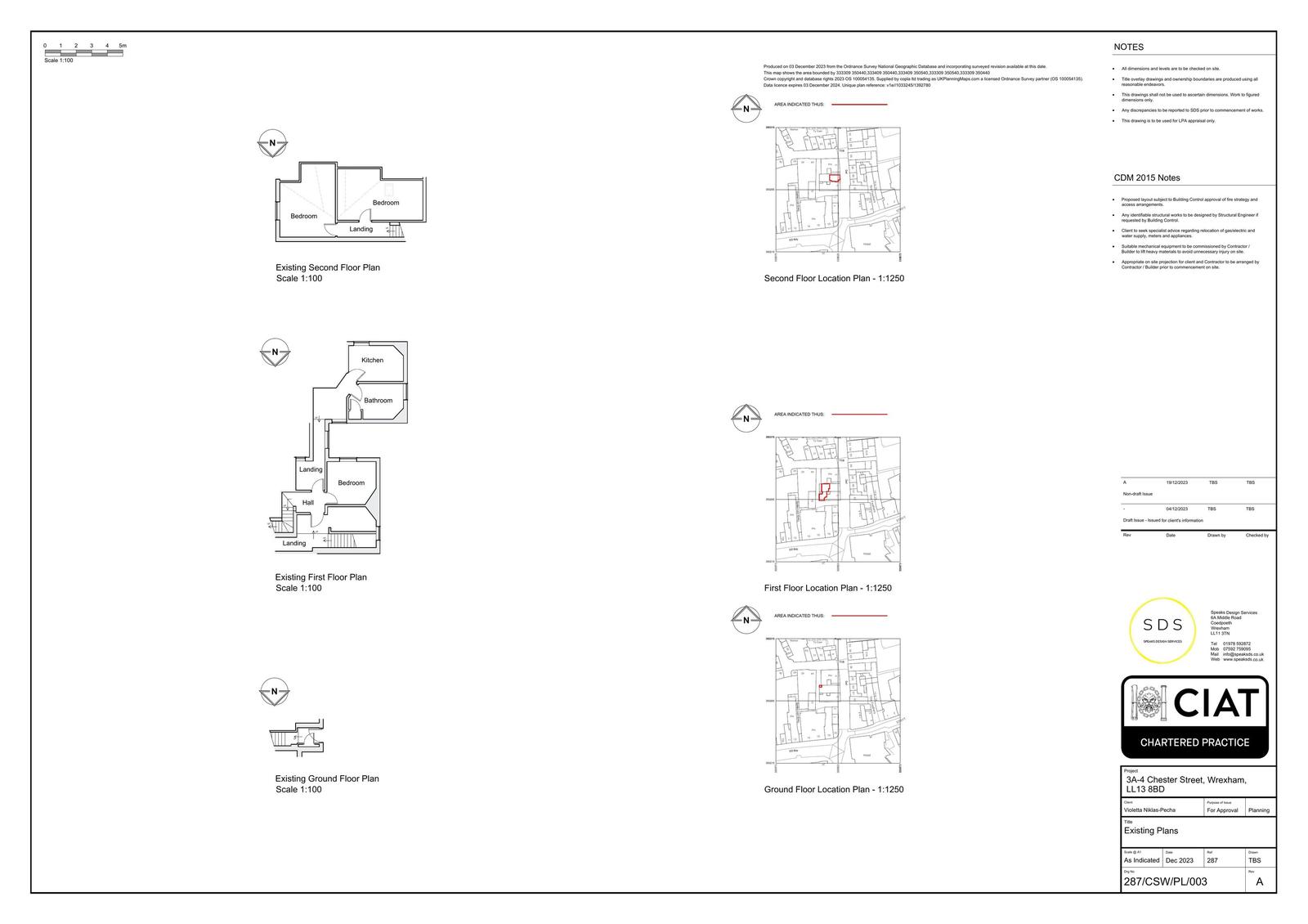
Reference P/2025/0235 Application type Caniatâd Cynllunio Llawn / Full planning permission Site address 3A-4 CHESTER STREET, WREXHAM, LL13 8BD Description CONVERSION OF 3 BEDROOM FLAT INTO 1 NO APARTMENT AND 1 NO BEDSIT Status Ymgynghori ar hyn o bryd / Under Consultation Decision

Documents

Uncategorised
Archived · Original link
Uncategorised
Archived · Original link
Uncategorised
Archived · Original link
Uncategorised
Archived · Original link
Uncategorised
Archived · Original link
Uncategorised
Archived · Original link
Uncategorised
Archived · Original link
Uncategorised
Archived · Original link
Uncategorised
Archived · Original link
Uncategorised
Archived · Original link
Uncategorised
Archived · Original link
Uncategorised
Archived · Original link

Have your say

Your comment matters. Councils must consider every representation that raises material planning considerations.

Write a comment