← Wrexham County Borough Council

Status

Pending New housing
Received
Not recorded
New homes
4

Full proposal

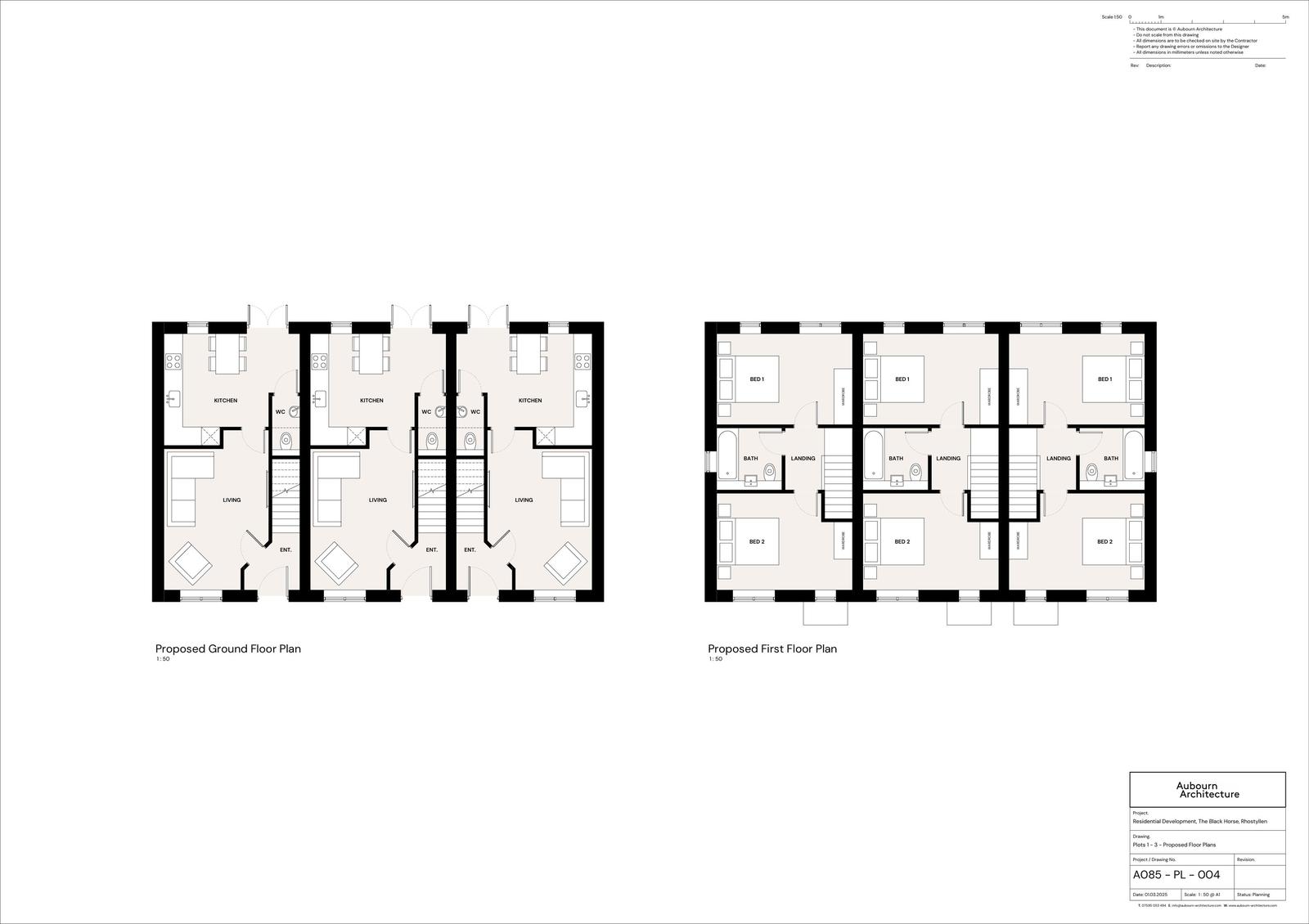
Reference P/2025/0244 Application type Caniatâd Cynllunio Llawn / Full planning permission Site address LAND TO THE SOUTH WEST OF THE OLD BLACK HORSE PUBLIC HOUSE, HIGH STREET, RHOSTYLLEN, WREXHAM, LL14 4AG Description ERECTION OF 4 DWELLINGS Status Ymgynghori ar hyn o bryd / Under Consultation Decision

Documents

Uncategorised
Archived · Original link
Uncategorised
Archived · Original link
Uncategorised
Archived · Original link
Uncategorised
Archived · Original link
Uncategorised
Archived · Original link
Uncategorised
Archived · Original link
Uncategorised
Archived · Original link
Uncategorised
Archived · Original link
Uncategorised
Archived · Original link
Uncategorised
Archived · Original link
Uncategorised
Archived · Original link
Uncategorised
Archived · Original link
Uncategorised
Archived · Original link
Uncategorised
Archived · Original link
Uncategorised
Archived · Original link
Uncategorised
Archived · Original link
Uncategorised
Archived · Original link
Uncategorised
Archived · Original link

Have your say

Your comment matters. Councils must consider every representation that raises material planning considerations.

Write a comment