← Wrexham County Borough Council

Status

Pending House extension
Received
Not recorded
New homes
0

Full proposal

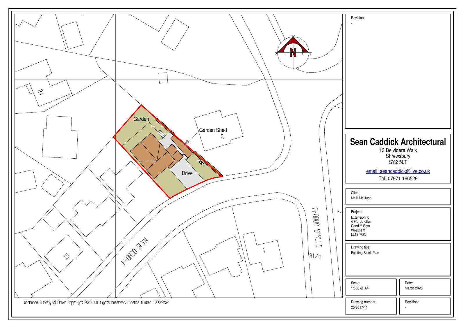
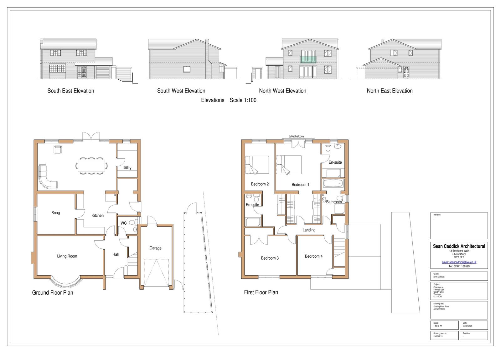
Reference P/2025/0270 Application type Caniatâd cynllunio perchennog tŷ / Householder planning permission Site address 4 FFORDD GLYN, WREXHAM, LL13 7QN Description EXTENSION TO GARAGE AND ERECTION OF BOUNDARY WALL Status Penderfyniad wedi’i wneud / Decision Made Decision Refused

Documents

Uncategorised
Archived · Original link
Uncategorised
Archived · Original link
Uncategorised
Archived · Original link
Uncategorised
Archived · Original link
Uncategorised
Archived · Original link
Uncategorised
Archived · Original link
Uncategorised
Archived · Original link

Have your say

Your comment matters. Councils must consider every representation that raises material planning considerations.

Write a comment