← Wrexham County Borough Council

Status

Pending New housing
Received
Not recorded
New homes
2

Full proposal

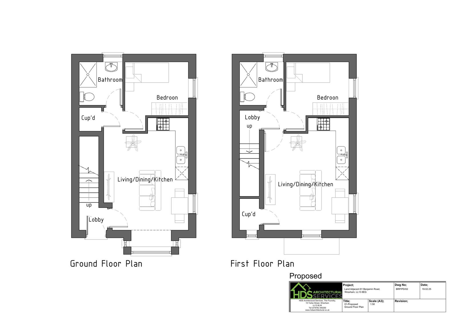
Reference P/2025/0281 Application type Caniatâd Cynllunio Llawn / Full planning permission Site address 81 BENJAMIN ROAD, WREXHAM, LL13 8EG Description ERECTION OF 2 NO ONE BEDROOM APARTMENTS AND ALTERATIONS TO EXISTING VEHICULAR ACCESS AND ASSOCIATED PARKING Status Penderfyniad wedi’i wneud / Decision Made Decision Refused

Documents

Uncategorised
Archived · Original link
Uncategorised
Archived · Original link
Uncategorised
Archived · Original link
Uncategorised
Archived · Original link
Uncategorised
Archived · Original link
Uncategorised
Archived · Original link
Uncategorised
Archived · Original link
Uncategorised
Archived · Original link
Uncategorised
Archived · Original link
Uncategorised
Archived · Original link
Uncategorised
Archived · Original link
Uncategorised
Archived · Original link

Have your say

Your comment matters. Councils must consider every representation that raises material planning considerations.

Write a comment