← Wrexham County Borough Council

Status

Pending House extension
Received
Not recorded
New homes
0

Full proposal

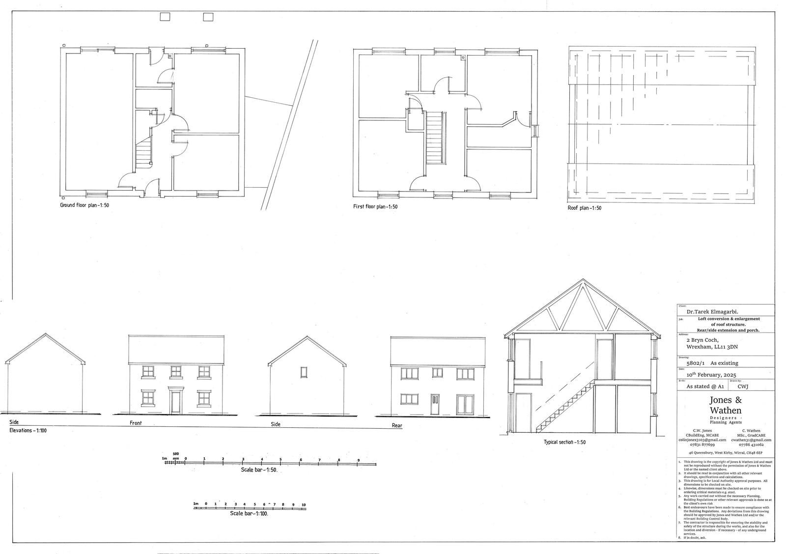
Reference P/2025/0303 Application type Caniatâd cynllunio perchennog tŷ / Householder planning permission Site address 2 BRYN COCH, WREXHAM, LL11 3DN Description RAISE LEVEL OF EXISTING ROOF TO FORM FRONT AND REAR DORMERS, SINGLE STOREY SIDE AND REAR EXTENSION AND ERECTION OF PORCH Status Penderfyniad wedi’i wneud / Decision Made Decision Granted

Documents

Uncategorised
Archived · Original link
Uncategorised
Archived · Original link
Uncategorised
Archived · Original link
Uncategorised
Archived · Original link
Uncategorised
Archived · Original link
Uncategorised
Archived · Original link

Have your say

Your comment matters. Councils must consider every representation that raises material planning considerations.

Write a comment