← Wrexham County Borough Council

Status

Pending Change of use
Received
Not recorded
New homes
0

Full proposal

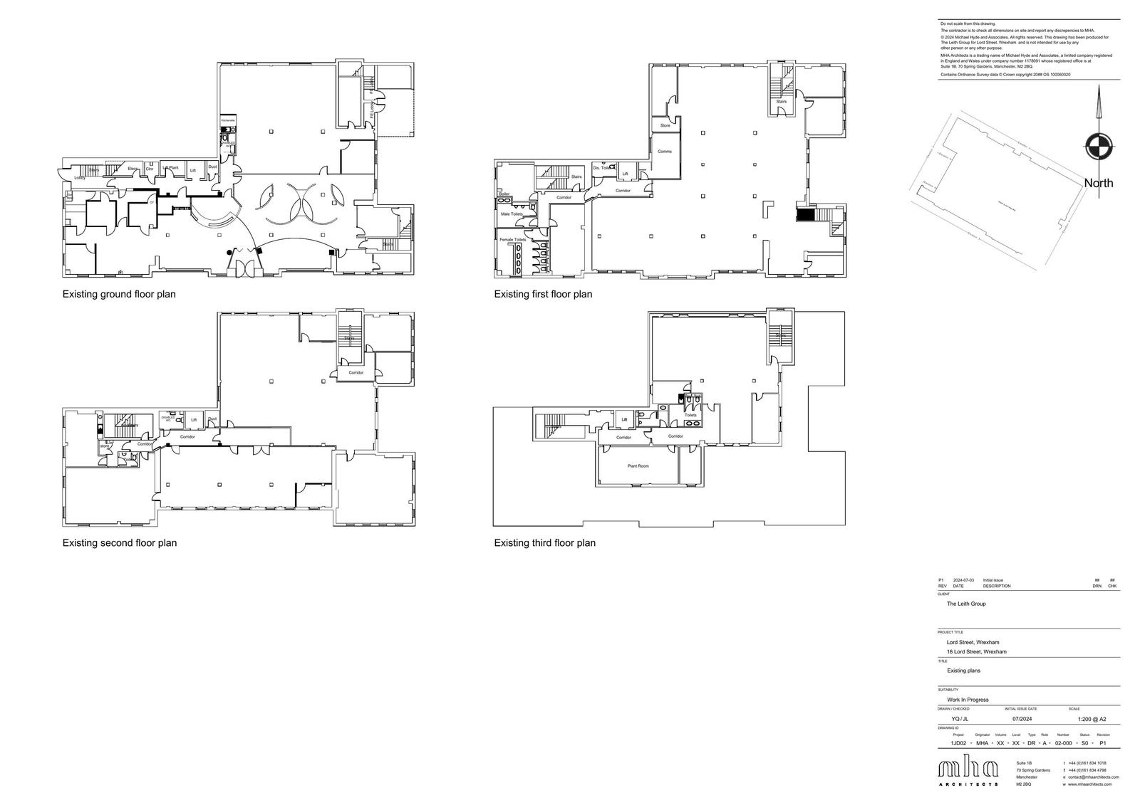
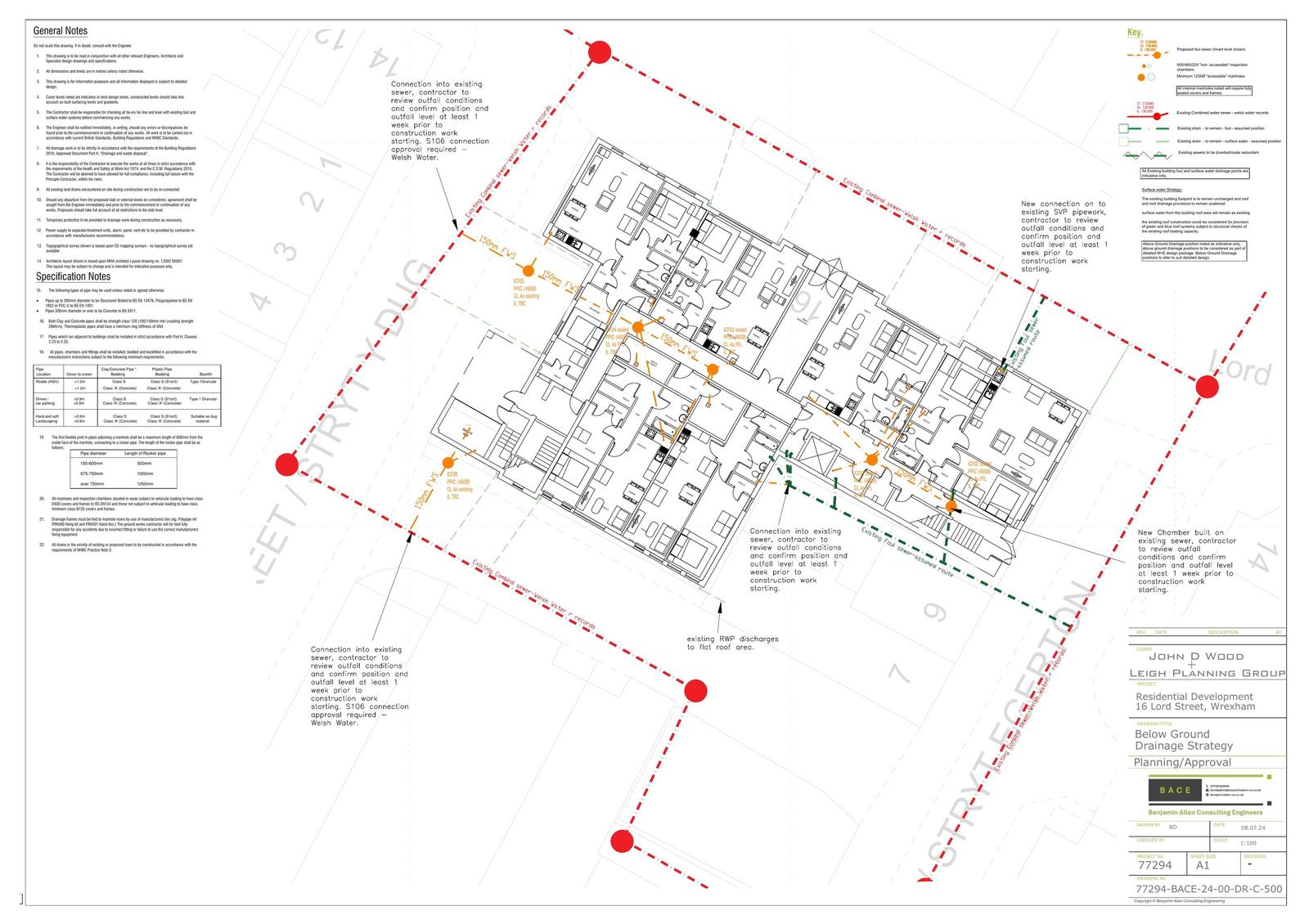
Reference P/2025/0368 Application type Caniatâd Cynllunio Llawn / Full planning permission Site address CONTACT WREXHAM, COUNCIL OFFICES, 16 LORD STREET, WREXHAM, LL11 1LG Description CHANGE OF USE OF BUILDING FROM CLASS B1 (OFFICES) TO CLASS C3 (DWELLINGS) INCLUDING REPLACEMENT OF SHOP WINDOWS TO DOMESTIC WINDOWS, NEW WINDOW OPENINGS AND ASSOCIATED WORKS Status Ymgynghori ar hyn o bryd / Under Consultation Decision

Documents

Uncategorised
Archived · Original link
Uncategorised
Archived · Original link
Uncategorised
Archived · Original link
Uncategorised
Archived · Original link
Uncategorised
Archived · Original link
Uncategorised
Archived · Original link
Uncategorised
Archived · Original link
Uncategorised
Archived · Original link
Uncategorised
Archived · Original link
Uncategorised
Archived · Original link
Uncategorised
Archived · Original link
Uncategorised
Archived · Original link
Uncategorised
Archived · Original link
Uncategorised
Archived · Original link
Uncategorised
Archived · Original link
Uncategorised
Archived · Original link
Uncategorised
Archived · Original link
Uncategorised
Archived · Original link
Uncategorised
Archived · Original link
Uncategorised
Archived · Original link

Have your say

Your comment matters. Councils must consider every representation that raises material planning considerations.

Write a comment