← Wrexham County Borough Council

Status

Pending House extension
Received
Not recorded
New homes
0

Full proposal

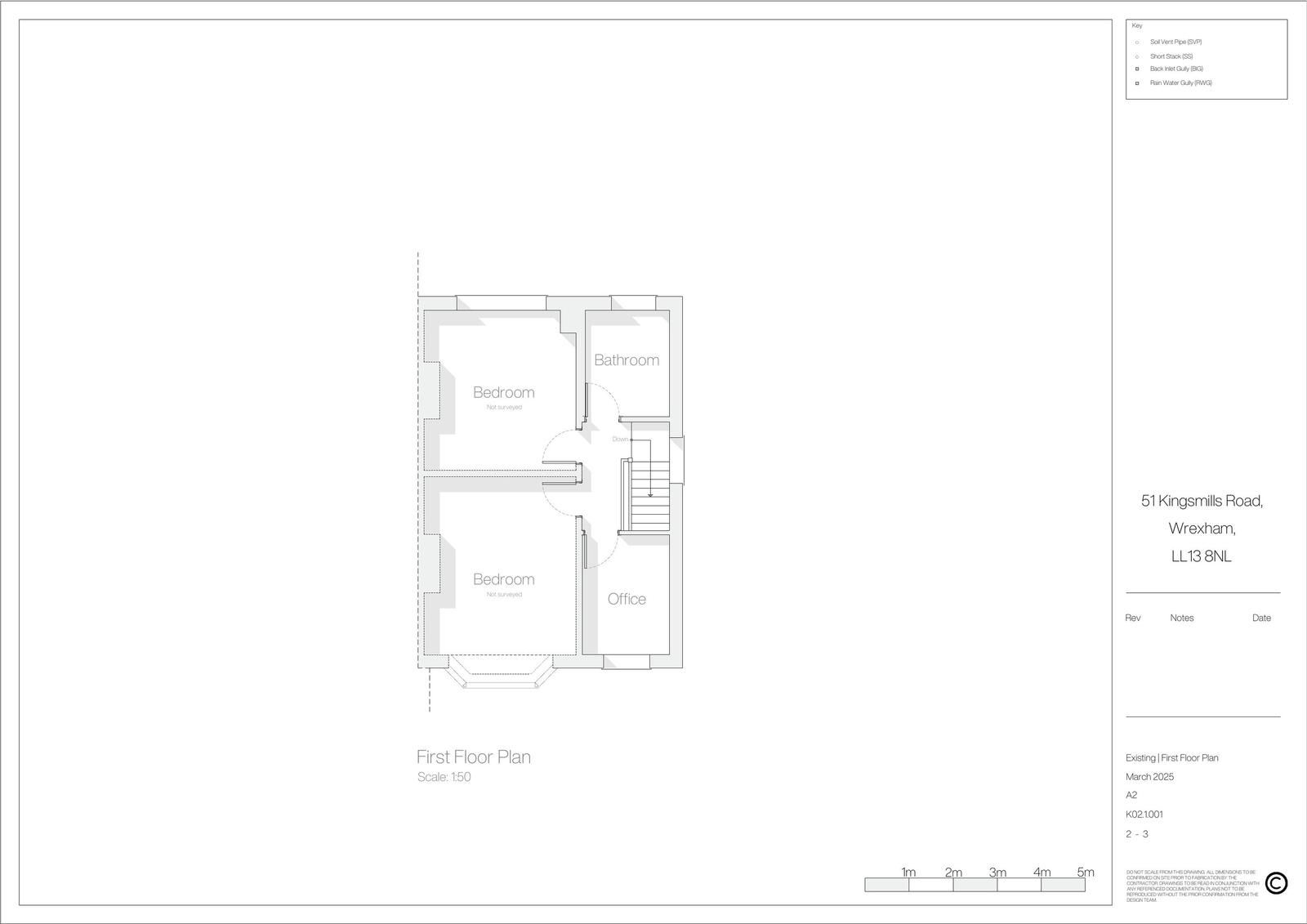
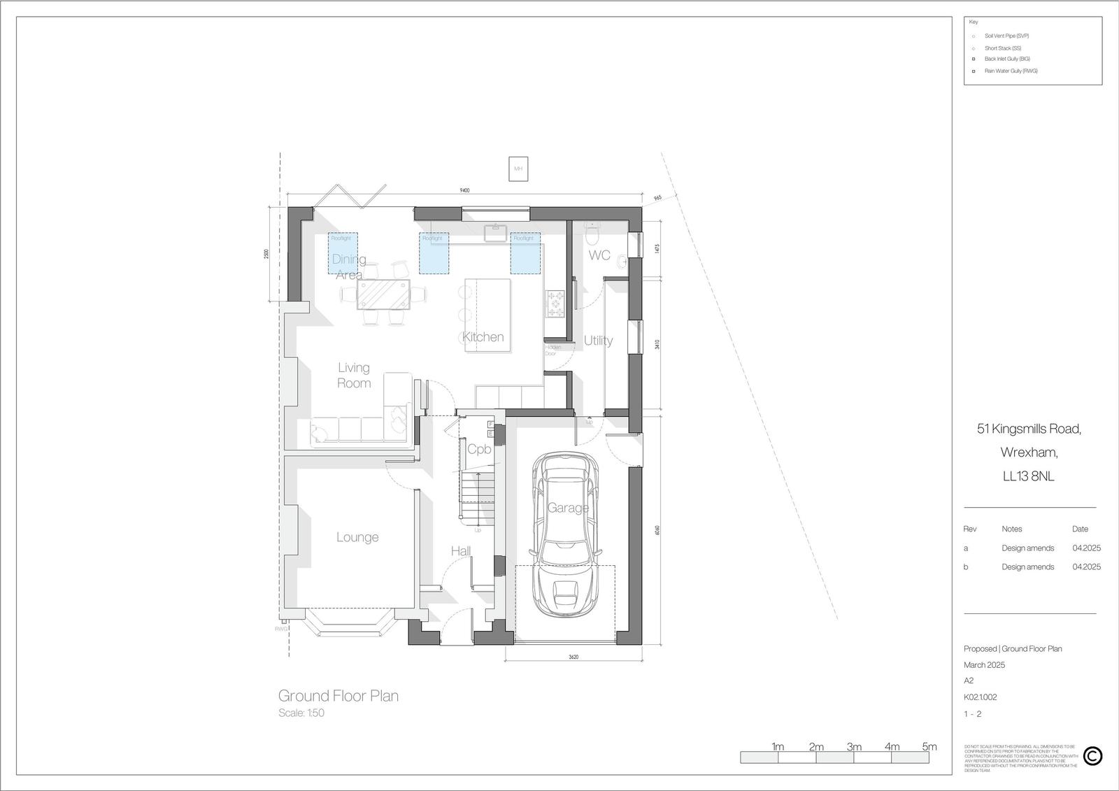
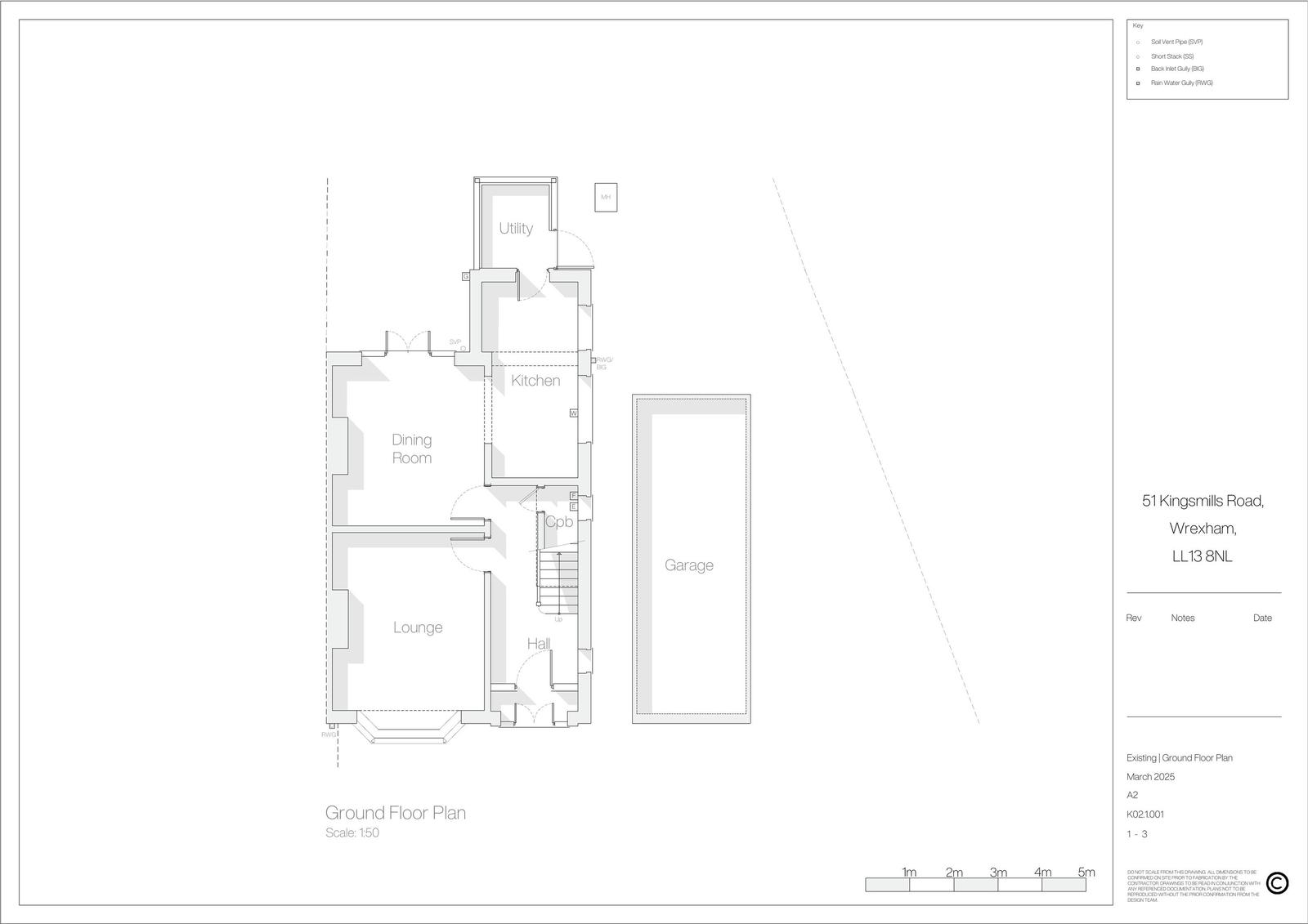
Reference P/2025/0388 Application type Caniatâd cynllunio perchennog tŷ / Householder planning permission Site address 51 KINGSMILLS ROAD, WREXHAM, LL13 8NL Description DEMOLITION OF EXISTING GARAGE AND ERECTION OF SINGLE STOREY SIDE AND REAR EXTENSION Status Ymgynghori ar hyn o bryd / Under Consultation Decision Granted

Documents

Uncategorised
Archived · Original link
Uncategorised
Archived · Original link
Uncategorised
Archived · Original link
Uncategorised
Archived · Original link
Uncategorised
Archived · Original link
Uncategorised
Archived · Original link
Uncategorised
Archived · Original link
Uncategorised
Archived · Original link
Uncategorised
Archived · Original link
Uncategorised
Archived · Original link
Uncategorised
Archived · Original link

Have your say

Your comment matters. Councils must consider every representation that raises material planning considerations.

Write a comment