← Wrexham County Borough Council

Status

Pending House extension
Received
Not recorded
New homes
0

Full proposal

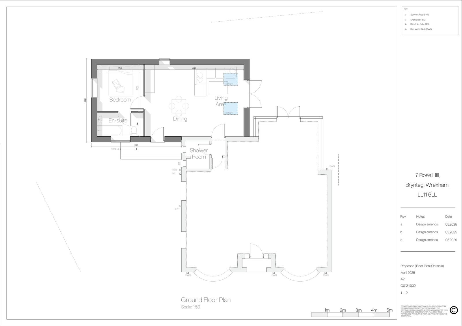
Reference P/2025/0415 Application type Caniatâd cynllunio perchennog tŷ / Householder planning permission Site address ROSLYN, 7 ROSE HILL, BRYNTEG, WREXHAM, LL11 6LL Description SINGLE STOREY SIDE AND REAR EXTENSION TO FORM ANNEXE Status Penderfyniad wedi’i wneud / Decision Made Decision Granted

Documents

Uncategorised
Archived · Original link
Uncategorised
Archived · Original link
Uncategorised
Archived · Original link
Uncategorised
Archived · Original link
Uncategorised
Archived · Original link
Uncategorised
Archived · Original link
Uncategorised
Archived · Original link
Uncategorised
Archived · Original link
Uncategorised
Archived · Original link
Uncategorised
Archived · Original link

Have your say

Your comment matters. Councils must consider every representation that raises material planning considerations.

Write a comment