← Wrexham County Borough Council

Status

Pending House extension
Received
Not recorded
New homes
0

Full proposal

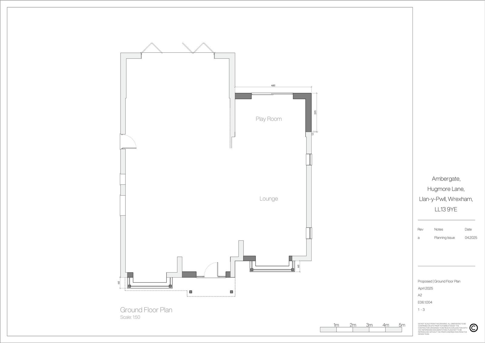
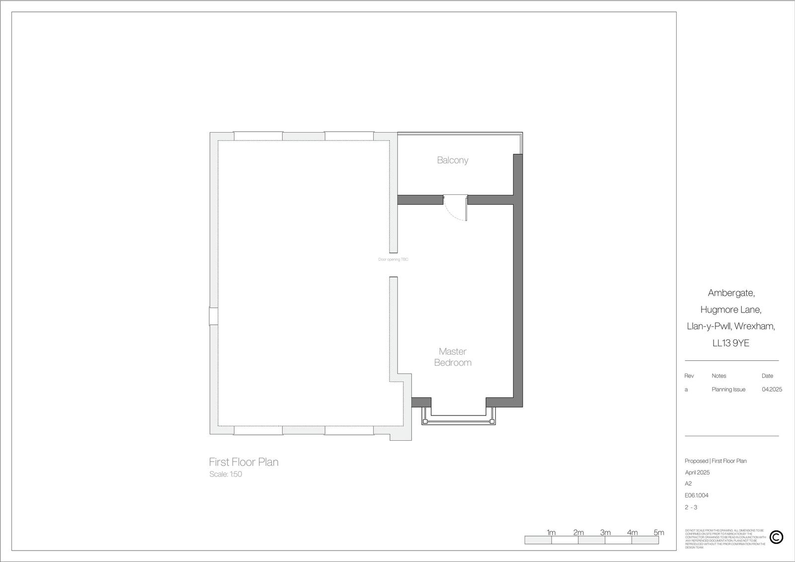
Reference P/2025/0416 Application type Caniatâd cynllunio perchennog tŷ / Householder planning permission Site address AMBERGATE, HUGMORE LANE, LLAN Y PWLL, WREXHAM, LL13 9YE Description TWO STOREY SIDE EXTENSION, ERECTION OF PORCH AND INSTALLATION OF BAY WINDOWS TO FRONT Status Penderfyniad wedi’i wneud / Decision Made Decision Granted

Documents

Uncategorised
Archived · Original link
Uncategorised
Archived · Original link
Uncategorised
Archived · Original link
Uncategorised
Archived · Original link
Uncategorised
Archived · Original link
Uncategorised
Archived · Original link
Uncategorised
Archived · Original link
Uncategorised
Archived · Original link
Uncategorised
Archived · Original link
Uncategorised
Archived · Original link
Uncategorised
Archived · Original link

Have your say

Your comment matters. Councils must consider every representation that raises material planning considerations.

Write a comment