← Wrexham County Borough Council

Status

Pending House extension
Received
Not recorded
New homes
0

Full proposal

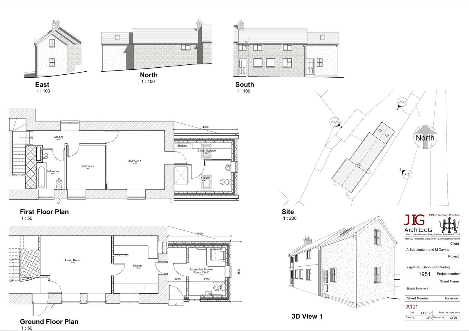
Reference P/2025/0420 Application type Caniatâd cynllunio perchennog tŷ / Householder planning permission Site address YSGYTHRAU GANOL FARM, PONTFADOG, LLANGOLLEN, WREXHAM, LL20 7AS Description DEMOLITION OF EXISTING SINGLE STOREY BUILDING AND ERECTION OF TWO STOREY SIDE EXTENSION Status Penderfyniad wedi’i wneud / Decision Made Decision Granted

Documents

Uncategorised
Archived · Original link
Uncategorised
Archived · Original link
Uncategorised
Archived · Original link
Uncategorised
Archived · Original link
Uncategorised
Archived · Original link

Have your say

Your comment matters. Councils must consider every representation that raises material planning considerations.

Write a comment