← Wrexham County Borough Council

Status

Pending Other
Received
Not recorded
New homes
0

Full proposal

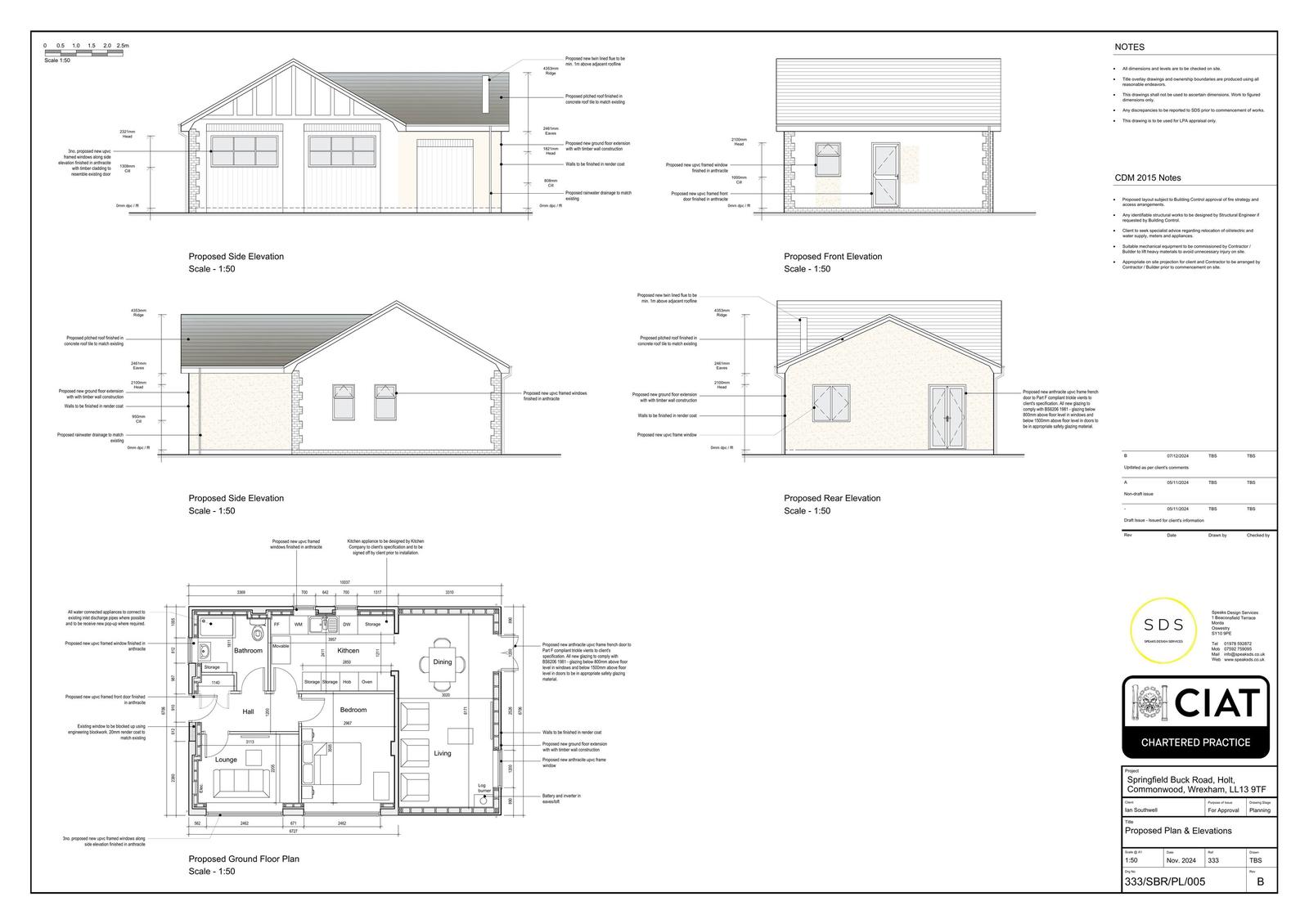
Reference P/2025/0428 Application type Caniatâd cynllunio perchennog tŷ / Householder planning permission Site address SPRINGFIELD, BUCK ROAD, COMMONWOOD, HOLT, WREXHAM, LL13 9TF Description ALTERATIONS TO GARAGE (APPROVED UNDER P/2024/1659) AND CONVERSION TO GRANNY ANNEX/ANCILLARY RESIDENTIAL ACCOMMODATION Status Penderfyniad wedi’i wneud / Decision Made Decision Granted

Documents

Uncategorised
Archived · Original link
Uncategorised
Archived · Original link
Uncategorised
Archived · Original link
Uncategorised
Archived · Original link
Uncategorised
Archived · Original link
Uncategorised
Archived · Original link
Uncategorised
Archived · Original link
Uncategorised
Archived · Original link
Uncategorised
Archived · Original link

Have your say

Your comment matters. Councils must consider every representation that raises material planning considerations.

Write a comment