← Wrexham County Borough Council

Status

Pending New housing
Received
Not recorded
New homes
1

Full proposal

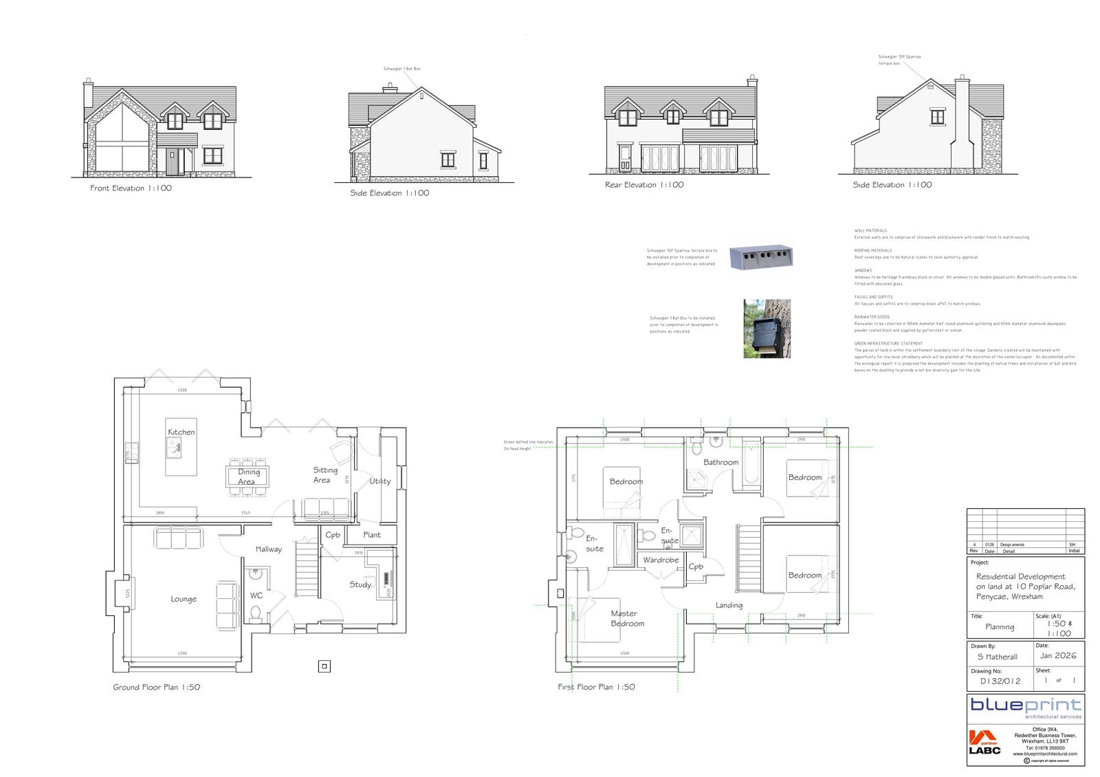
Reference P/2026/0041 Application type Caniatâd Cynllunio Llawn / Full planning permission Site address 10 POPLAR ROAD, PEN-Y-CAE, WREXHAM, LL14 2PY Description ERECTION OF DWELLING WITH DETACHED GARAGE Status Ymgynghori ar hyn o bryd / Under Consultation Decision

Documents

Uncategorised
Archived · Original link
Uncategorised
Archived · Original link
Uncategorised
Archived · Original link
Uncategorised
Archived · Original link
Uncategorised
Archived · Original link
Uncategorised
Archived · Original link
Uncategorised
Archived · Original link
Uncategorised
Archived · Original link
Uncategorised
Archived · Original link
Uncategorised
Archived · Original link
Uncategorised
Archived · Original link
Uncategorised
Archived · Original link
Uncategorised
Archived · Original link

Have your say

Your comment matters. Councils must consider every representation that raises material planning considerations.

Write a comment