← Wrexham County Borough Council

Status

Pending New housing
Received
Not recorded
New homes
3

Full proposal

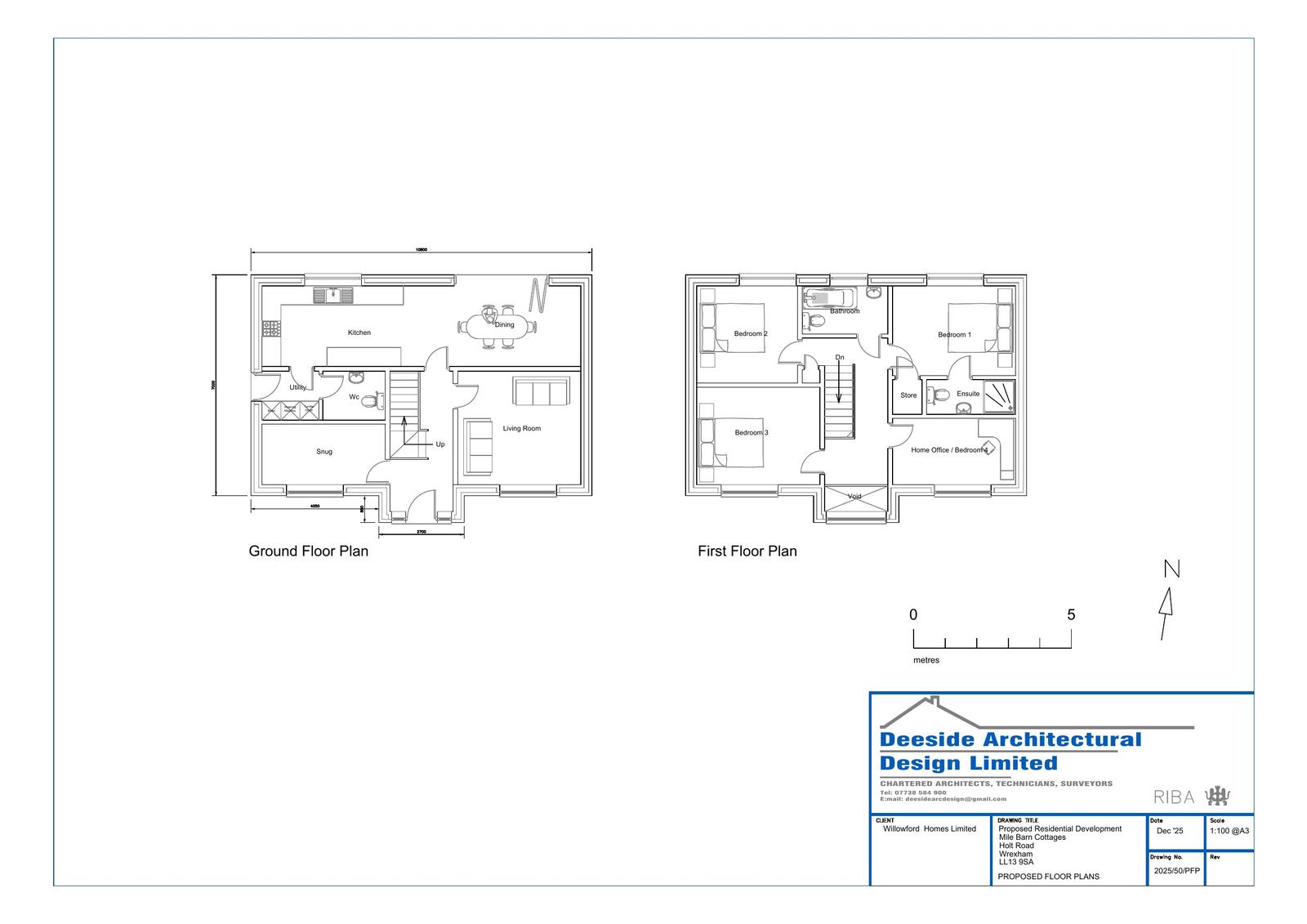
Reference P/2026/0055 Application type Caniatâd Cynllunio Llawn / Full planning permission Site address MILE BARN COTTAGE, HOLT ROAD, LLAN Y PWLL, WREXHAM, LL13 9SA Description DEMOLITION OF EXISTING DWELLINGS AND ERECTION OF 3 DWELLINGS Status Ymgynghori ar hyn o bryd / Under Consultation Decision

Documents

Uncategorised
Archived · Original link
Uncategorised
Archived · Original link
Uncategorised
Archived · Original link
Uncategorised
Archived · Original link
Uncategorised
Archived · Original link
Uncategorised
Archived · Original link
Uncategorised
Archived · Original link
Uncategorised
Archived · Original link
Uncategorised
Archived · Original link
Uncategorised
Archived · Original link
Uncategorised
Archived · Original link
Uncategorised
Archived · Original link
Uncategorised
Archived · Original link
Uncategorised
Archived · Original link
Uncategorised
Archived · Original link
Uncategorised
Archived · Original link

Have your say

Your comment matters. Councils must consider every representation that raises material planning considerations.

Write a comment