← Wyre Council

Status

Pending Decision New housing
Received
12 Apr 2024
New homes
1

Full proposal

Proposed self-build replacement dwelling

Documents

* wyre drainage consultee
Consultee Response
Not yet archived · Original link
* wyre drainage consultee
Consultee Response
Not yet archived · Original link
* wyre drainage consultee
Consultee Response
Not yet archived · Original link
- ryan arrell tree officer
Consultee Response
Not yet archived · Original link
- ryan arrell tree officer
Consultee Response
Not yet archived · Original link
3d visuals
Application Documentation
Not yet archived · Original link
3d visuals
Application Documentation
Not yet archived · Original link
3d visuals
Application Documentation
Not yet archived · Original link
Additional highways information
Application Documentation
Not yet archived · Original link
Application form
Application Form
Not yet archived · Original link
Application form - without personal data
Application Form
Not yet archived · Original link
Bat survey
Application Documentation
Not yet archived · Original link
Bat survey
Application Documentation
Not yet archived · Original link
Biodiversity net gain exemption statement
Application Documentation
Not yet archived · Original link
Climate change and sustainability statement
Application Documentation
Not yet archived · Original link
Compound plan
Superseded Plans
Not yet archived · Original link
Compound plan
Revised Plans
Not yet archived · Original link
Construction management plan
Application Documentation
Not yet archived · Original link
Contamination pro forma
Application Documentation
Not yet archived · Original link
Draft unilateral undertaking
Application Documentation
Not yet archived · Original link
Drainage maintenance and management schedule
Revised Document
Not yet archived · Original link
Drainage strategy
Revised Document
Not yet archived · Original link
Existing elevations
Plans
Not yet archived · Original link
Existing ground floor plan
Plans
Not yet archived · Original link
Plans
Archived · Original link
Flood risk assessment
Application Documentation
Not yet archived · Original link
Lighting assessment
Plans
Not yet archived · Original link
Lighting assessment
Application Documentation
Not yet archived · Original link
Materials schedule
Application Documentation
Not yet archived · Original link
Mr david dutton ecologist - gmeu
Consultee Response
Not yet archived · Original link
Mr david dutton ecologist - gmeu
Consultee Response
Not yet archived · Original link
Mr david dutton ecologist - gmeu
Consultee Response
Not yet archived · Original link
Mr nick clayton - environmental health officer
Consultee Response
Not yet archived · Original link
Mr ryan derbyshire
Consultee Response
Not yet archived · Original link
Mr ryan derbyshire
Consultee Response
Not yet archived · Original link
Mr ryan derbyshire
Consultee Response
Not yet archived · Original link
Mr ryan derbyshire
Consultee Response
Not yet archived · Original link
Mr steven morris
Consultee Response
Not yet archived · Original link
Noise assessment
Application Documentation
Not yet archived · Original link
Percolation report
Revised Document
Not yet archived · Original link
Planning statement
Application Documentation
Not yet archived · Original link
Proposed drainage layout
Plans
Not yet archived · Original link
Proposed elevations
Plans
Not yet archived · Original link
Proposed elevations
Plans
Not yet archived · Original link
Proposed first floor plan
Plans
Not yet archived · Original link
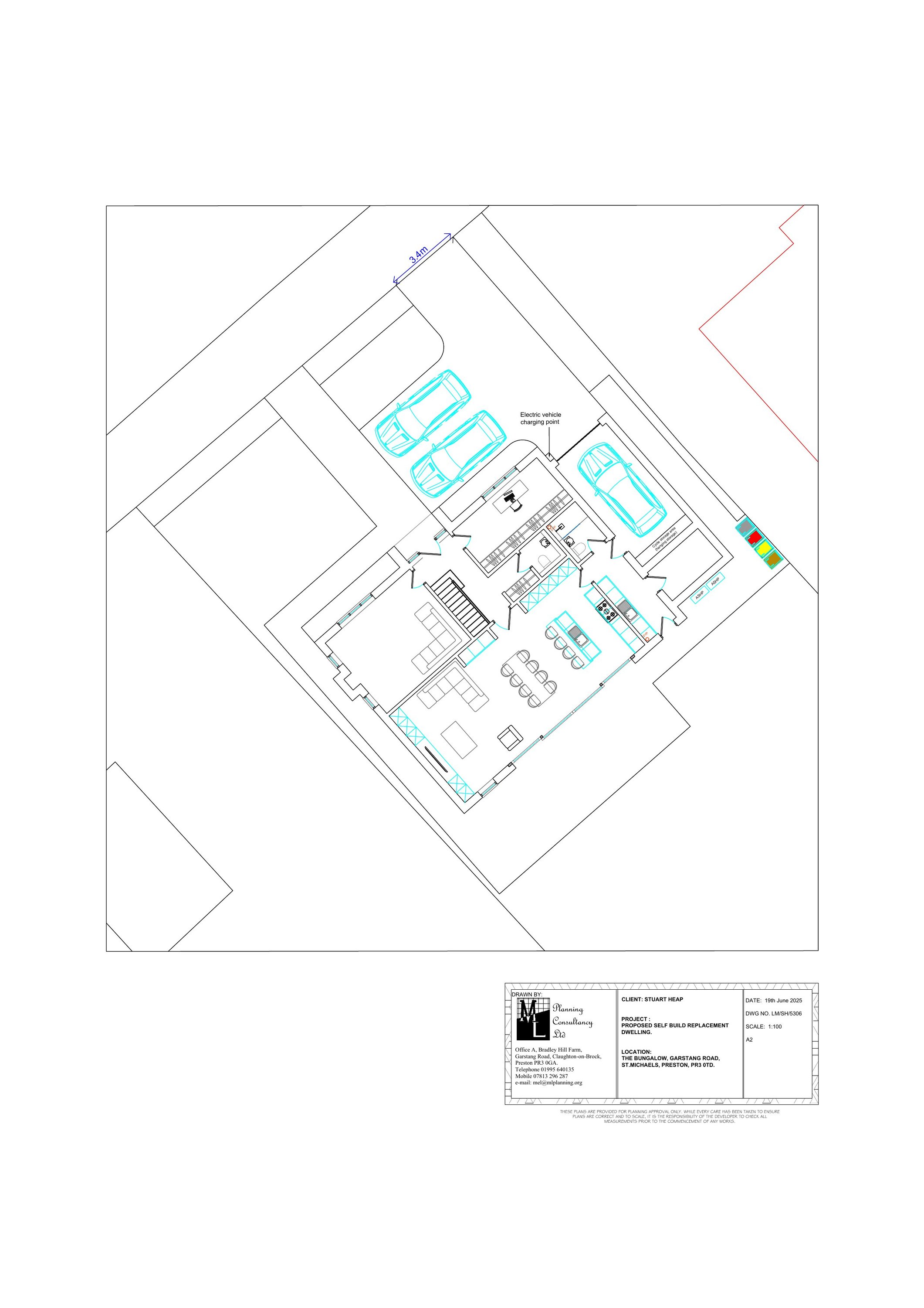
Proposed ground floor plan
Plans
Not yet archived · Original link
Proposed refuse plan
Plans
Not yet archived · Original link
Revised Plans
Archived · Original link
Revised Plans
Archived · Original link
Superseded Plans
Archived · Original link
St michaels sewer records
Revised Document
Not yet archived · Original link
Topographical plan
Plans
Not yet archived · Original link
United utilities
Consultee Response
Not yet archived · Original link
United utilities
Consultee Response
Not yet archived · Original link
United utilities
Consultee Response
Not yet archived · Original link

Have your say

Your comment matters. Councils must consider every representation that raises material planning considerations.

Write a comment