← Wyre Council

Status

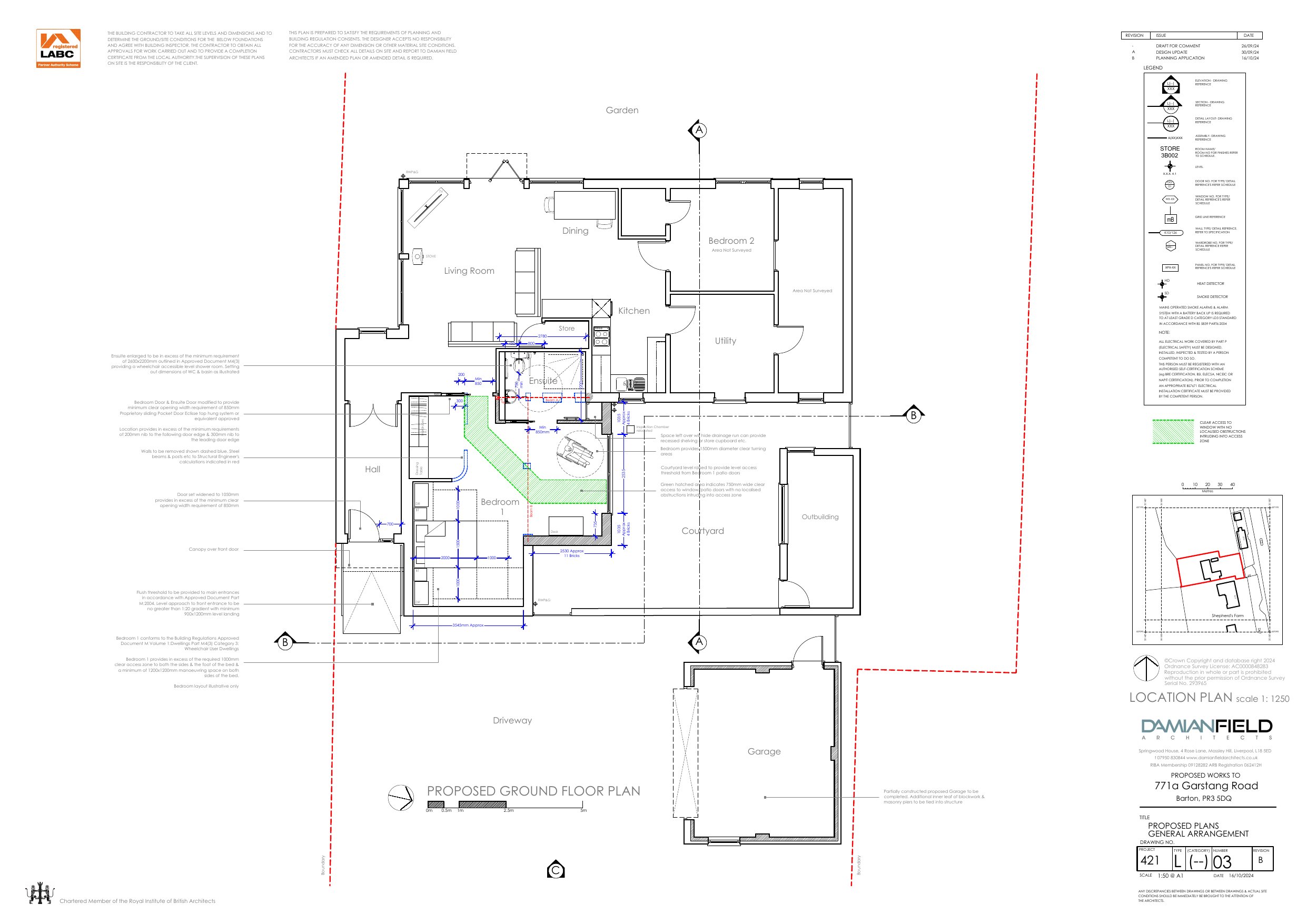
Application Permitted House extension
Received
17 Oct 2024
New homes
0

Full proposal

Alterations and extension to existing dwelling plus detached garage

Documents

Approved Plans
Archived · Original link
Existing elevations
Plans
Not yet archived · Original link
Existing floor plan
Plans
Not yet archived · Original link
Existing roof plan
Plans
Not yet archived · Original link
Proposed elevations
Approved Plans
Not yet archived · Original link
Approved Plans
Archived · Original link
Proposed garage plans and elevations
Approved Plans
Not yet archived · Original link
Proposed roof plan
Approved Plans
Not yet archived · Original link
Approved Plans
Archived · Original link

Have your say

Your comment matters. Councils must consider every representation that raises material planning considerations.

Write a comment